弗鲁克Fluko高剪切分散乳化机FA90操作说明
1、本机特征
提供强劲的分散、乳化、均质能力。整机具有变频调速、转速显示、电动升降或手动液压升降等功能。
2、适用工艺
该乳化机可以完成搅拌、分散、均质、乳化、强效混合、固液分散混合等多种工艺。
3、应用
主要应用于制药、生化、食品、纳米材料、涂料、黏合剂、日用化学品、印染、石化、造纸化学、聚氨脂、无机盐、沥青、有机硅、农药、水处理、重油乳化等。

1、吊运、安装设备时,注意设备的重心位置,绳子应栓在机架等牢固位置,并且垫上木块或软垫。设备起吊时,定子端要同时离地,定子点不能受任何外力,防止定、转子因外力作用引起变形损坏。
2、设备安装时,检查、紧固所有螺栓螺母,防止装卸和运输途中因颠簸而导致紧固件松动。
3、将本机安装在容器内,与容器接口法兰用螺栓固定联接,请按十字交叉法依次紧固螺栓。为保证设备更稳定的运行,建议容器增加避震装置。
4、由于转子具有抽吸力,定子、转子与容器底部的距离不应少于2~3倍的转子直径,液面距工作头四氟轴套距离不小于20~750px。建议将定子、转子稍微偏心放置,安装在罐径1/3处,或和专业人员确认,这样更利于提升物料的处理效果。
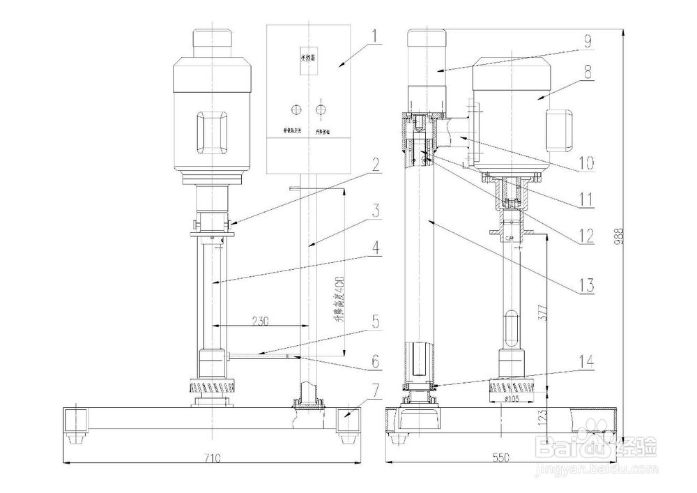
1、 电控箱 2、分散头锁紧螺钉 3、立柱 4、工作头 5、横担 6、限位开关7、底座 8、电机
9、升降电机 10、电机座 11、升降套管 12、套管 13、导柱 14、滑套

1、1. 使用前务必熟读产品说明书
2. 检查被处理物料中是否有异物(如铁屑、纤维等)
3. 检查设备各部件是否完好
4. 设备就位,确保工作头部分浸没于物料中
5. 按照说明书中的要求连接电源
6. 连接机封冲洗液或冲洗系统(如需)
7. 按照说明书中的要求进行设备设置并启动
8. 停机及清理设备
1、容器内严禁介质以外的异物(特别是纤维,铁屑等)进入!建议在容器进料处加过滤网,开机前进行清洗。
2、本机定子、转子及轴套必须浸没于工作介质中,且最低液位高于轴套一倍转子距离才能开启设备,严禁空机运转。
3、四氟套属易损配件,在纯液体介质的工况中,使用寿命为三个月;在含固含量的液体介质的工况中,四氟套的寿命会相对缩短。建议客户提前订购四氟套配件,并定期检查和更换,否则会造成主轴、定子、转子及机械密封的损坏,产生更大的维修成本。
4、在生产中建议采用加料工艺:先加入粘度小的液体,开始工作,然后加入粘度大的液体,最后逐渐均匀加入固体物料。
5、易燃易爆工作环境,必须选用防爆电机(在合同订立时注明)。
6、在使用前要制订出相应的安全生产操作规程,确保人身设备安全。

7、设备开机前,请确认所有紧固件已拧紧;所有电气接线已正确连接;所有管路阀门及零部件已正确安装
