详解烟管家油烟净化一体机使用手册
1、高效:净化效率符合国家标准GB18483-2001的规定,完全达到国标大型饮食业规模要求。
安全:设备及风管不积油,能灭火烟,有效阻隔火烟,杜绝失火隐患。
环保:化学液沫洗涤,反应充分,净化效果长年稳定不变,真正环保。
节能:一体化设计,节省空间不占地,可独立运行,机内自动清洗,运行成本低。
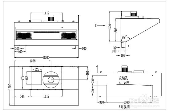
1、“烟管家”背面以墙面为安装基准,“烟管家”安装应确保前、后方向均呈水平,确定吊环在屋顶安装的固定位置及水平度。
2、将吊具固定在预设的钢梁或墙壁上,并确认承受荷重,确保安全、牢固可靠。
3、将设备顶部的吊环准确挂上。
4、核对设备安装后的整体水平度。
5、用膨胀螺栓将设备固定,防止运行时晃动。
6、连接进水管、排污管及溢流管,所有管道安装方式、长度根据现场情况和用户要求在不影响使用的条件下进行适当的调整。
7、连接风机线路(380V、1.1KW)、水泵线路(220V、0.3 KW)。
8、确认各线路连接好后试运行,无异常振动、噪音,设备运行稳定后方可投入使用。
1

2

3、进水管:方便设备管理,应该设有阀门。
2、溢流管:为直通污水管,不得安装阀门,设备运作时有水溢出属正
常,设备停机时不得有水溢出。
3、排污管:方便设备管理,必须设有阀门。
4、螺纹拉杆:每个螺纹拉杆用4个膨胀螺栓固定。
5、风管:不论一台或者多台设备,都需要按照最低10米/秒的风速设计风管截面面积,否则将导致排风不畅或者设备噪音加大。
6、膨胀螺栓:每一个吊杆对应的膨胀螺栓(必须使用M12或者以上规格)数量不得少于2件,整机共4个吊杆,共8个膨胀螺栓,整机背面需用4个膨胀螺栓固定, (如图五)
故使用膨胀螺栓数量不得少于12
件。否则,设备可能脱落,并导致严重的事故或者伤害。
7、软接帆布:必须使用帆布软接;否则,设备噪音可能增加5~10分贝,长期使用将导致排风风管松脱。
8、螺旋扣:必须选用M8或以上规格。
9、吊式弹簧减震器:单个承重能力需在50KG以上。
