公司白领是如何装修自己家的
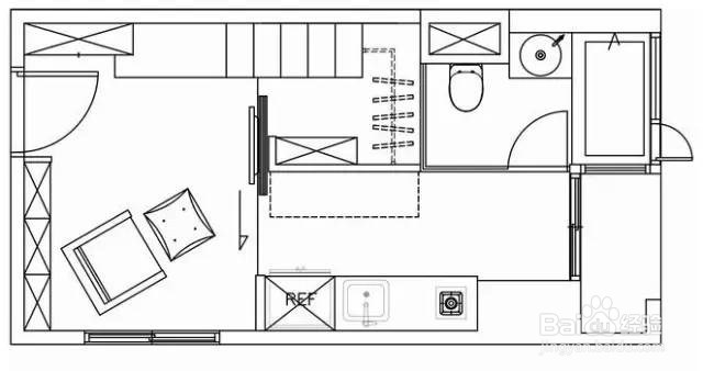
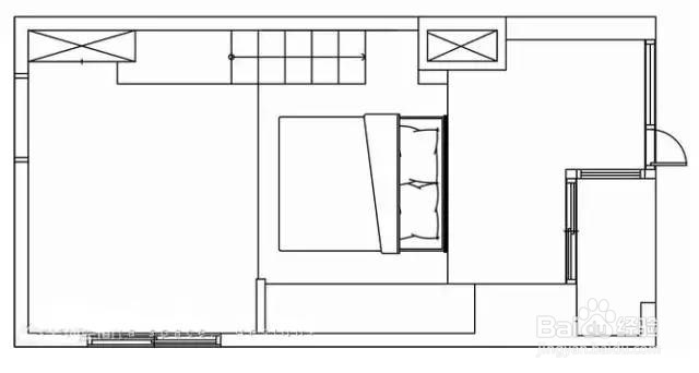
1、上图为底层布局,卫生间、活动区域、更衣间、厨房、浴室均在一层。下图为二层空间,为了有更好的采光,我只留出了卧室和储物的空间。


2、公共活动区域房子的前半段为公共活动区域,以挑空方罪称式呈现,展现房子三米六的挑高优势。一进玄关,鞋柜及书柜充份满足收纳需求。


3、书柜前放置一张摇摇椅,在落地窗旁可以自在悠闲的阅读,尽情沈浸在每篇动人章节字句中。墙面展示粗矿斑驳触感的白色砖墙,搭配清浅的栓木,白色的基调与自然原木色彩相得益彰,为空间增添协调的层次感。

4、凹凸自然质感的白色砖墙,托衬任何饰品摆设,呈现慵懒具格调的随性风。厨房区域厨房可摺叠收纳的餐桌,可充当上网办公的书桌,同时亦是烹调时的备料餐台,多功能用途发挥最大坪效。

5、餐桌的后面是厨房部分,包括灶台和操作台,厨房虽然不大,但是料理一个人是食物还是绰绰有余的。悬空楼梯房间我用了悬空楼梯,既省空间又不觉得厚重,虽然没有扶手,手扶着墙面依然很安全。

6、镂空阶梯避免了夹层压迫感,好似悬在半空般优雅独特。梦想中的更衣间更衣间是我必须要拥有的,也是整个房间的亮点。更衣室除了收纳也是展示我穿衣风格的绝佳机会。

7、每件美丽的衣物就像是展示品,每次更衣装扮就像走在伸展舞台般,虽然衣服价值不高,每次换装都能为我带来私密独享的乐趣。可移动电视墙区隔后半段厨房、餐桌及书房场域的是一面活动式电视墙,可依照需求移动墙面,让物宋空间呈现最大的自由及弹性变化。

8、重点是不论如此移动,都享用两面丰富的穿透采光。浴室区域开放惹速够式更衣室,位于卫浴澡缸旁,仅以清玻璃区隔干湿机能,想象下在降板板岩浴缸享受浪漫的玫瑰花瓣浴后,可以直接进入更衣区,动线顺畅。
9、浴室很大胆的用了玻璃窗,在沐浴时把百叶窗帘一拉,隐秘性就解决了。二层卧室区域喜欢白色的床单,干净整洁。虽然喜欢欧式风格的公主床,但是因为挑高的局限,最终选择了简约大方的矮床。

10、睡眠区挑选歌剧魅影幻影壁灯,光线倒影出放大出的影像,犹如其名具有魔幻视觉效果。总结整个风格简约而不简单,完善的布局满足了我所有的要求,专属我的时尚慵懒居家调性风格油然而生。这样温馨的小家,是在大都市生活的我,最好的避风港。
