revit中使用关联菜单绘制管道的方法
1、用revit打开使用机械样板创建的项目文件;



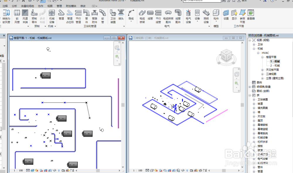
2、选择要创建管道的平面视图;三维视图同时平铺出来比较方便查看效果;

3、在绘图区域中,选择要显示其连接件的构件。

4、在要连接管道的连接件上单击鼠标右键,然后单击“绘制管道”或“绘制管道占位符”;

5、管道的另一端拖曳到所需目标。

声明:本网站引用、摘录或转载内容仅供网站访问者交流或参考,不代表本站立场,如存在版权或非法内容,请联系站长删除,联系邮箱:site.kefu@qq.com。
1、用revit打开使用机械样板创建的项目文件;



2、选择要创建管道的平面视图;三维视图同时平铺出来比较方便查看效果;

3、在绘图区域中,选择要显示其连接件的构件。

4、在要连接管道的连接件上单击鼠标右键,然后单击“绘制管道”或“绘制管道占位符”;

5、管道的另一端拖曳到所需目标。
