如何用CAD2007画一个衣柜平面图
1、我们需要量得我们制作的衣柜的初步尺寸,再通过CAD做出效果图。
2、打开CAD软件,了解工具栏的作用。


3、通过工具栏的直线工具进行画图。

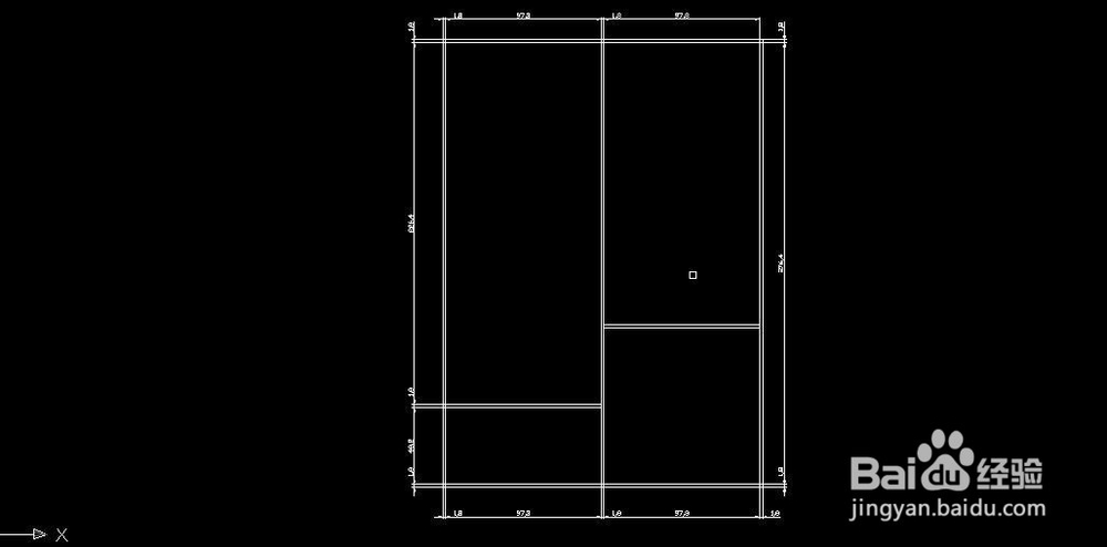
1、根据自己喜爱用直线画出自己喜欢的图。板材厚度1.8MM,

2、最后调节标注线颜色。
3、即可完成一个衣柜的初步效果图。

声明:本网站引用、摘录或转载内容仅供网站访问者交流或参考,不代表本站立场,如存在版权或非法内容,请联系站长删除,联系邮箱:site.kefu@qq.com。
1、我们需要量得我们制作的衣柜的初步尺寸,再通过CAD做出效果图。
2、打开CAD软件,了解工具栏的作用。


3、通过工具栏的直线工具进行画图。

1、根据自己喜爱用直线画出自己喜欢的图。板材厚度1.8MM,

2、最后调节标注线颜色。
3、即可完成一个衣柜的初步效果图。
