指南生活
首页
美食营养
手工爱好
生活家居
返回
指南生活
首页
美食营养
游戏数码
手工爱好
生活家居
健康养生
运动户外
职场理财
情感交际
母婴教育
时尚美容
知识问答
生活知识
生活百科
搜索
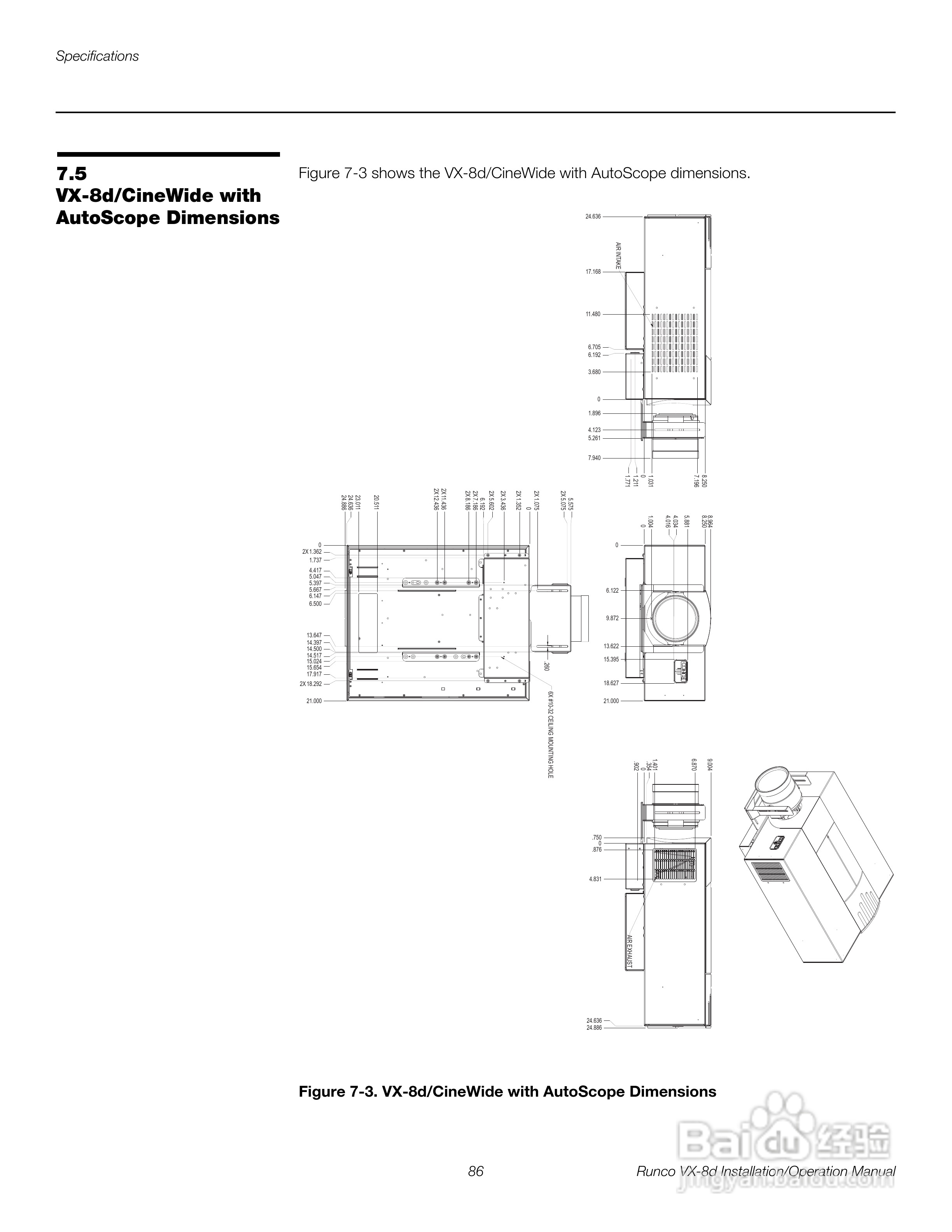
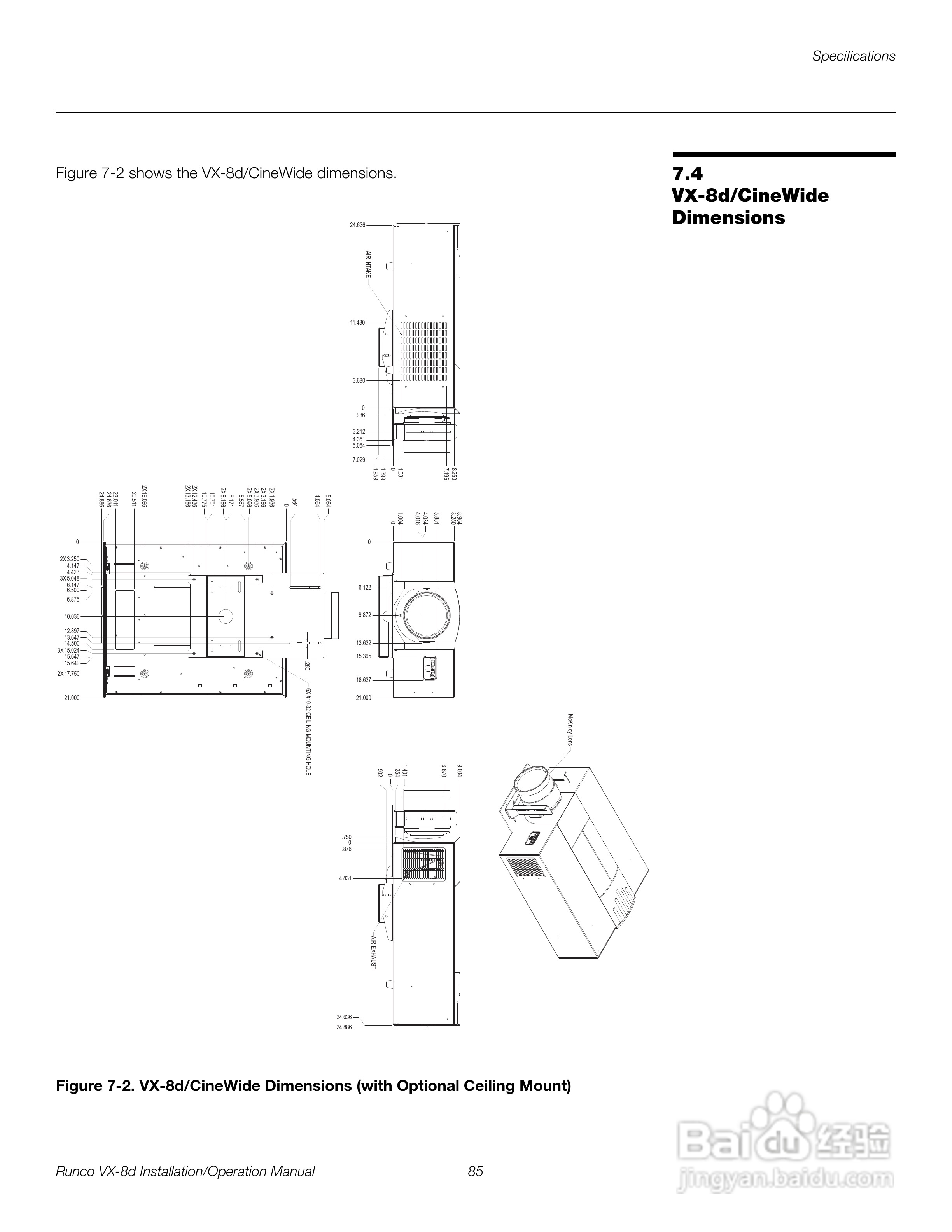
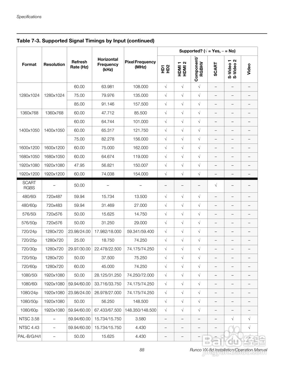
Runco VX-8d投影机使用说明书:[11]
2026-03-23 05:47:14
本篇为《Runco VX-8d投影机使用说明书》,主要介绍该产品的使用方法以及常见故障解决方案。
(共篇)
上一篇:
声明:
本网站引用、摘录或转载内容仅供网站访问者交流或参考,不代表本站立场,如存在版权或非法内容,请联系站长删除,联系邮箱:site.kefu@qq.com。
相关推荐
100层电梯游戏62关攻略
阅读量:61
在scratch2.0中绘制绿色空心圆的方法
阅读量:91
逃脱本色5-6图文全攻略
阅读量:156
微信中国象棋楚汉争霸第118关小兵的闯关技巧
阅读量:185
微信小游戏中国象棋残局春秋五霸第144关攻略
阅读量:61
猜你喜欢
kiyomi什么意思
题西林壁古诗的意思
acs是什么意思
满腹经纶的意思
一垒二垒三垒是什么意思
针式打印机什么牌子好
敏而好学的意思
pi是什么意思
dnf结婚有什么好处
善哉的善是什么意思
猜你喜欢
套内面积是什么意思
橄榄枝代表什么
买房子应该注意什么
club是什么意思
上火喝什么茶好
港珠澳大桥什么时候通车
法人代表是什么意思
蹂躏的意思
away是什么意思
一瞬间的意思