指南生活
首页
美食营养
手工爱好
生活家居
返回
指南生活
首页
美食营养
游戏数码
手工爱好
生活家居
健康养生
运动户外
职场理财
情感交际
母婴教育
时尚美容
知识问答
生活知识
搜索
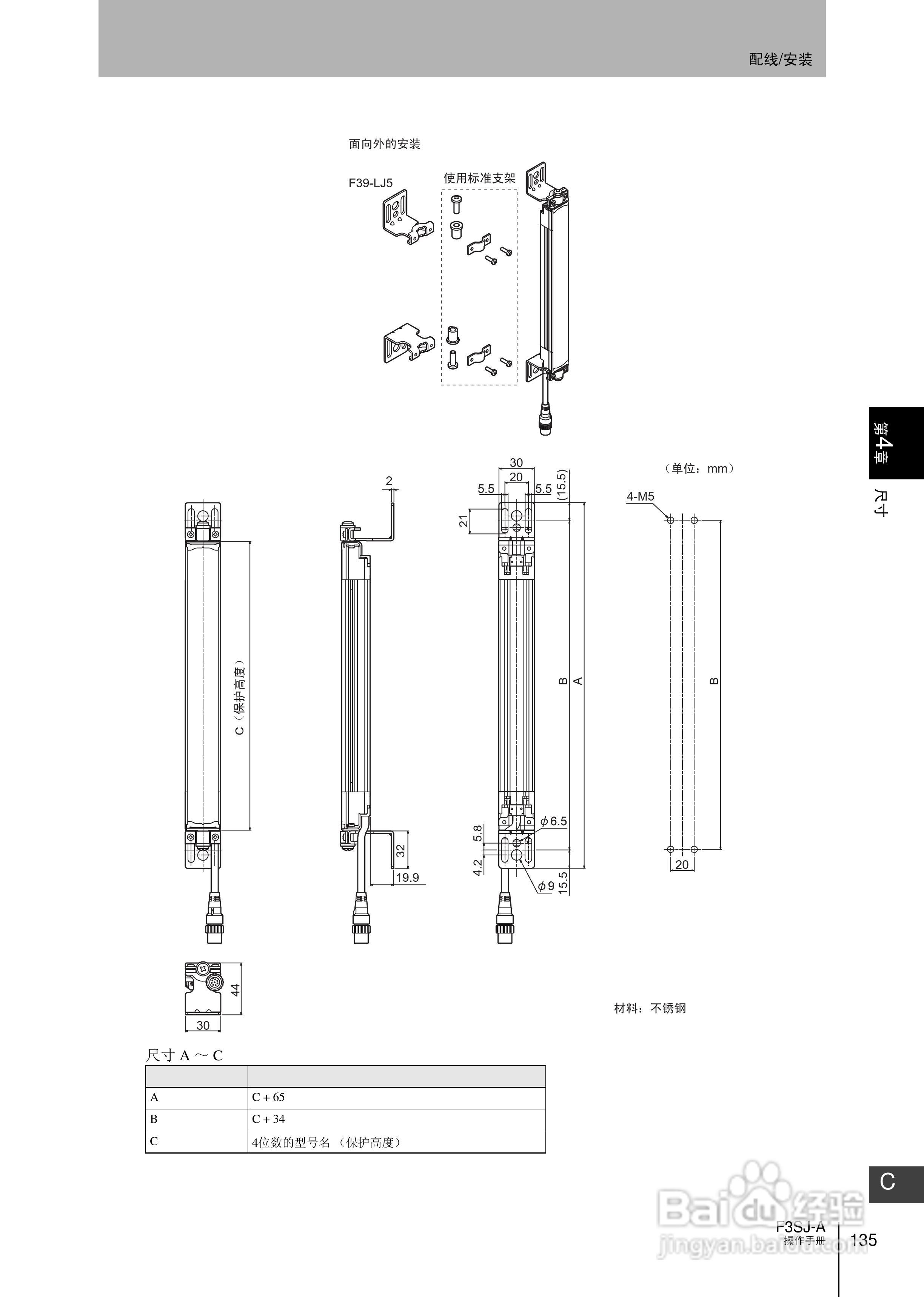
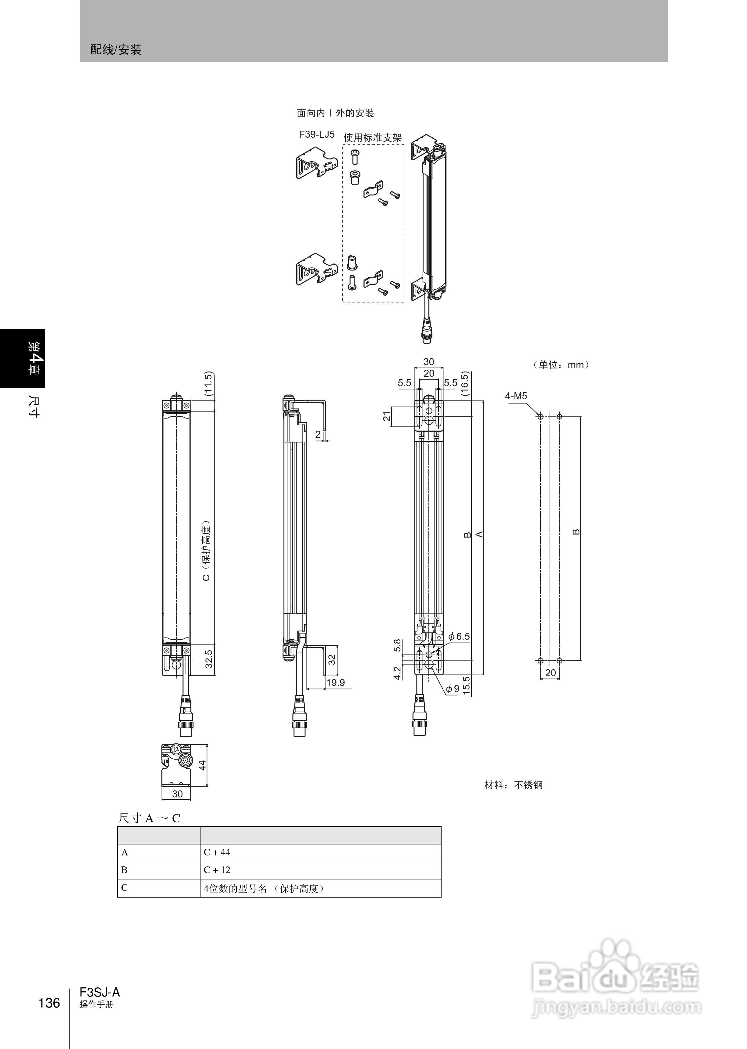
欧姆龙 F3SJ-A P系列安全光幕操作手册:[16]
2026-01-04 10:11:05
本篇为《欧姆龙 F3SJ-A P系列安全光幕操作手册》,主要介绍该产品的使用方法以及常见故障解决方案。
(共篇)
上一篇:
|
下一篇:
声明:
本网站引用、摘录或转载内容仅供网站访问者交流或参考,不代表本站立场,如存在版权或非法内容,请联系站长删除,联系邮箱:site.kefu@qq.com。
相关推荐
欧姆龙 F3SJ-A P系列安全光幕操作手册:[15]
阅读量:91
欧姆龙 F3SJ-A P系列安全光幕操作手册:[19]
阅读量:145
安全光幕型号解析
阅读量:128
安全光幕/光栅传感器的选型事项
阅读量:69
安全光幕在选型使如何确定光轴间距
阅读量:127
猜你喜欢
股票绿色和红色代表什么
接二连三是什么意思
显卡有什么用
正能量是什么意思
someone like you 什么意思
钙化是什么意思
团长是什么级别
总成是什么意思
股票bs点是什么意思
什么鸟会说话
猜你喜欢
铁蛋白高是什么原因
鸡内金是什么
望尘莫及什么意思
我国最大的淡水湖是什么
不排卵是什么原因
四个意识指的是什么
谷丙转氨酶是什么
什么是蚕豆病
园丁是什么意思
巧克力代表什么意思