指南生活
首页
美食营养
手工爱好
生活家居
返回
指南生活
首页
美食营养
游戏数码
手工爱好
生活家居
健康养生
运动户外
职场理财
情感交际
母婴教育
时尚美容
知识问答
生活知识
生活百科
搜索
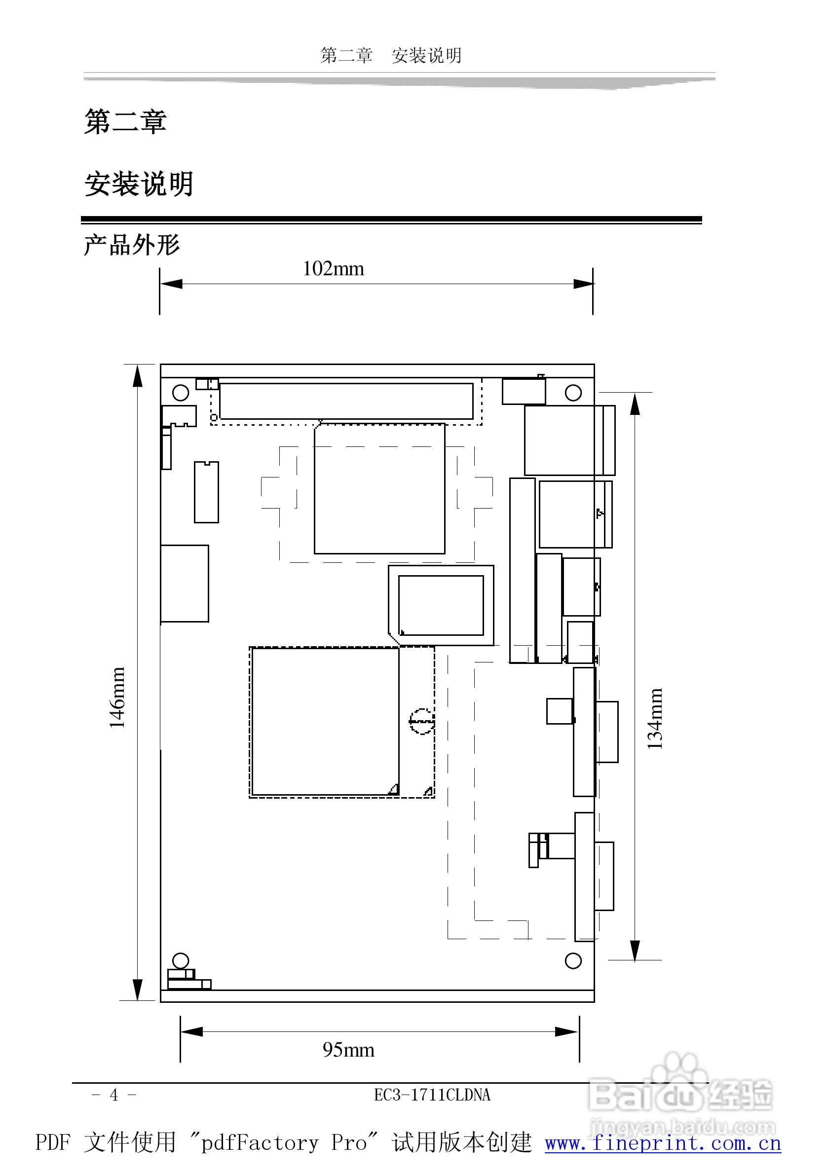
研祥EC3-1711CLDNA工业级CPU板卡说明书:[1]
2026-05-01 21:48:36
本篇为《研祥EC3-1711CLDNA工业级CPU板卡说明书》,主要介绍该产品的使用方法以及常见故障解决方案。
(共篇)
下一篇:
声明:
本网站引用、摘录或转载内容仅供网站访问者交流或参考,不代表本站立场,如存在版权或非法内容,请联系站长删除,联系邮箱:site.kefu@qq.com。
相关推荐
研祥EC3-1481CLDNA工业级CPU板卡说明书:[1]
阅读量:30
研祥EC5-1711CLDNA工业级CPU板卡说明书:[6]
阅读量:121
研祥EC5-1711CLDNA工业级CPU板卡说明书:[5]
阅读量:108
研祥EC3-1481CLDNA工业级CPU板卡说明书:[4]
阅读量:93
cpu怎么开启睿频
阅读量:186
猜你喜欢
什么是疤痕体质
丁克是什么
km是什么单位
边际贡献是什么意思
moment什么意思
皂角刺能治什么病
二十万左右买什么车好
健康状况填什么
给男生送什么礼物好
977是什么意思
猜你喜欢
草木灰是什么
她扒拉我是什么意思
车水马龙什么意思
西岳是什么山
三个羊是什么字
1989年是什么命
什么是app
唯物主义是什么意思
红杏出墙什么意思
sat是什么考试