指南生活
首页
美食营养
手工爱好
生活家居
返回
指南生活
首页
美食营养
游戏数码
手工爱好
生活家居
健康养生
运动户外
职场理财
情感交际
母婴教育
时尚美容
知识问答
生活知识
搜索
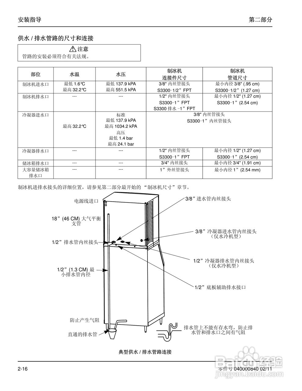
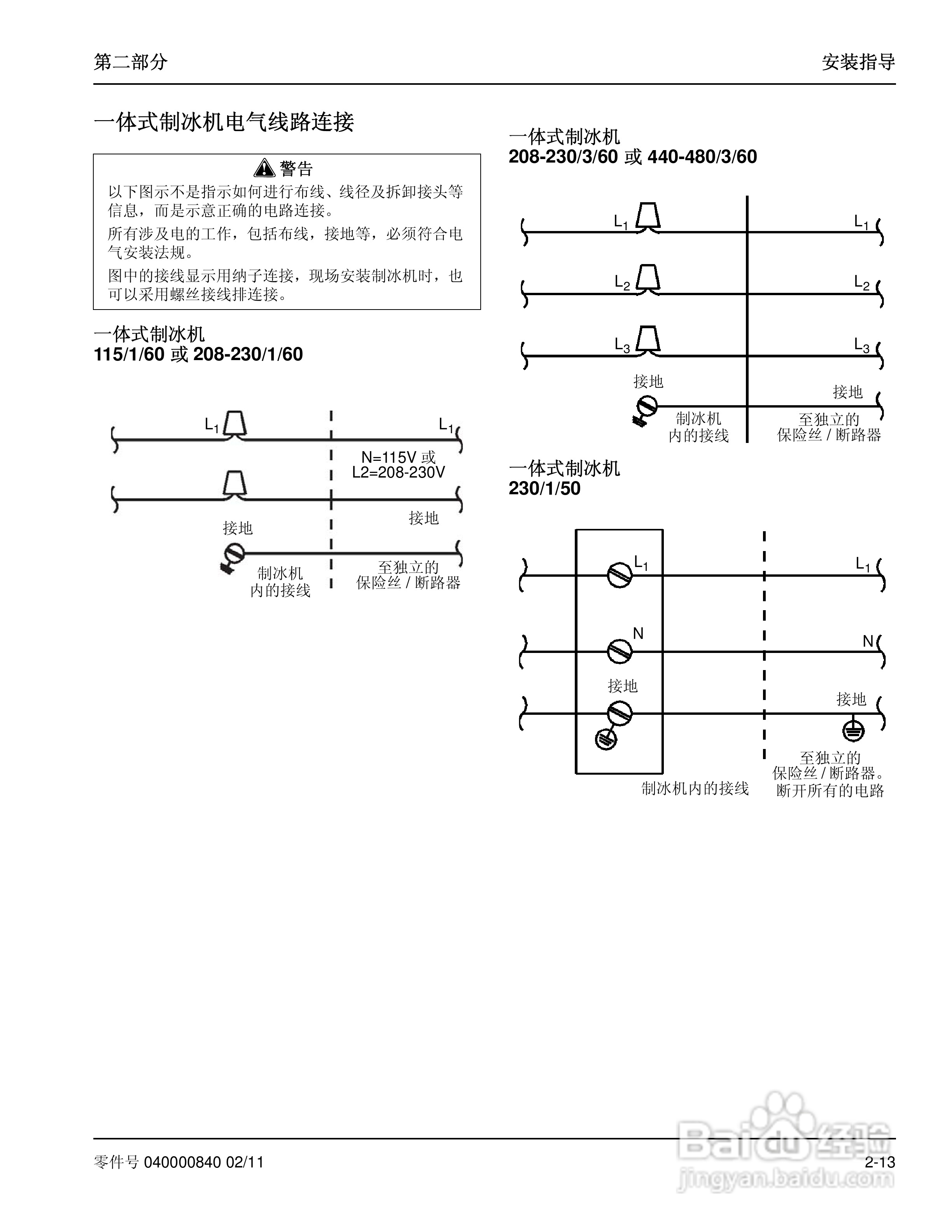
Manitowoc万利多SR1600A制冰机说明书:[3]
2026-03-02 18:48:26
/>
(共篇)
上一篇:
|
下一篇:
声明:
本网站引用、摘录或转载内容仅供网站访问者交流或参考,不代表本站立场,如存在版权或非法内容,请联系站长删除,联系邮箱:site.kefu@qq.com。
相关推荐
Manitowoc万利多SR1600A制冰机说明书:[6]
阅读量:138
Manitowoc万利多SR1801W制冰机说明书:[3]
阅读量:188
Manitowoc万利多SR1890N制冰机说明书:[3]
阅读量:68
Manitowoc万利多SR1690N制冰机说明书:[3]
阅读量:170
制冰机制冰慢怎么调节
阅读量:196
猜你喜欢
size是什么意思
慈眉善目的意思
猎头是什么意思
什么是氢化油
蔬菜主要向人们提供什么营养
江西庐山盛产什么茶
猫狗像什么打一成语
男票是什么意思
fpx什么意思
众泰t700什么时候上市
猜你喜欢
strict是什么意思
送什么礼物给闺蜜
小学生用什么铅笔好
惶恐的意思
有什么励志的电影
迢迢牵牛星古诗意思
新婚燕尔是什么意思
毛遂自荐的意思
无限火力什么时候上线
智慧的意思