指南生活
首页
美食营养
手工爱好
生活家居
返回
指南生活
首页
美食营养
游戏数码
手工爱好
生活家居
健康养生
运动户外
职场理财
情感交际
母婴教育
时尚美容
知识问答
生活知识
搜索
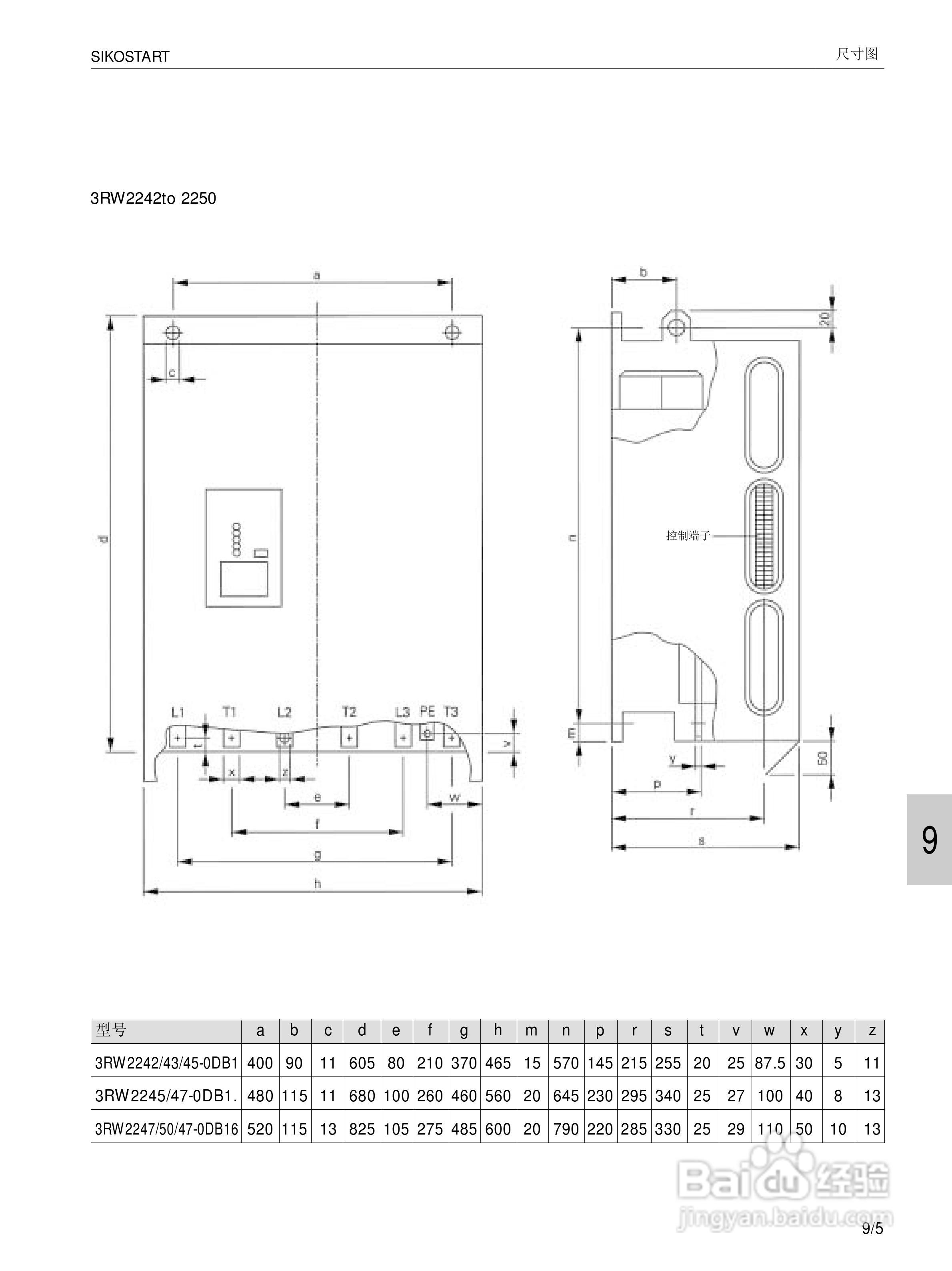
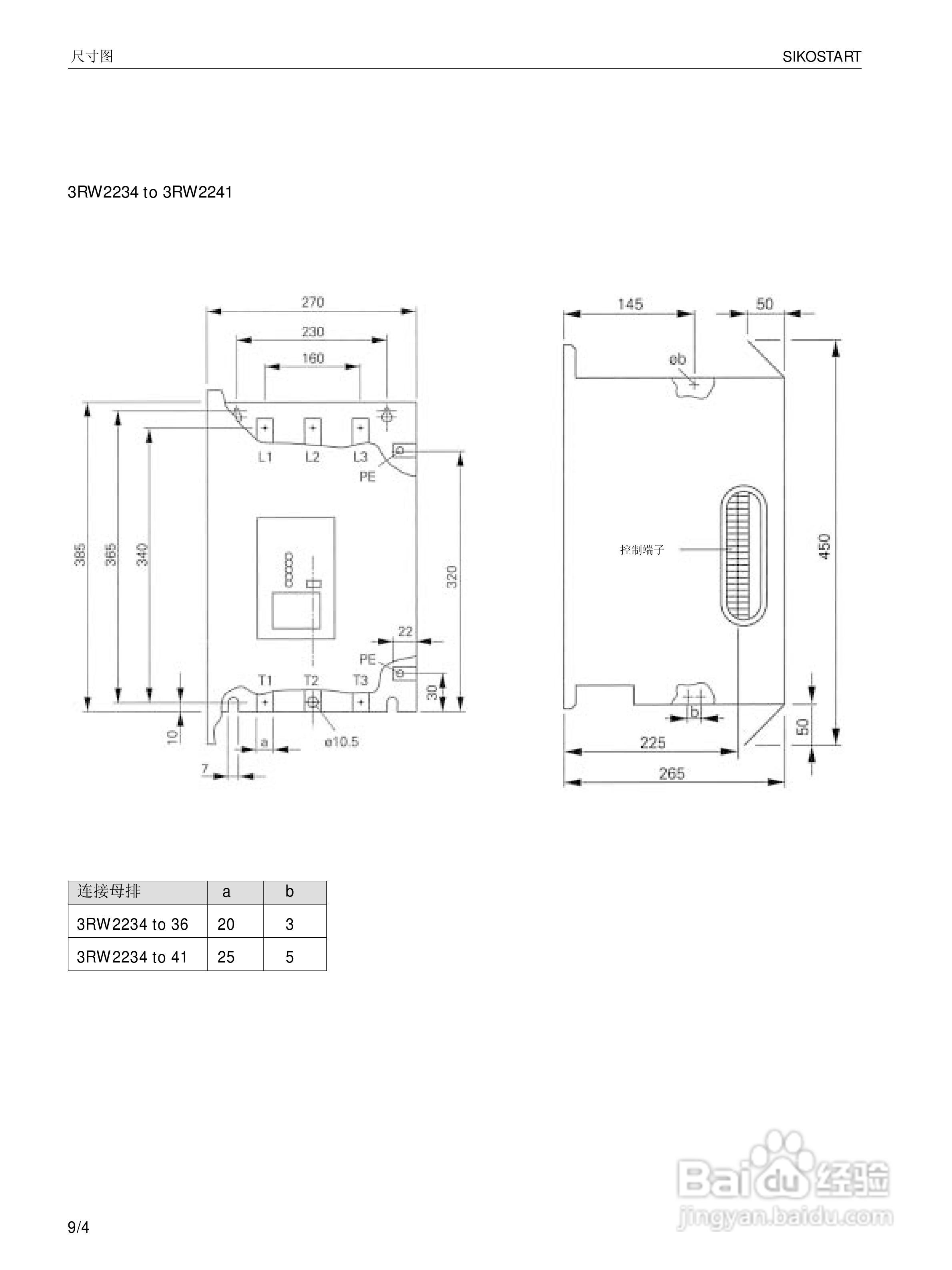
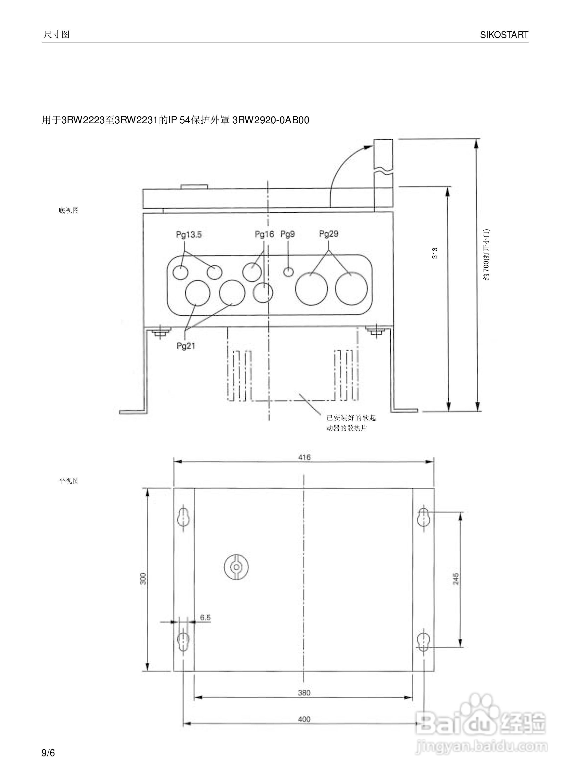
SIEMENS 3RW22电子式软起动器说明书:[9]
2026-02-28 15:19:15
本篇为《SIEMENS 3RW22电子式软起动器说明书》,主要介绍该产品的使用方法以及常见故障解决方案。
(共篇)
上一篇:
声明:
本网站引用、摘录或转载内容仅供网站访问者交流或参考,不代表本站立场,如存在版权或非法内容,请联系站长删除,联系邮箱:site.kefu@qq.com。
相关推荐
SIEMENS 3RW22电子式软起动器说明书:[7]
阅读量:123
3RW40软起动器操作手册:[1]
阅读量:184
西门子 3RW34 电子式软起动器用户手册:[2]
阅读量:188
SIEMENS 3RW22电子式软起动器说明书:[4]
阅读量:65
SIEMENS 3RW22电子式软起动器说明书:[5]
阅读量:38
猜你喜欢
outlet是什么意思
独在异乡为异客每逢佳节倍思亲的意思
末日时在做什么?
聚沙成塔的意思是什么
横行霸道的意思
遐想的意思
顷刻间的意思
cpr是什么意思
贴牌是什么意思
一如既往的意思
猜你喜欢
qq飞车w键有什么用
移动硬盘什么牌子质量好
头上长痘什么原因
687什么意思
com是什么意思
量力而行的意思
lunar是什么意思
憨态可掬的意思
朝三暮四的意思
pick是什么意思