指南生活
首页
美食营养
手工爱好
生活家居
返回
指南生活
首页
美食营养
游戏数码
手工爱好
生活家居
健康养生
运动户外
职场理财
情感交际
母婴教育
时尚美容
知识问答
生活知识
搜索
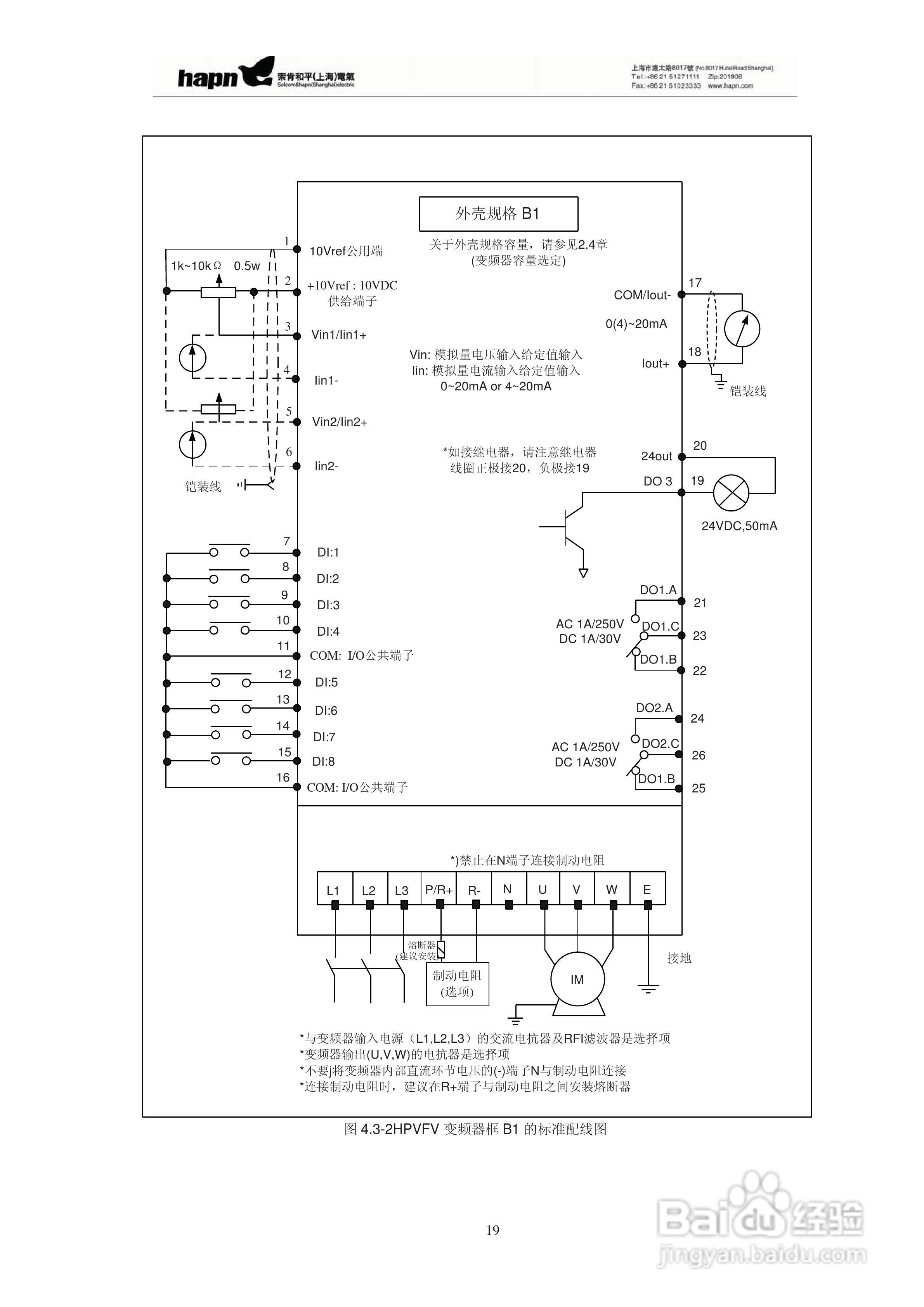
索肯和平HPVFV12560矢量变频器说明书:[2]
2026-01-01 20:07:52
本篇为《索肯和平HPVFV12560矢量变频器说明书》,主要介绍该产品的使用方法以及常见故障解决方案。
(共篇)
上一篇:
|
下一篇:
声明:
本网站引用、摘录或转载内容仅供网站访问者交流或参考,不代表本站立场,如存在版权或非法内容,请联系站长删除,联系邮箱:site.kefu@qq.com。
相关推荐
索肯和平HPVFV12560矢量变频器说明书:[4]
阅读量:64
变频器控制线路接线方法
阅读量:181
变频器调试接线教程
阅读量:173
变频器维修教程
阅读量:150
变频器维修培训技巧
阅读量:42
猜你喜欢
六角恐龙怎么分公母
ppt文件怎么打开
如何包饺子
怎么让自己变强
哪里可以回收手表
花呗提前还款在哪里
如何追女孩子
如何快速致富
石家庄医学高等专科学校怎么样
淘宝宝贝标题怎么写
猜你喜欢
如何注销qq
qq怎么盗号教程
黑枸杞泡水喝的功效
长白山旅游股份有限公司
如何有效祛斑
鼓浪屿旅游团
蚂蜂窝旅游网
黄山风景区旅游攻略
虞姬是哪里人
怎么制作mv