指南生活
首页
美食营养
手工爱好
生活家居
返回
指南生活
首页
美食营养
游戏数码
手工爱好
生活家居
健康养生
运动户外
职场理财
情感交际
母婴教育
时尚美容
知识问答
生活知识
搜索
Panasonic松下交流伺服驱动器Minas A4 Manual使用说明:[1]
2025-12-09 15:21:33
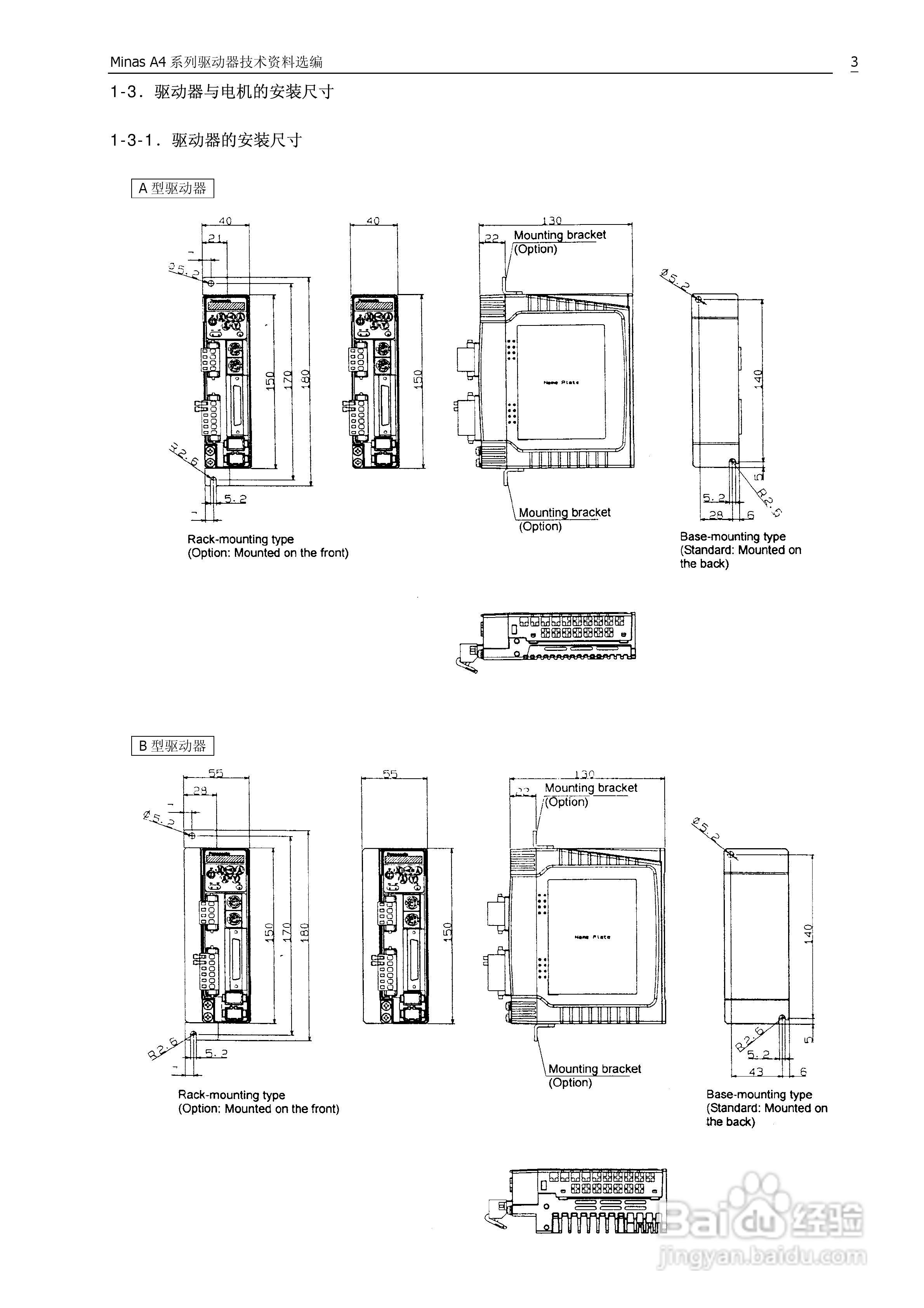
本篇为《Panasonic松下交流伺服驱动器Minas A4 Manual使用说明》,主要介绍该产品的使用方法以及常见故障解决方案。
(共篇)
下一篇:
声明:
本网站引用、摘录或转载内容仅供网站访问者交流或参考,不代表本站立场,如存在版权或非法内容,请联系站长删除,联系邮箱:site.kefu@qq.com。
相关推荐
Panasonic松下交流伺服驱动器Minas A4 Manual使用说明:[4]
阅读量:118
数字AC 伺服电机及驱动器MINAS A5说明书:[4]
阅读量:177
GS交流伺服主轴驱动器使用说明书-A2:[4]
阅读量:49
森创全数字交流伺服驱动器GS系列使用说明书:[4]
阅读量:97
伺服驱动器速度怎么计算
阅读量:166
猜你喜欢
波多黎各在哪里
怎么制作手机app
如何学好高中地理
车载电话怎么用
神经衰弱失眠怎么治疗
0371是哪里的区号
如何写歌词
如何关闭qq空间
如何查看电脑ip
黄果树瀑布旅游攻略
猜你喜欢
如何贴双眼皮贴
0852是哪里的电话区号
漳州哪里好玩
学做蛋糕去哪里学
如何压缩图片大小
如何写小说赚钱
如何开户
增城旅游
粤b是哪里的车牌
网件路由器