指南生活
首页
美食营养
手工爱好
生活家居
返回
指南生活
首页
美食营养
游戏数码
手工爱好
生活家居
健康养生
运动户外
职场理财
情感交际
母婴教育
时尚美容
知识问答
生活知识
生活百科
搜索
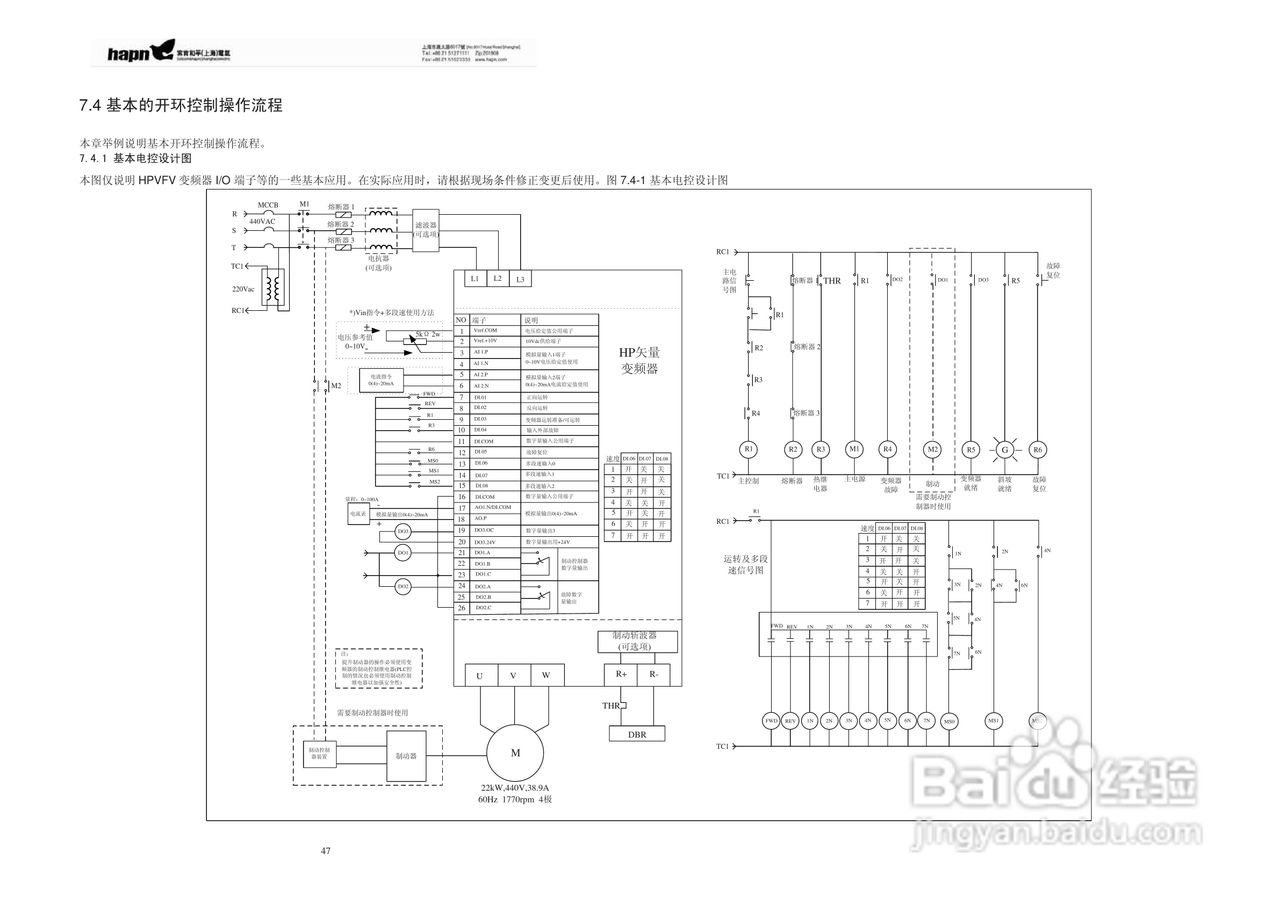
索肯和平HPVFV12560矢量变频器说明书:[5]
2026-03-27 06:53:33
本篇为《索肯和平HPVFV12560矢量变频器说明书》,主要介绍该产品的使用方法以及常见故障解决方案。
(共篇)
上一篇:
|
下一篇:
声明:
本网站引用、摘录或转载内容仅供网站访问者交流或参考,不代表本站立场,如存在版权或非法内容,请联系站长删除,联系邮箱:site.kefu@qq.com。
相关推荐
索肯和平HPVFV12560矢量变频器说明书:[6]
阅读量:59
变频器控制线路接线方法
阅读量:133
变频器调试接线教程
阅读量:111
变频器怎么恢复出厂设置
阅读量:37
变频器维修培训技巧
阅读量:52
猜你喜欢
什么洗发水好
gop是什么意思
手机nfc功能是什么
poi是什么意思
xswl是什么意思网络用语
爻是什么意思
第一人称是什么
汽车扭矩是什么意思
淘宝id是什么
人艰不拆是什么意思
猜你喜欢
软件测试需要学什么
cat是什么意思
天玑820相当于骁龙什么处理器
五经是什么
dnf手游什么时候上线
淘宝和天猫有什么区别
开户行是什么意思
522是什么意思
郑重的近义词是什么
精子变黄了是什么原因