指南生活
首页
美食营养
手工爱好
生活家居
返回
指南生活
首页
美食营养
游戏数码
手工爱好
生活家居
健康养生
运动户外
职场理财
情感交际
母婴教育
时尚美容
知识问答
生活知识
搜索
RCS-915G型微机母线保护装置技术和使用说明书:[3]
2025-12-12 19:09:26
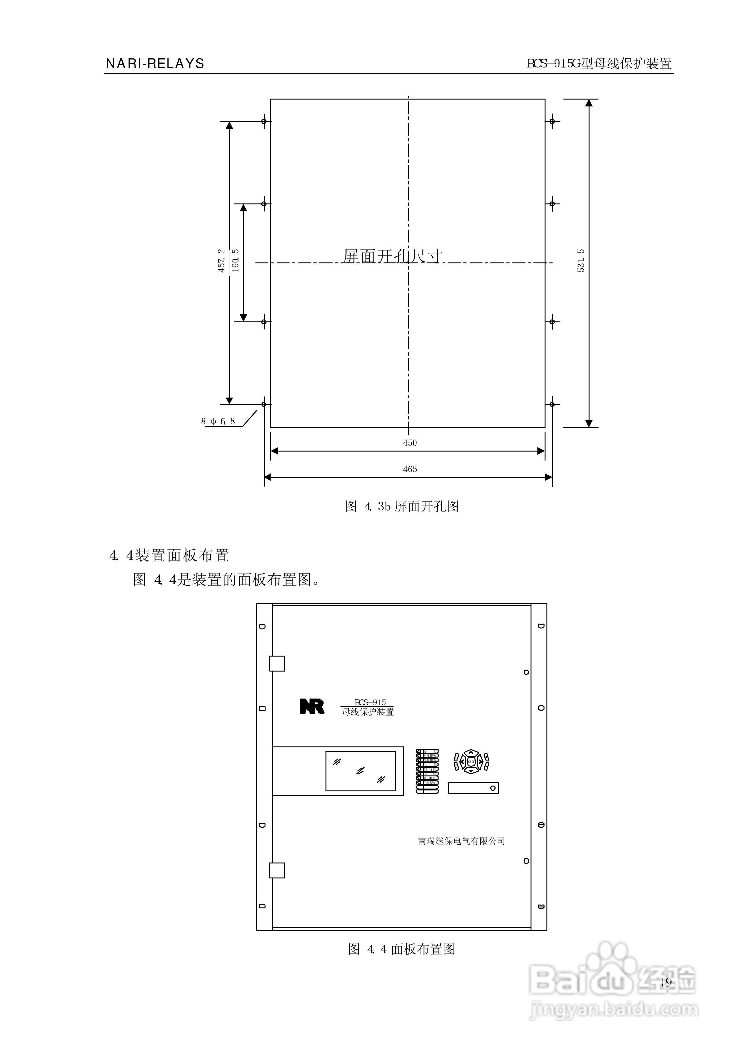
本篇为《RCS-915G型微机母线保护装置技术和使用说明书》,主要介绍该产品的使用方法以及常见故障解决方案。
(共篇)
上一篇:
|
下一篇:
声明:
本网站引用、摘录或转载内容仅供网站访问者交流或参考,不代表本站立场,如存在版权或非法内容,请联系站长删除,联系邮箱:site.kefu@qq.com。
相关推荐
RCS-915SH型微机母线保护装置技术和使用说明书:[3]
阅读量:181
RCS-915SH型微机母线保护装置技术和使用说明书:[2]
阅读量:34
RCS-915AB型微机母线保护装置技术和使用说明书:[1]
阅读量:71
母线搭接方式
阅读量:92
RCS-915AB型微机母线保护装置技术和使用说明书:[6]
阅读量:116
猜你喜欢
零申报怎么报税
台电u盘怎么样
日丰管怎么样
炒外汇怎么开户
孩子睡眠不好怎么办
老年人手抖是怎么回事
慢性胃炎怎么治疗
我的世界刷怪笼怎么做
婴儿坐飞机怎么买票
小米手机声音小怎么办
猜你喜欢
明艳遮瑕膏怎么样
cad怎么设置图形界限
孕妇长痘痘怎么办
孩子脾气暴躁怎么办
自喷漆怎么洗掉
初级会计怎么报名
婴儿被蚊子咬了怎么办
奇瑞瑞虎3怎么样
怎么看电脑多少位
姬芮怎么读