购房户型选择知识(三)边套和中间套如何选择
1、我们先讲一下,大家普通知道的理论。如果大家不想看文字的话,可以看视频教程。
2、我们首先看东边套。普通认为,早上有东边的阳光,易渗水。

3、西边套,普通认为夏天有阳光,闷热。冬天暖和。

4、但这个大家要注意东边套的下午有可能晒不到太阳,西边套有可能早上晒不太阳。如我们这个图。

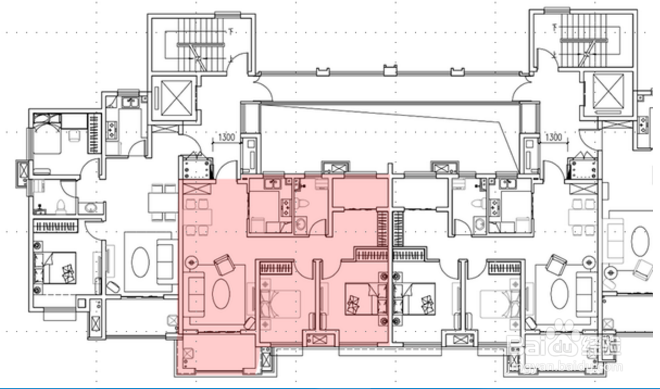
5、中间套有可能出现像如图所示:阳光好,但通风效果不佳的问题。但价格便宜。

6、买房时不要盲目相信销售拿出的户型图,最好是看下楼层平面图,这样才能对整个户型有全面的了解。
如图,是一个很好的方正的户型图

7、但是,我们看整个平面图的时候你会发现,你会发现他是中间套

8、夹在中间的边套的有可能不存在上述问题。

9、边套有时候也有很多缺点,如靠近马路等,这些问题我在视频中也逐一说明。
声明:本网站引用、摘录或转载内容仅供网站访问者交流或参考,不代表本站立场,如存在版权或非法内容,请联系站长删除,联系邮箱:site.kefu@qq.com。
阅读量:35
阅读量:136
阅读量:181
阅读量:99
阅读量:89