CAD选取对象的方法,cad选不中对象怎么办
1、点选,直接点击需要选取的对象,多个对象需要依次多次去对选,选择的对象会显示

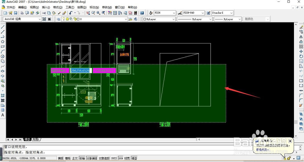
2、框选,鼠标从左上或者左下角向右侧拖动,在选取范围内的文件会被选中,选中的文件会特殊显示

3、框选,按住鼠标从右下角或者右上角向另一侧拖动,所有接触到的文件都会被选中

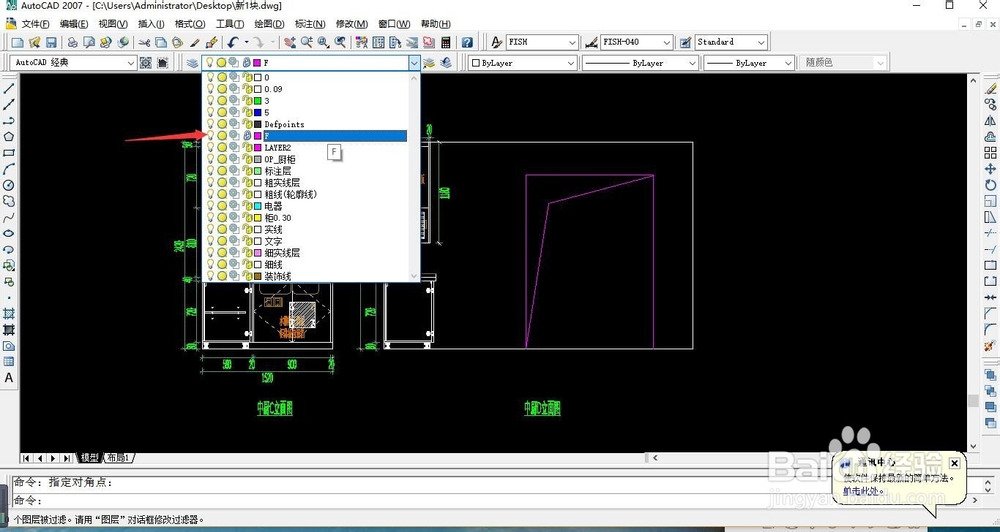
4、对于无法选中的对象一般情况是对象所在图层被设置无法编辑了,把鼠标放在对象上十字光标会出现🔒的标志

5、点击图层查看对象图纸是否被锁定,将对象图层点击解锁标志进行解锁

1、1.点选,依次点击需要选取的对象
2.框选,按住鼠标拖动,在框选的范围内的对象都将被选中
3.对象所在图层被设置无法编辑时无法选中对象,需要解锁图层

声明:本网站引用、摘录或转载内容仅供网站访问者交流或参考,不代表本站立场,如存在版权或非法内容,请联系站长删除,联系邮箱:site.kefu@qq.com。
阅读量:181
阅读量:164
阅读量:74
阅读量:117
阅读量:191