CAD图纸文件太大?怎么办?怎么清理图纸?
1、在我们的电脑桌面上开始运行CAD编辑器软件,然后在文件下的命令中打开一张CAD图纸文件进行操作

2、CAD图纸文件打开之后,在下面的命令框中输入清除(PURGE)命令,清理掉多余的数据,比如没有实体的图层,无用的块、线型以及尺寸样式等,大家可以使用2~3次的清理命令,这样可以用小减小CAD文件了。

1、在软件的下面命令栏中输入WBLOCK命令,将需要传送的图形以块的方式产生新的图形文件,把新生成的图形文件作为传送或存档用。在目标处输入文件名和路径(文件存放位置),在CAD中任选一个基准点,然后选择物体,按回车键,即可在你指定的文件夹中生成了一个新的图形文件。

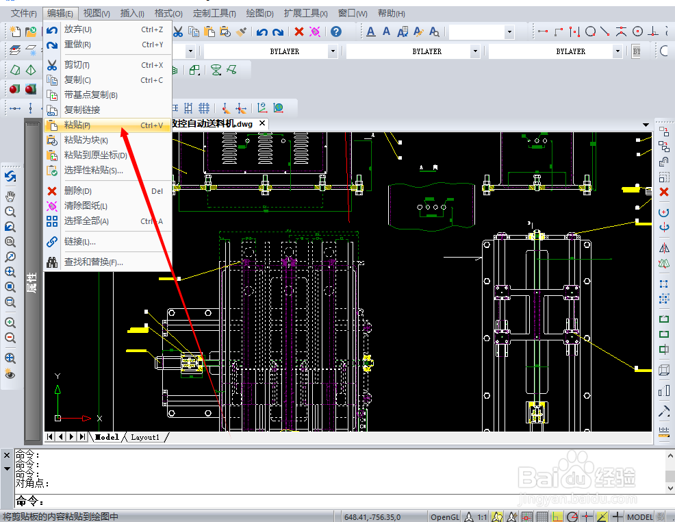
1、如果我们的图纸导入过MICROSTATION的DGN图形数据,那么就会遗留下来大量的这样数据,导致CAD文件过大。我们可以图纸中的部分图形,然后点击复制,使用迅捷CAD编辑器新建一个CAD文件,粘贴到新图中即可。

声明:本网站引用、摘录或转载内容仅供网站访问者交流或参考,不代表本站立场,如存在版权或非法内容,请联系站长删除,联系邮箱:site.kefu@qq.com。
阅读量:187
阅读量:171
阅读量:50
阅读量:146
阅读量:195