指南生活
首页
美食营养
手工爱好
生活家居
返回
指南生活
首页
美食营养
游戏数码
手工爱好
生活家居
健康养生
运动户外
职场理财
情感交际
母婴教育
时尚美容
知识问答
生活知识
生活百科
搜索
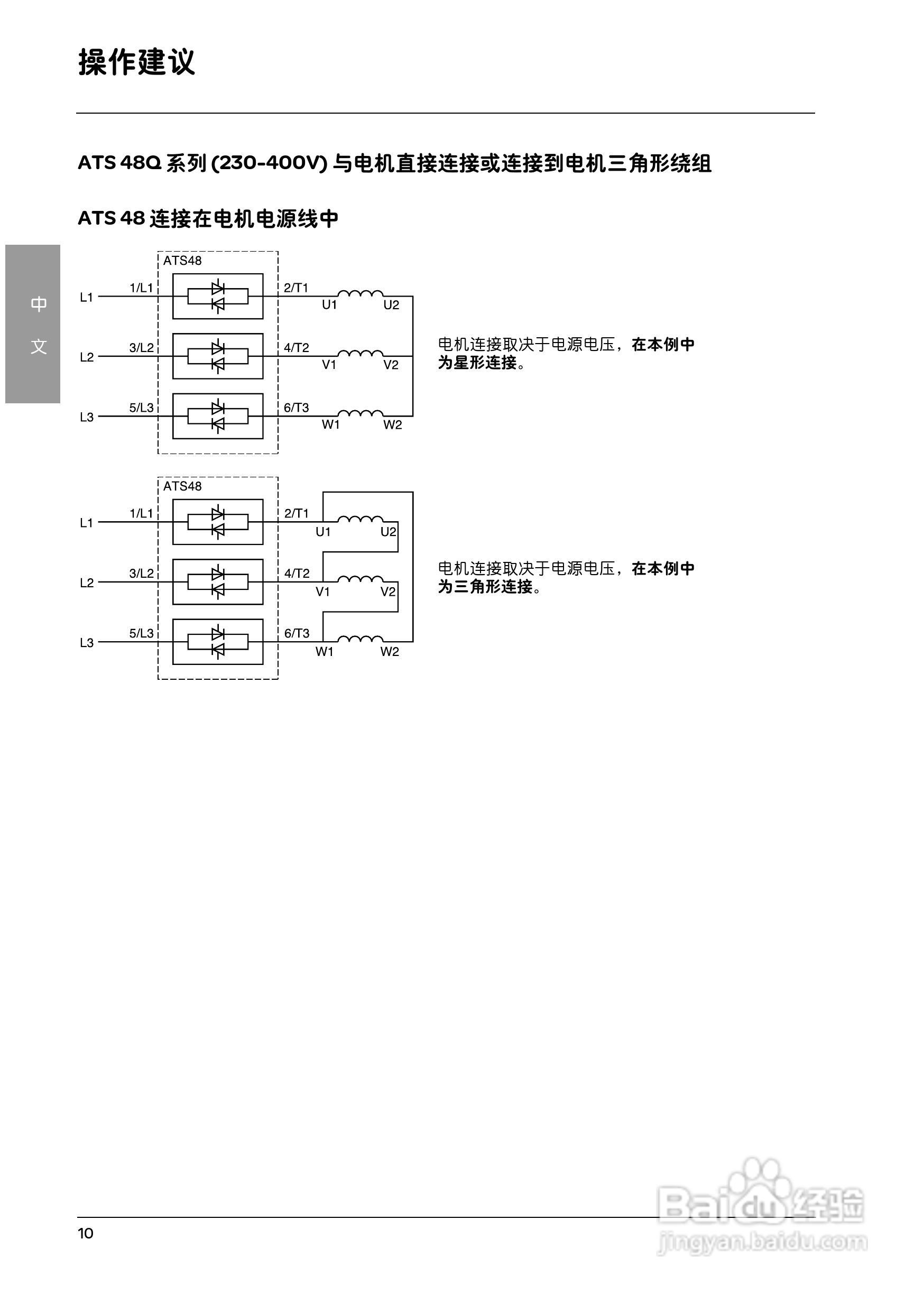
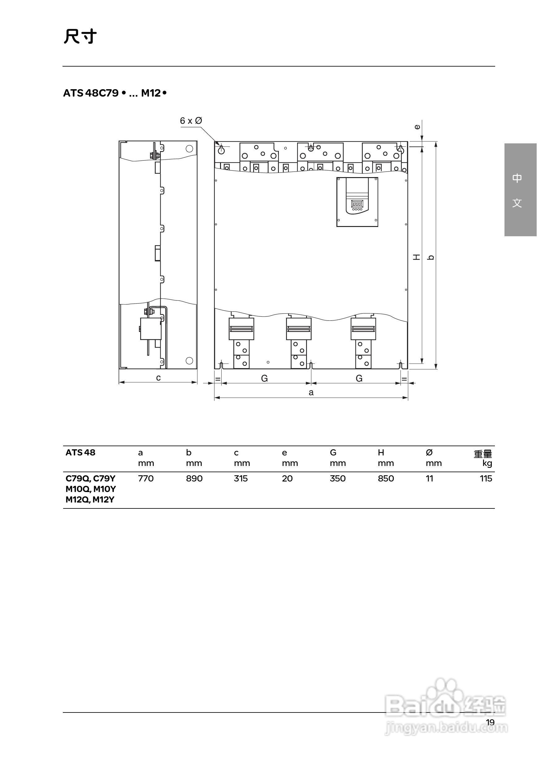
施耐德ATS48M12Q软启动器用户手册:[2]
2026-05-15 04:00:49
本篇为《施耐德ATS48M12Q软启动器用户手册》,主要介绍该产品的使用方法以及常见故障解决方案。
(共篇)
上一篇:
|
下一篇:
声明:
本网站引用、摘录或转载内容仅供网站访问者交流或参考,不代表本站立场,如存在版权或非法内容,请联系站长删除,联系邮箱:site.kefu@qq.com。
相关推荐
施耐德ATS48M12Q软启动器用户手册:[1]
阅读量:74
CGR2000系列软启动器用户手册:[2]
阅读量:103
数字软启动器V5IM01AC用户手册:[2]
阅读量:178
数字软启动器V5IM01AC用户手册:[4]
阅读量:139
数字软启动器V5IM01AC用户手册:[3]
阅读量:140
猜你喜欢
小孩发热怎么办
冬笋怎么做好吃
肛门湿疹怎么治疗
啪啪啪视频大全
芦荟的养殖方法和注意事项
滴水观音的养殖方法
青岛理工大学怎么样
搞笑表情图片大全
目录中的省略号怎么打
国产车标大全
猜你喜欢
祛痘印的方法
皮肤过敏治疗方法
o型腿矫正方法
约分的方法
家常小吃
火龙果的种植方法
十字绣勾边怎么勾
抓老鼠最有效方法
腰包怎么背
好词好句摘抄大全