指南生活
首页
美食营养
手工爱好
生活家居
返回
指南生活
首页
美食营养
游戏数码
手工爱好
生活家居
健康养生
运动户外
职场理财
情感交际
母婴教育
时尚美容
知识问答
生活知识
生活百科
搜索
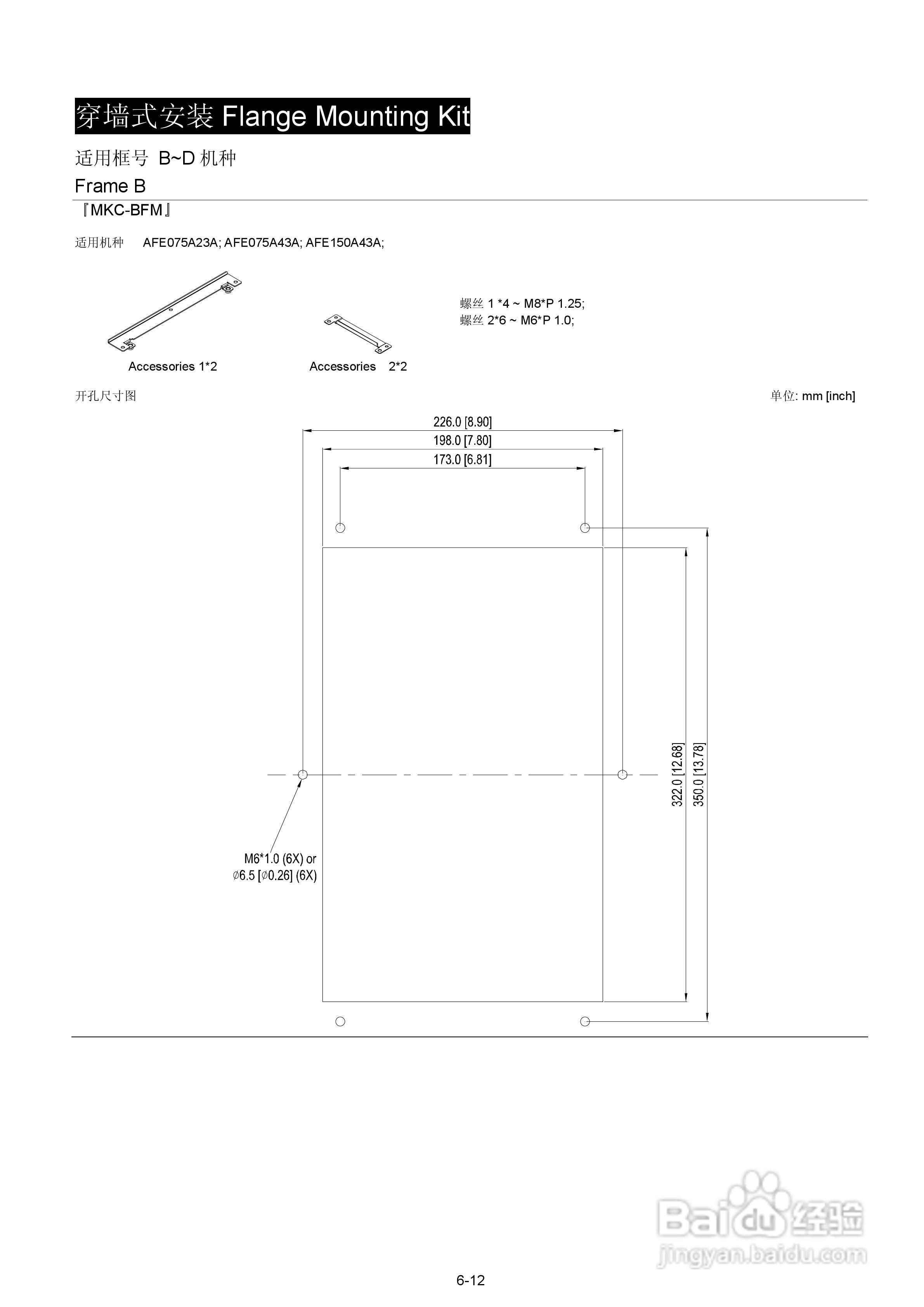
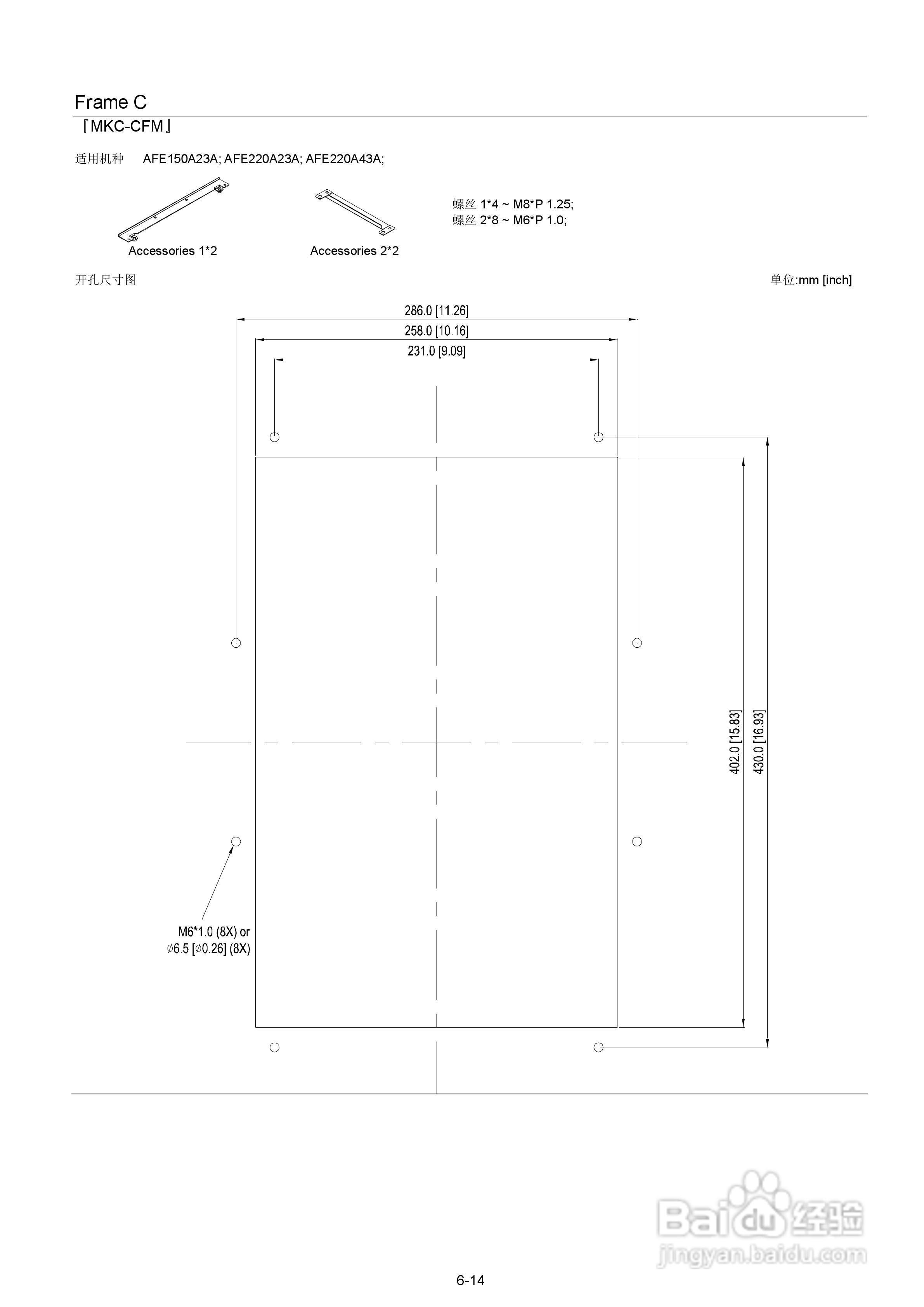
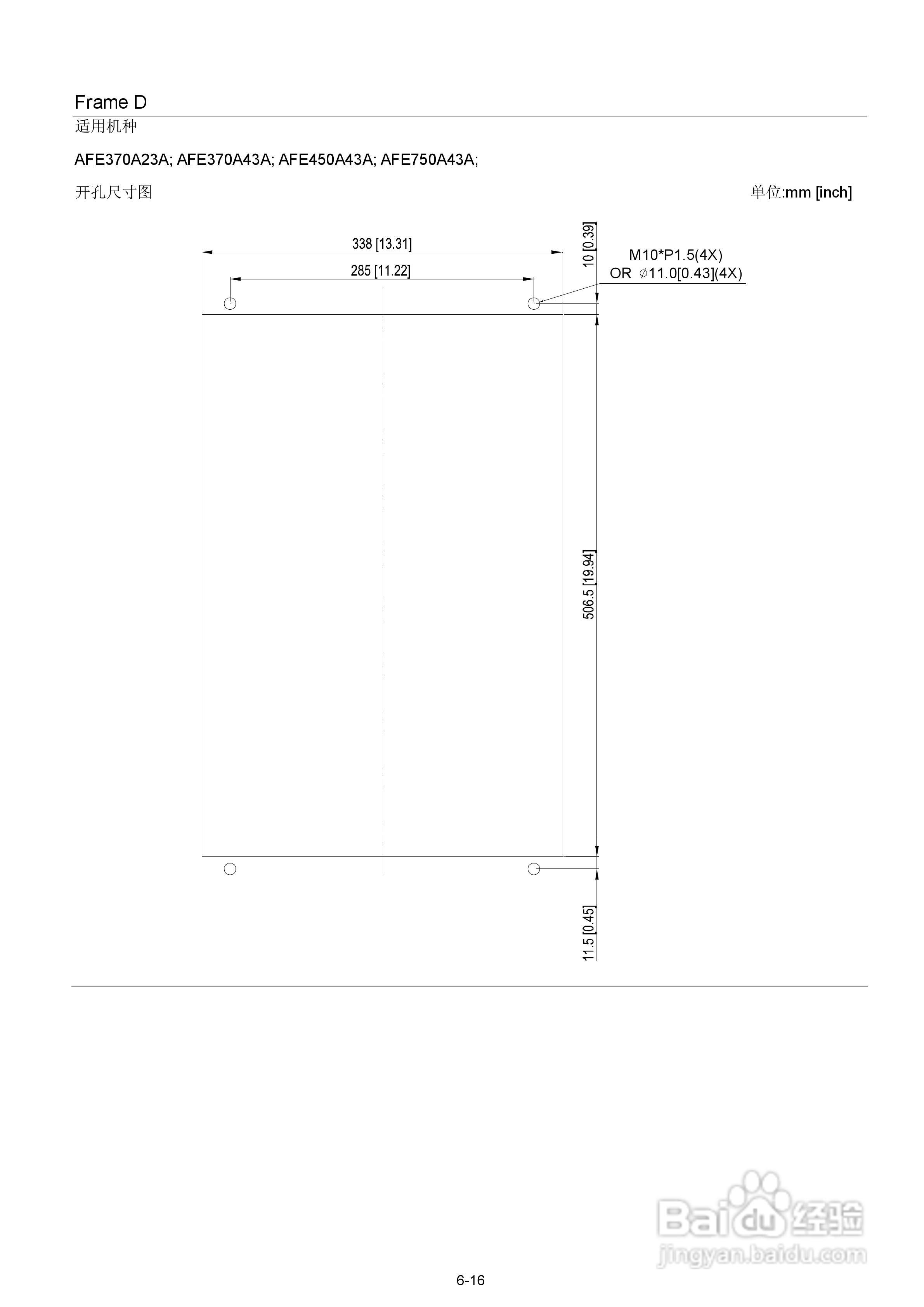
台达AFE2000主动式电源回生单元使用手册:[4]
2026-05-14 20:59:19
本篇为《台达AFE2000主动式电源回生单元使用手册》,主要介绍该产品的使用方法以及常见故障解决方案。
(共篇)
上一篇:
|
下一篇:
声明:
本网站引用、摘录或转载内容仅供网站访问者交流或参考,不代表本站立场,如存在版权或非法内容,请联系站长删除,联系邮箱:site.kefu@qq.com。
相关推荐
台达AFE2000主动式电源回生单元使用手册:[3]
阅读量:84
台达AFE2000主动式电源回生单元使用手册:[1]
阅读量:115
PCI-DMC-A01台达运动控制轴卡使用手册:[4]
阅读量:95
台达BLD-E1直流无刷马达驱动器使用手册:[4]
阅读量:159
台达BLD-E1直流无刷马达驱动器使用手册:[6]
阅读量:111
猜你喜欢
耳机如何煲机
耳机声音太小怎么办
首都师范大学科德学院怎么样
win7旗舰版怎么激活
如何预防近视眼
江州是哪里
更年期失眠怎么治疗
微信漂流瓶在哪里
如何戒烟
东风日产逍客怎么样
猜你喜欢
尼康d5200怎么样
领结婚证发朋友圈的句子
息肉是如何产生的
如何做好安全生产工作
哪里旅游最好玩
杨幂是哪里人
跑业务怎么跑
如何查个人信用记录
隆鼻哪里好
晋中学院怎么样