指南生活
首页
美食营养
手工爱好
生活家居
返回
指南生活
首页
美食营养
游戏数码
手工爱好
生活家居
健康养生
运动户外
职场理财
情感交际
母婴教育
时尚美容
知识问答
生活知识
生活百科
搜索
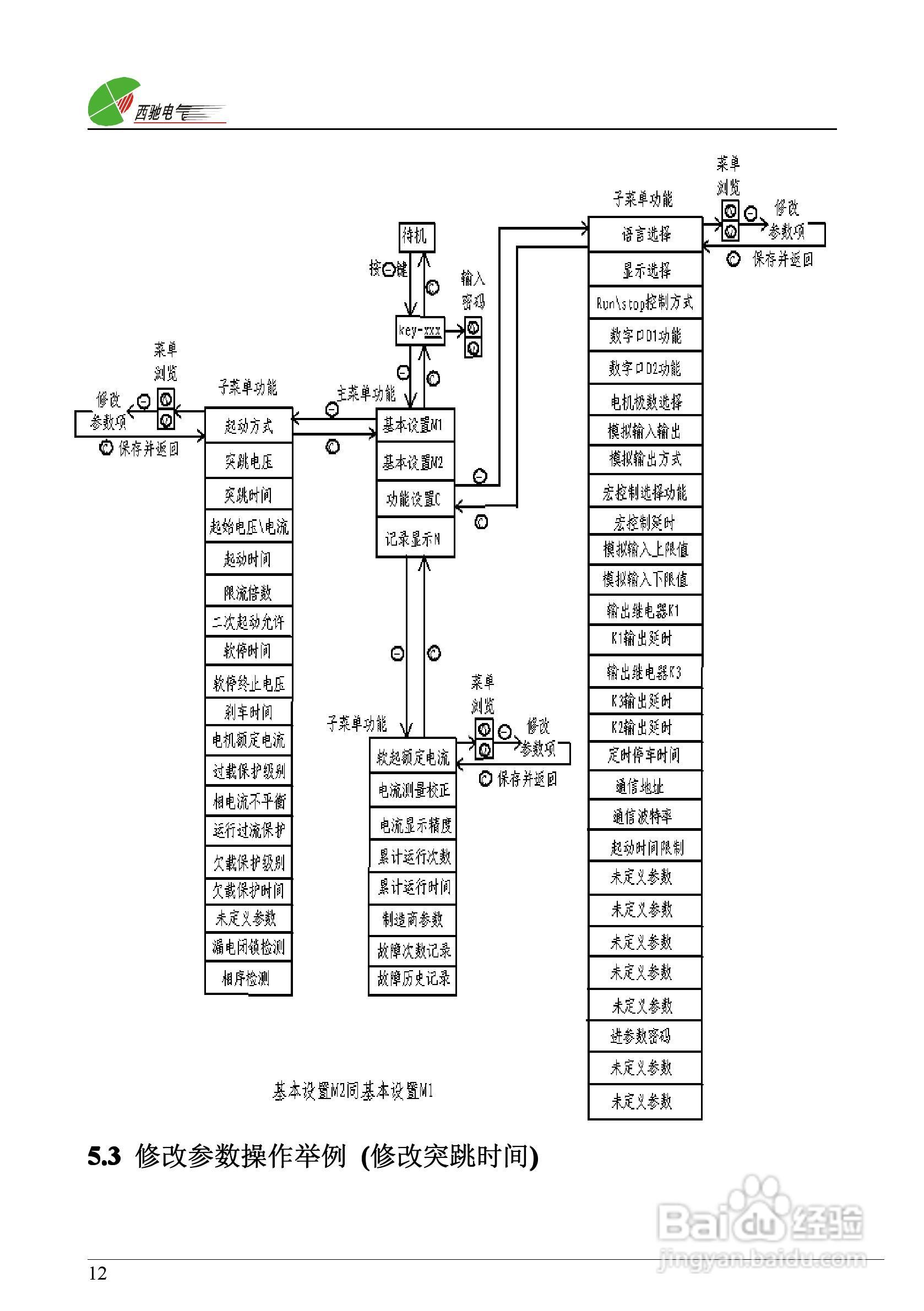
西驰软起SX2-2软起动器说明书:[2]
2026-03-29 19:42:08
本篇为《西驰软起SX2-2软起动器说明书》,主要介绍该产品的使用方法以及常见故障解决方案。
(共篇)
上一篇:
|
下一篇:
声明:
本网站引用、摘录或转载内容仅供网站访问者交流或参考,不代表本站立场,如存在版权或非法内容,请联系站长删除,联系邮箱:site.kefu@qq.com。
相关推荐
治疗痤疮要注意哪些事情
阅读量:107
夏季女人祛斑美白的几个妙招
阅读量:77
期货怎么开户
阅读量:151
小浦支付如何开启指纹支付
阅读量:40
人体低钾都是有哪些因素造成的
阅读量:103
猜你喜欢
什么是窦性心动过速
姿态的意思
万般无奈的意思
eye是什么意思
clean是什么意思
譬如的意思
sql是什么意思
话不投机什么意思
增持和买入有什么区别
今年流行什么鞋子女
猜你喜欢
什么是长焦镜头
菲林是什么意思
恩重如山的意思
利率是什么意思
下雨什么意思
教师资格证笔试什么时候出成绩
座右铭的意思
张冠李戴的意思是什么
面如土色的意思
活蹦乱跳的意思