在天正建筑中如何绘制双分三跑楼梯?
1、打开天正建筑,并简单绘制一个房间,如下图所示

2、点击“楼梯其他”,然后点击“双分三跑楼梯”,如下图所示


3、打开“双分三跑楼梯”编辑页面,依次选择自己需要的数据,如下图所示











4、在“双分三跑楼梯”编辑页面点击“确定”,如下图所示

5、根据命令行提示“点取位置”,绘制双分平行楼梯,如下图所示


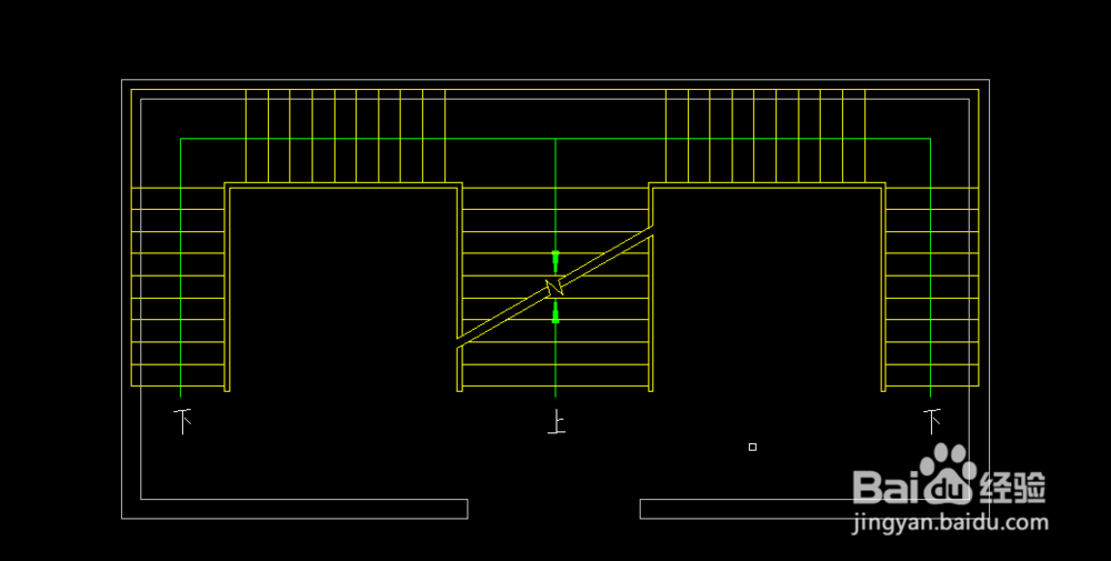
6、绘制完成后,如下图所示

7、在命令行输入“3DO”,点击回车键,进入“受约束的动态观察模式”,然后就可以直观的看到自己绘制的双分三跑楼梯,如下图所示

8、最后,可以改变一下“视觉样式”,看一下自己绘制的双分三跑楼梯;在“受约束的动态观察”模式下点击鼠标右键,选择“视觉样式”,点击“真实”,如下图所示

声明:本网站引用、摘录或转载内容仅供网站访问者交流或参考,不代表本站立场,如存在版权或非法内容,请联系站长删除,联系邮箱:site.kefu@qq.com。
阅读量:139
阅读量:36
阅读量:86
阅读量:192
阅读量:87