指南生活
首页
美食营养
手工爱好
生活家居
返回
指南生活
首页
美食营养
游戏数码
手工爱好
生活家居
健康养生
运动户外
职场理财
情感交际
母婴教育
时尚美容
知识问答
生活知识
生活百科
搜索
TH110D40ZZ-3电力高频开关电源模块使用说明书:[2]
2026-04-10 05:11:26
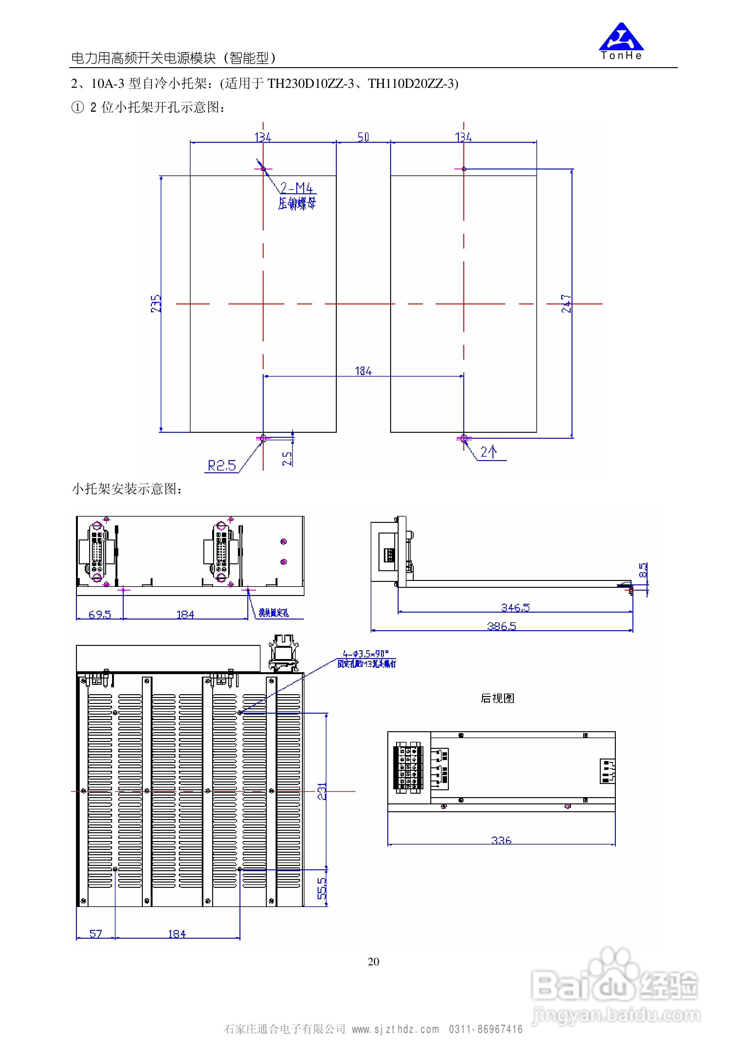
本篇为《TH110D40ZZ-3电力高频开关电源模块使用说明书》,主要介绍该产品的使用方法以及常见故障解决方案。
(共篇)
上一篇:
|
下一篇:
声明:
本网站引用、摘录或转载内容仅供网站访问者交流或参考,不代表本站立场,如存在版权或非法内容,请联系站长删除,联系邮箱:site.kefu@qq.com。
相关推荐
TH110D40ZZ-3电力高频开关电源模块使用说明书:[3]
阅读量:41
TH220D09ZZ-BG壁挂电源系统说明书:[3]
阅读量:178
TEP-M系列高频开关电源模块使用说明书:[1]
阅读量:57
GZDW微机自控高频开关电源直流系统使用说明书:[1]
阅读量:175
高频开关电源主要磁性元件的设计
阅读量:156
猜你喜欢
respect是什么意思
bin是什么意思
节哀顺便是什么意思
安装费计入什么科目
without是什么意思
of course是什么意思
齐桓公读音是什么
puzzle是什么意思
放样是什么意思
refuse是什么意思
猜你喜欢
s是什么单位
shirt什么意思
文昌是什么意思
古稀是什么意思
been是什么意思
白莲花什么意思
fabe是什么意思
流年是什么意思
本命年带什么好
投鼠忌器是什么意思