从地暖原理及安装看地暖好不好,真的有危害吗?
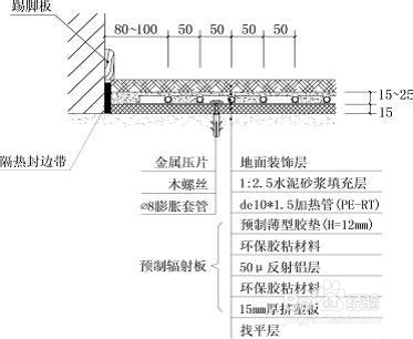
1、地暖原理:
地暖是以整个地面为散热器,通过地板辐射层中的热媒,均匀加热整个地面,利用地面自身的蓄热和热量向上辐射的规律由下至上进行传导,来达到取暖的目的。

2、地暖安装:
湿式地暖安装涉及保温层、地暖盘管、豆石水泥回填、分集水器、锅炉五大部分工序,安装难度高,系统维护、调试成本高。100m2需4人5天(管道2天,锅炉2天,调试1天)。安装复杂,盘管+温控器+分水器。干式地暖施工非常简单,包括干式地暖模块、分集水器、锅炉三部分工序,地暖施工就像铺地垫宝一样,非常简单,100平方干式地暖2人一天就完工,第二天就可以铺地板或地砖。

3、央视辟谣,那些关于地暖的谣言




4、地暖注意事项:


声明:本网站引用、摘录或转载内容仅供网站访问者交流或参考,不代表本站立场,如存在版权或非法内容,请联系站长删除,联系邮箱:site.kefu@qq.com。
                                阅读量:186
阅读量:113
阅读量:167
阅读量:25
阅读量:108