指南生活
首页
美食营养
手工爱好
生活家居
返回
指南生活
首页
美食营养
游戏数码
手工爱好
生活家居
健康养生
运动户外
职场理财
情感交际
母婴教育
时尚美容
知识问答
生活知识
生活百科
搜索
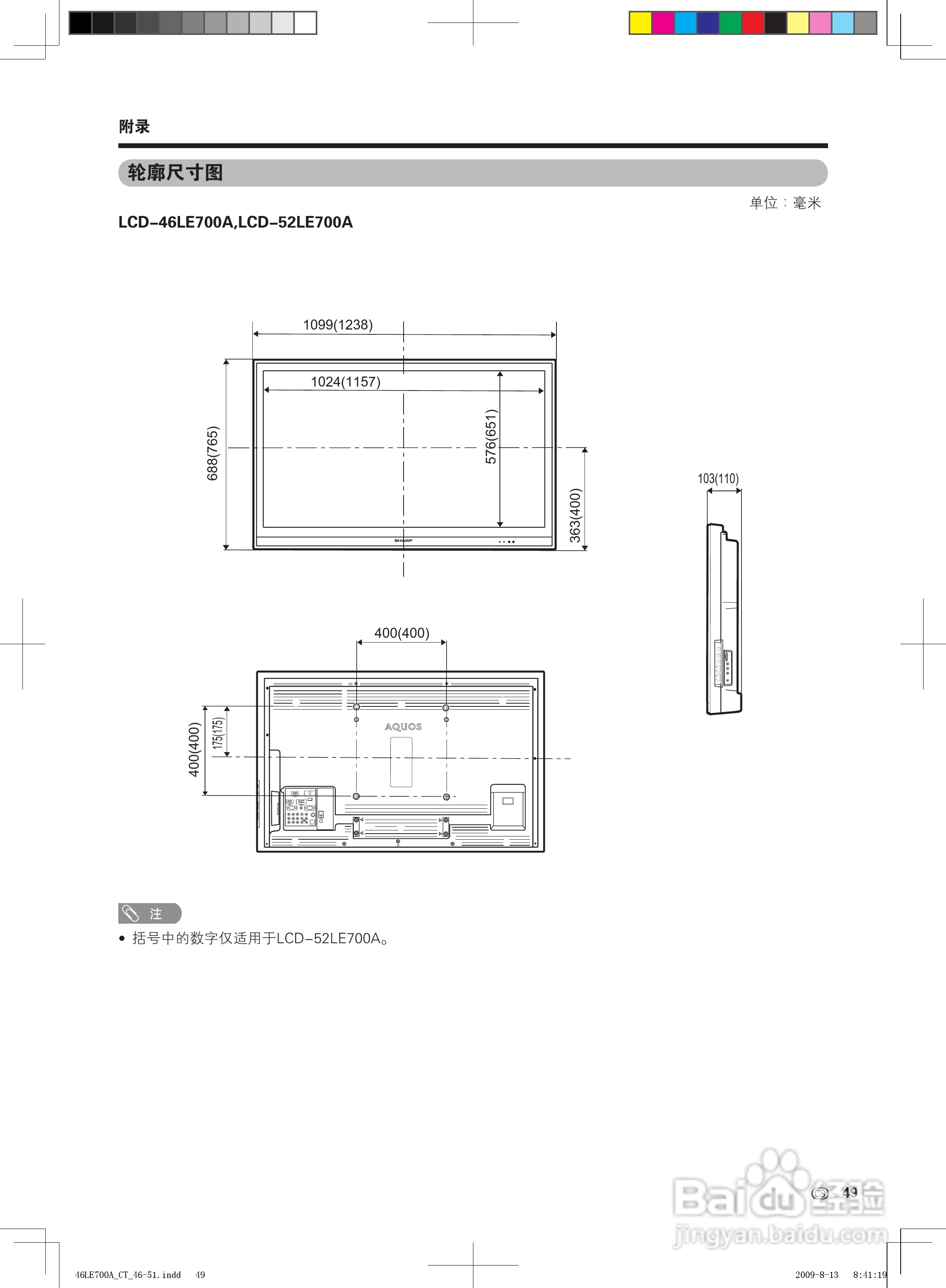
夏普LCD-52LE700A液晶彩电使用说明书:[5]
2026-04-07 03:01:44
/>
(共篇)
上一篇:
|
下一篇:
声明:
本网站引用、摘录或转载内容仅供网站访问者交流或参考,不代表本站立场,如存在版权或非法内容,请联系站长删除,联系邮箱:site.kefu@qq.com。
相关推荐
怎样把夏普电视声音接到音响?
阅读量:101
智能电视怎么下载安装南极TV,教你方法
阅读量:83
LG 32LH23UR-CA彩电使用说明书:[3]
阅读量:185
如何通过电脑给天猫魔盒m16c安装软件
阅读量:189
沙发管家教你如何安装小米盒子看直播
阅读量:160
猜你喜欢
要字怎么读
仙剑5前传攻略
月经期可以运动吗
川菜的特点
异地违章扣分怎么处理
如果时光可以倒流
哪些院校可以专升本
金迪木门怎么样
方太燃气灶怎么样
电子商务的特点
猜你喜欢
qq隐藏了怎么找出来
电信手机怎么查流量
隐藏的文件夹怎么恢复
老虎的特点
怎么算婚姻
艾滋病可以活多久
凉拌木耳
鼠标失灵不能动怎么办
et文件怎么打开
经期可以洗头吗