指南生活
首页
美食营养
手工爱好
生活家居
返回
指南生活
首页
美食营养
游戏数码
手工爱好
生活家居
健康养生
运动户外
职场理财
情感交际
母婴教育
时尚美容
知识问答
生活知识
生活百科
搜索
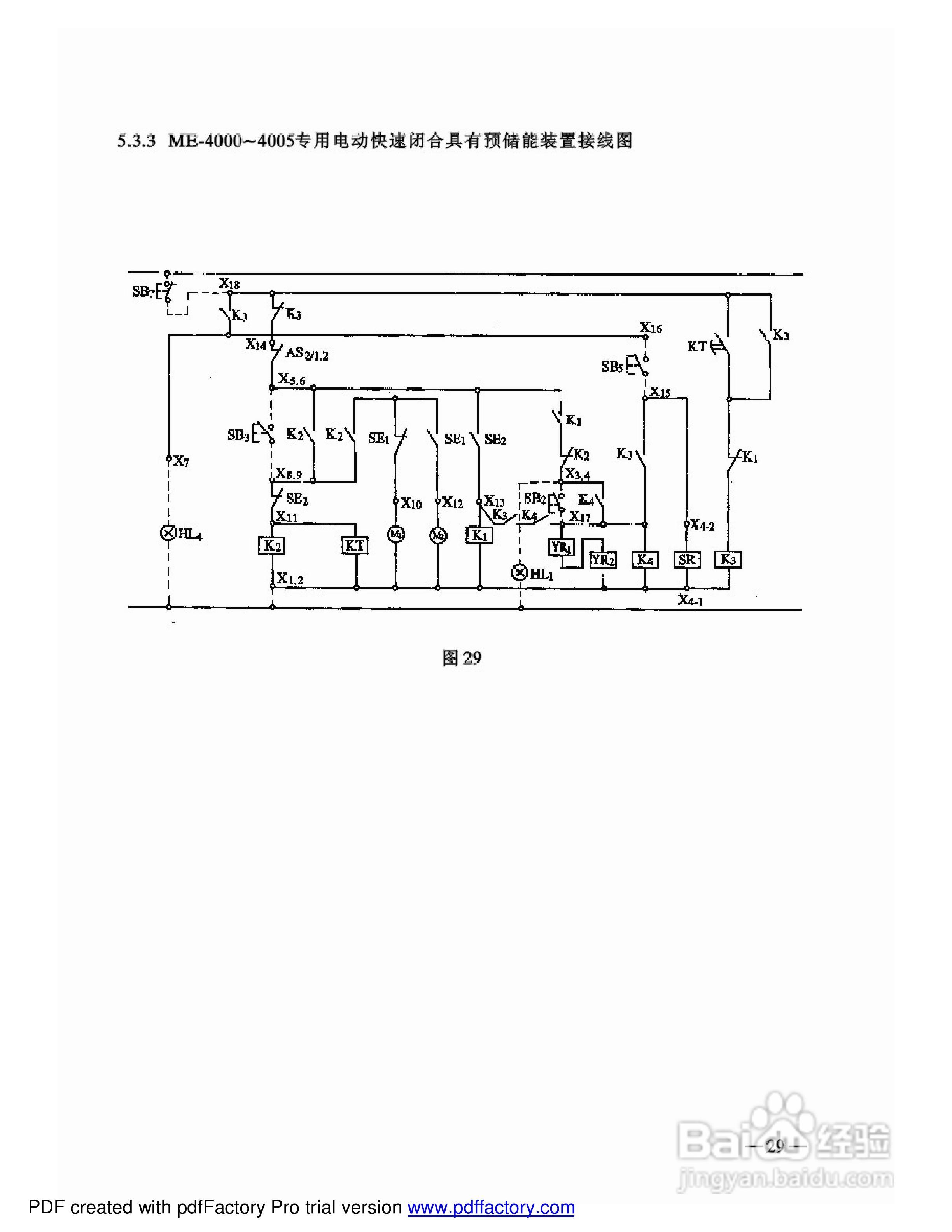
ME系列万能断路器说明书:[4]
2026-03-23 06:15:15
本篇为《ME系列万能断路器说明书》,主要介绍该产品的使用方法以及常见故障解决方案。
(共篇)
上一篇:
|
下一篇:
声明:
本网站引用、摘录或转载内容仅供网站访问者交流或参考,不代表本站立场,如存在版权或非法内容,请联系站长删除,联系邮箱:site.kefu@qq.com。
相关推荐
高层住宅都有哪些分类和优缺点?
阅读量:82
造纸厂烘缸轴修复方法的全程演示
阅读量:45
净水器滤芯寿命影响的几个因素
阅读量:165
怎样保存和烹调蔬菜才能最好保护维生素
阅读量:83
防跑车装置工作原理
阅读量:187
猜你喜欢
梦见自己生了个儿子是什么意思
佩服的意思
抹杀的意思
什么叫唯心主义
揩的意思
摆摊卖什么挣钱
旗舰店是什么意思
去健身房需要带什么
inspiration是什么意思
什么是开元盛世
猜你喜欢
长沙有什么好玩的景点
美术高考考什么
什么让生活更美好作文500字
租房子上什么网
乙肝表面抗原阳性是什么意思
gif用什么软件打开
牙膏洗脸有什么作用
什么是扮猪吃老虎
dnf搬砖是什么意思
wife是什么意思