指南生活
首页
美食营养
手工爱好
生活家居
返回
指南生活
首页
美食营养
游戏数码
手工爱好
生活家居
健康养生
运动户外
职场理财
情感交际
母婴教育
时尚美容
知识问答
生活知识
生活百科
搜索
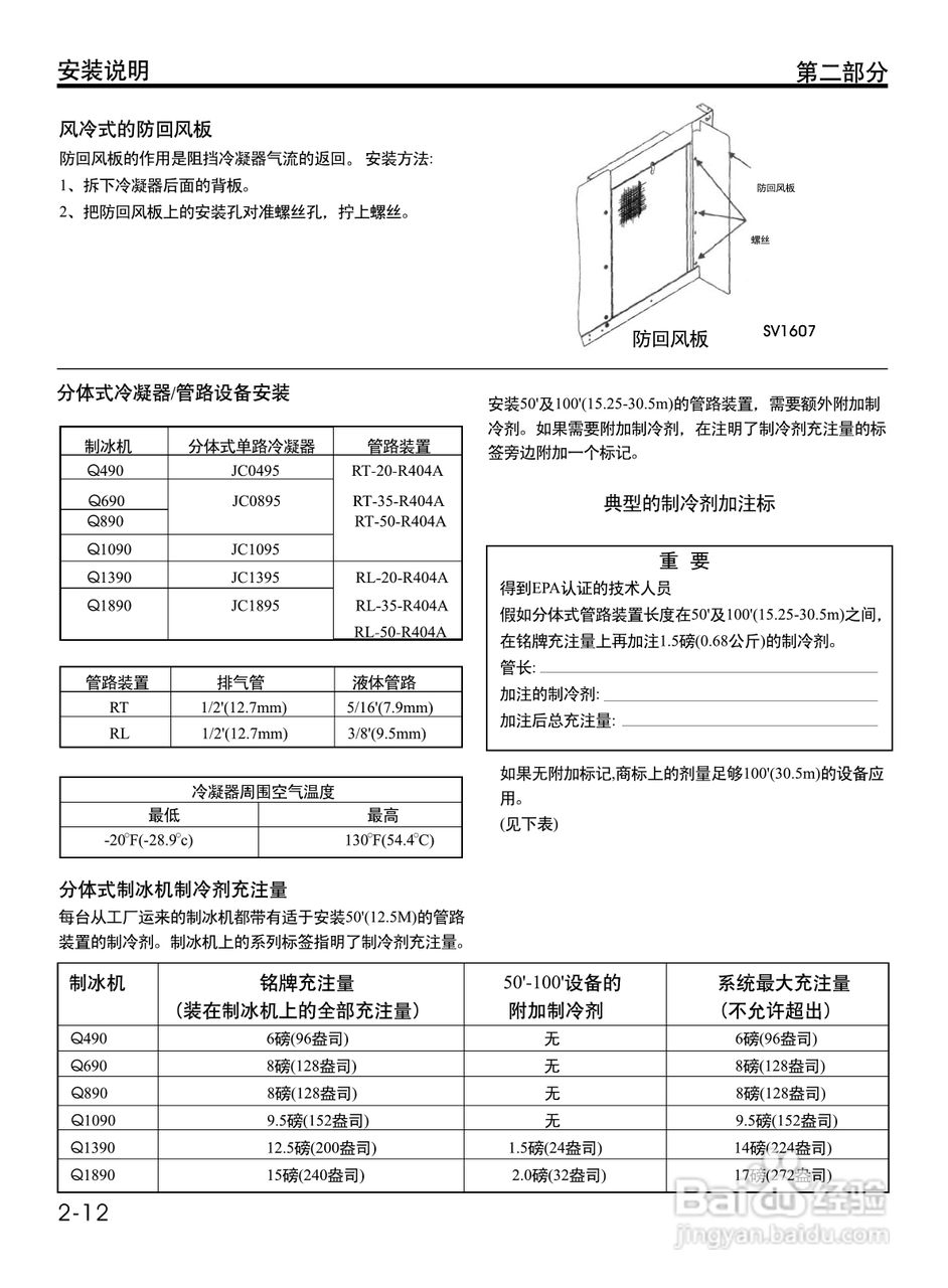
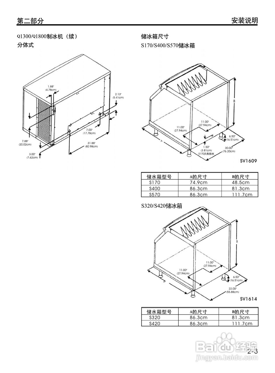
Manitowoc万利多QY1805WS制冰机说明书:[2]
2026-05-06 17:51:53
(共篇)
上一篇:
|
下一篇:
声明:
本网站引用、摘录或转载内容仅供网站访问者交流或参考,不代表本站立场,如存在版权或非法内容,请联系站长删除,联系邮箱:site.kefu@qq.com。
相关推荐
Manitowoc万利多QY1805WS制冰机说明书:[1]
阅读量:80
Manitowoc万利多QY0215W制冰机说明书:[2]
阅读量:86
Manitowoc万利多QY1394NS制冰机说明书:[2]
阅读量:143
Manitowoc万利多QY1394NS制冰机说明书:[5]
阅读量:75
Manitowoc万利多QY1394NS制冰机说明书:[3]
阅读量:139
猜你喜欢
取缔是什么意思
治灰指甲用什么药
投影仪什么牌子最好
君不见黄河之水天上来什么意思
宵衣旰食的意思
认筹是什么意思
恍然大悟的意思是
养精蓄锐是什么意思
chart是什么意思
brake是什么意思
猜你喜欢
61儿童节祝福语
掰弯是什么意思
地毯的意思
clever的意思
自行车头盔什么牌子好
电影彩蛋是什么意思
打秋风是什么意思
美国什么东西值得买
国庆节高速免费从什么时候开始2020
10万到15万买什么车好