指南生活
首页
美食营养
手工爱好
生活家居
返回
指南生活
首页
美食营养
游戏数码
手工爱好
生活家居
健康养生
运动户外
职场理财
情感交际
母婴教育
时尚美容
知识问答
生活知识
搜索
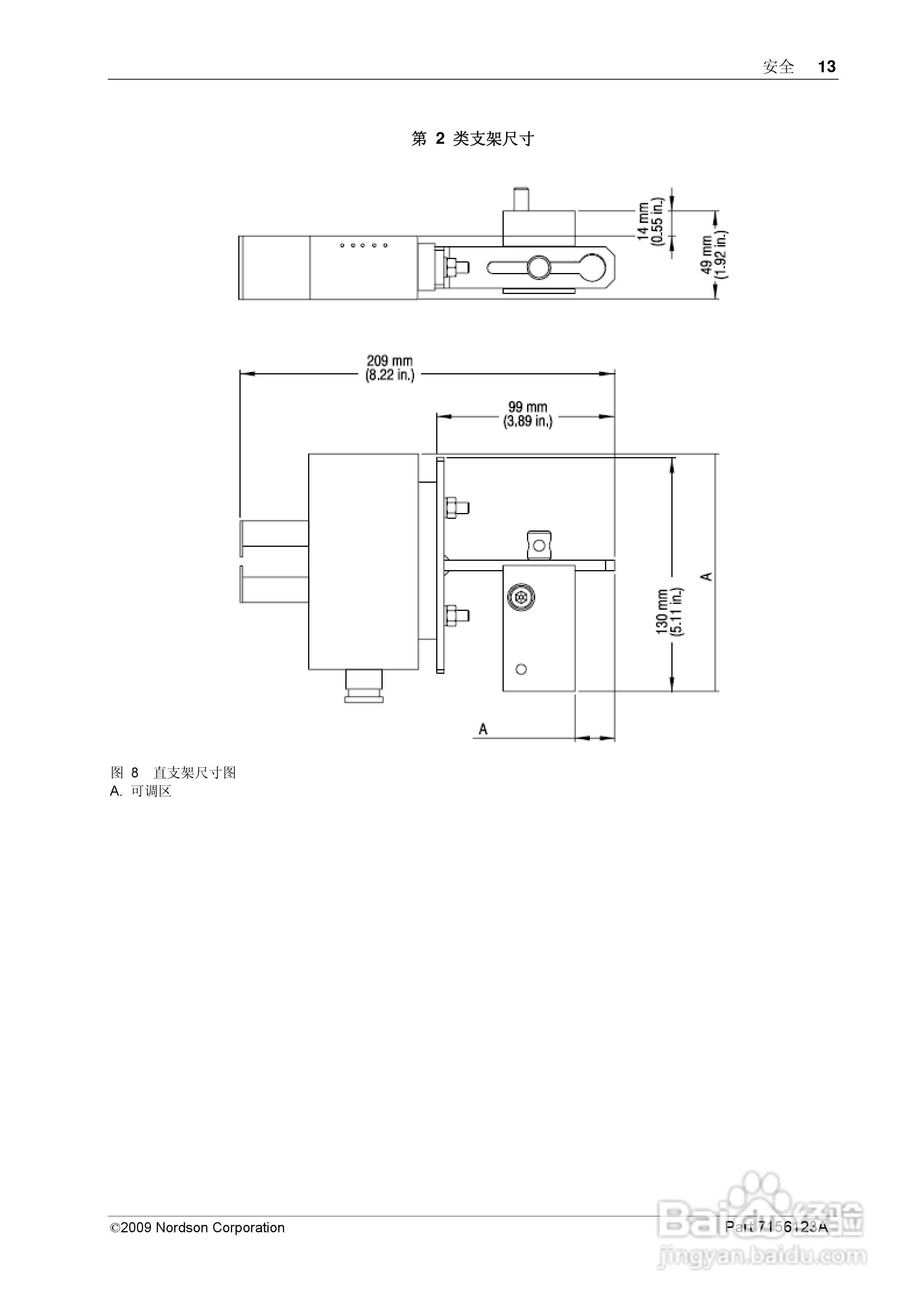
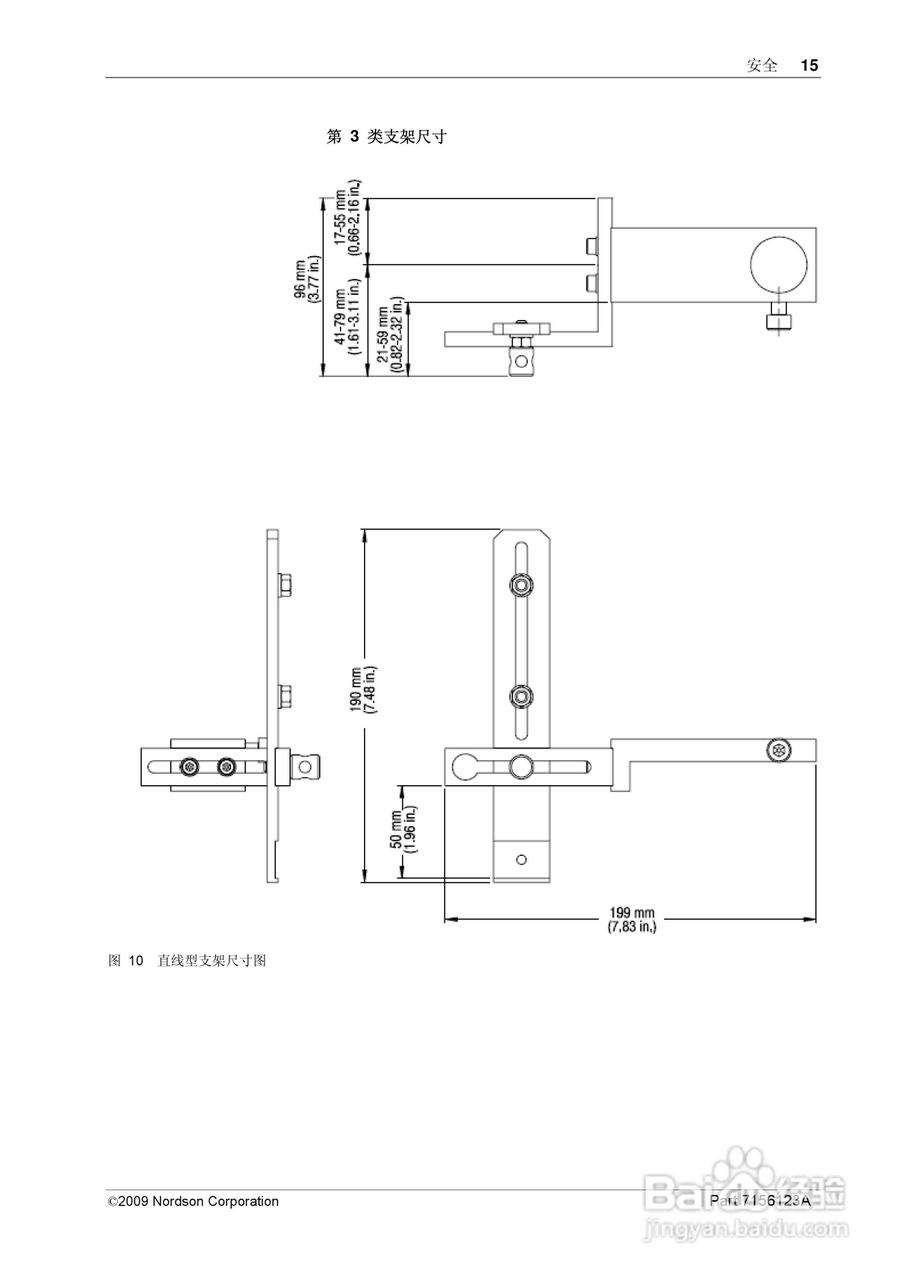
Nordson GD-500智能传感器使用手册:[2]
2026-01-05 01:32:29
本篇为《Nordson GD-500智能传感器使用手册》,主要介绍该产品的使用方法以及常见故障解决方案。
(共篇)
上一篇:
|
下一篇:
声明:
本网站引用、摘录或转载内容仅供网站访问者交流或参考,不代表本站立场,如存在版权或非法内容,请联系站长删除,联系邮箱:site.kefu@qq.com。
相关推荐
Windows10从18247更新升级到18252版系统教程
阅读量:195
手机酷我怎么找到mv的缓存文件
阅读量:196
绝地求生怎么显示防具耐久度?
阅读量:186
TS转AVI完美解决方案
阅读量:184
我的世界闪电侠粒子加速器怎么盖
阅读量:195
猜你喜欢
cal是什么意思
stand是什么意思
码农是什么意思
小动物尾巴的作用
遂的意思
母亲节送妈妈什么花
5g网络什么时候上市
离异是什么意思
三个牛字念什么
只争朝夕不负韶华的意思
猜你喜欢
有什么好看的穿越小说
q币能买什么
什么是角阀
市侩是什么意思
茶叶的作用
noble什么意思
对峙的意思
一马平川的意思
台班是什么意思
目无全牛的意思