指南生活
首页
美食营养
手工爱好
生活家居
返回
指南生活
首页
美食营养
游戏数码
手工爱好
生活家居
健康养生
运动户外
职场理财
情感交际
母婴教育
时尚美容
知识问答
生活知识
搜索
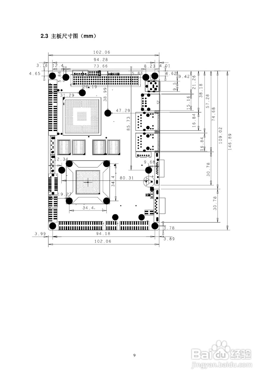
YDSTECH PCM-9351 3.5寸嵌入式主板用户手册:[1]
2026-01-16 15:41:39
本篇为《YDSTECH PCM-9351 3.5寸嵌入式主板用户手册》,主要介绍该产品的使用方法以及常见故障解决方案。
(共篇)
下一篇:
声明:
本网站引用、摘录或转载内容仅供网站访问者交流或参考,不代表本站立场,如存在版权或非法内容,请联系站长删除,联系邮箱:site.kefu@qq.com。
相关推荐
YDSTECH PCM-9351 3.5寸嵌入式主板用户手册:[3]
阅读量:167
深蓝宇PCM-6401工业主板用户手册:[3]
阅读量:76
深蓝宇PCM-4310工业主板用户手册:[1]
阅读量:129
深蓝宇PCM-6401工业主板用户手册:[5]
阅读量:72
深蓝宇PCM-3466工业主板用户手册:[3]
阅读量:187
猜你喜欢
俄罗斯大转盘多人运动
description是什么意思
铁树开花是什么意思
什么是炒股
戏答是什么意思
九月十九是什么日子
羊水穿刺什么时候做
背后长痘痘是什么原因
康乃馨代表什么
父亲节送爸爸什么礼物
猜你喜欢
1.24是什么星座
苹果6什么时候上市
验血能查出什么
运动会宣传稿300字
女孩子生日送什么礼物好
什么是光纤
鹅口疮是什么
1975年出生是什么命
terminal是什么意思
米兰花的养殖方法