指南生活
首页
美食营养
手工爱好
生活家居
返回
指南生活
首页
美食营养
游戏数码
手工爱好
生活家居
健康养生
运动户外
职场理财
情感交际
母婴教育
时尚美容
知识问答
生活知识
搜索
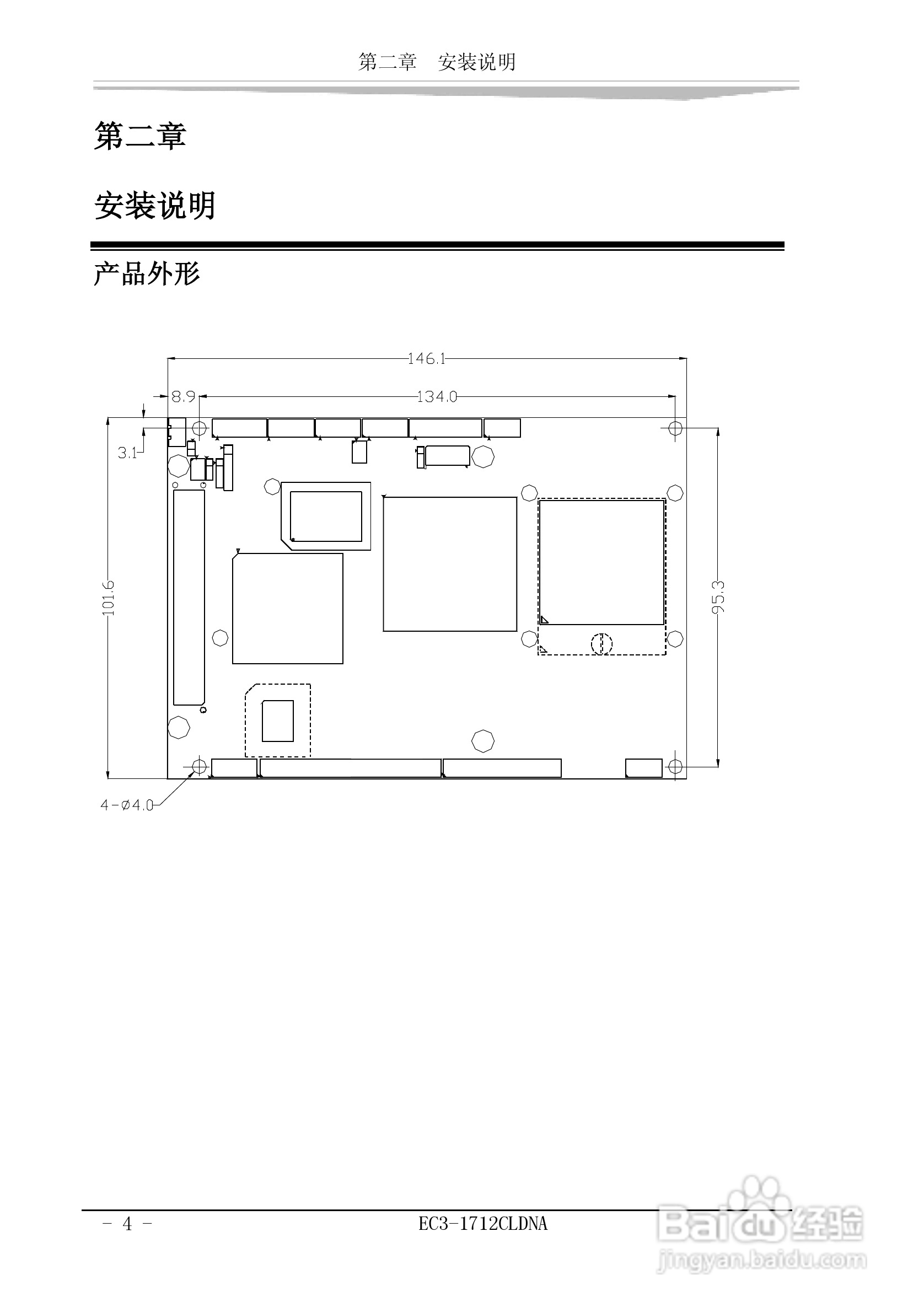
研祥EC3-1712CLDNA工业级CPU板卡说明书:[1]
2026-01-06 10:35:32
本篇为《研祥EC3-1712CLDNA工业级CPU板卡说明书》,主要介绍该产品的使用方法以及常见故障解决方案。
(共篇)
下一篇:
声明:
本网站引用、摘录或转载内容仅供网站访问者交流或参考,不代表本站立场,如存在版权或非法内容,请联系站长删除,联系邮箱:site.kefu@qq.com。
相关推荐
研祥EC5-1712CLDNA工业级CPU板卡说明书:[3]
阅读量:92
研祥EC3-1481CLDNA工业级CPU板卡说明书:[2]
阅读量:76
研祥EC5-1712CLDNA工业级CPU板卡说明书:[4]
阅读量:195
cpu怎么开启睿频
阅读量:138
cpu天梯图怎么看
阅读量:105
猜你喜欢
尼桑阳光怎么样
移动彩铃怎么换
颐指气使是什么意思
假期生活作文
如何设置虚拟内存
上升星座是什么意思
如何治疗阳痿
style是什么意思中文
摇钱树苗怎么种
双标是什么意思
猜你喜欢
如何减小腿
充气床怎么样
食指戴戒指是什么意思
如何减小腹
mmap文件怎么打开
叶秋的惬意生活
虾子怎么洗
房产营业税怎么算
如何让女人潮喷
碱性磷酸酶偏高是什么意思