指南生活
首页
美食营养
手工爱好
生活家居
返回
指南生活
首页
美食营养
游戏数码
手工爱好
生活家居
健康养生
运动户外
职场理财
情感交际
母婴教育
时尚美容
知识问答
生活知识
生活百科
搜索
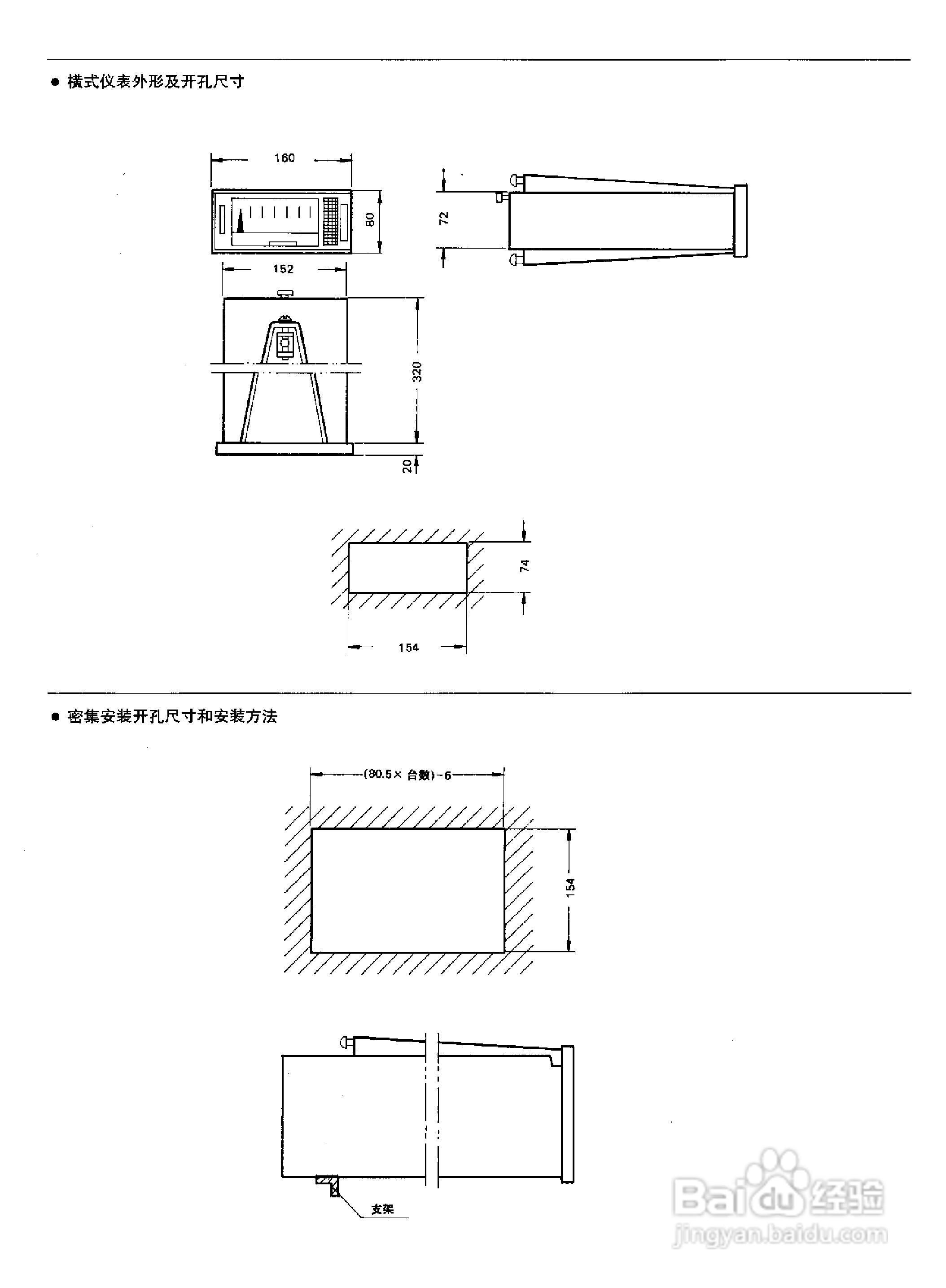
XWZK-1537A快速自动平衡显示记录仪说明书:[8]
2026-04-22 16:46:19
本篇为《XWZK-1537A快速自动平衡显示记录仪说明书》,主要介绍该产品的使用方法以及常见故障解决方案。
(共篇)
上一篇:
|
下一篇:
声明:
本网站引用、摘录或转载内容仅供网站访问者交流或参考,不代表本站立场,如存在版权或非法内容,请联系站长删除,联系邮箱:site.kefu@qq.com。
相关推荐
怎样申请英国投资移民
阅读量:73
怎样装修设计主题餐厅
阅读量:31
新西兰留学教你如何写学习计划书
阅读量:192
如何阻止电脑上弹出的广告和新闻
阅读量:132
如何避免电脑自动装软件
阅读量:91
猜你喜欢
god是什么意思
孕酮高是什么意思
左手中指戴戒指什么意思
横店是什么意思
临官是什么意思
若什么若什么
网抑云了是什么意思
白带多用什么药
吃海参有什么好处
血沉高是什么原因
猜你喜欢
卫校是什么
hrp是什么意思
本科毕业是什么学位
机架是什么
梦到杀人是什么意思
毫无违和感是什么意思
hole是什么意思
丢包是什么意思
初来乍到是什么意思
出轨是什么意思