指南生活
首页
美食营养
手工爱好
生活家居
返回
指南生活
首页
美食营养
游戏数码
手工爱好
生活家居
健康养生
运动户外
职场理财
情感交际
母婴教育
时尚美容
知识问答
生活知识
生活百科
搜索
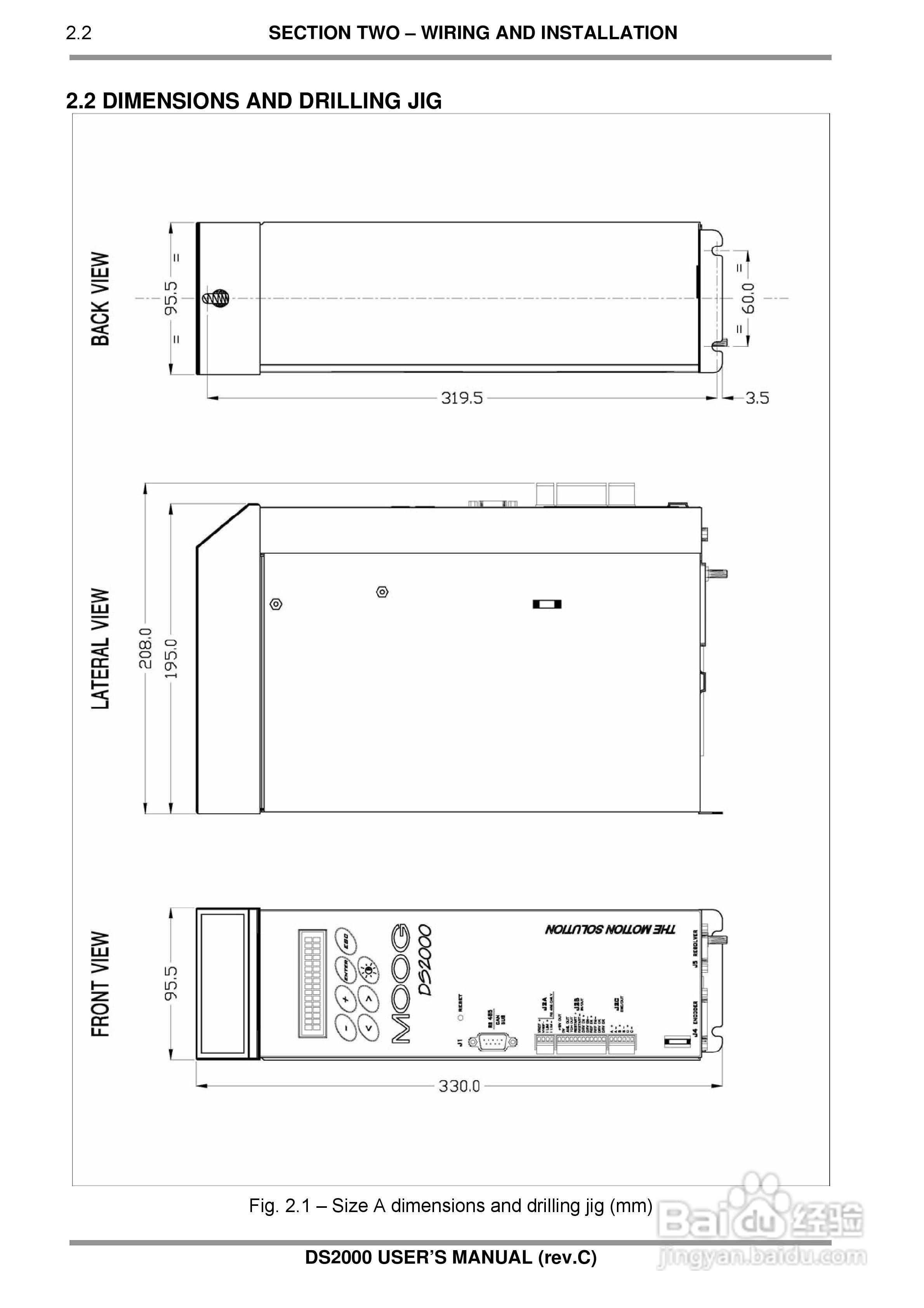
MOOG DS2000伺服驱动器说明书:[3]
2026-05-10 12:19:29
本篇为《MOOG DS2000伺服驱动器说明书》,主要介绍该产品的使用方法以及常见故障解决方案。
(共篇)
上一篇:
|
下一篇:
声明:
本网站引用、摘录或转载内容仅供网站访问者交流或参考,不代表本站立场,如存在版权或非法内容,请联系站长删除,联系邮箱:site.kefu@qq.com。
相关推荐
MOOG DS2000伺服驱动器说明书:[13]
阅读量:126
MOOG DS2000伺服驱动器说明书:[14]
阅读量:126
丹纳赫S200伺服驱动器说明书:[1]
阅读量:169
伺服驱动器选型
阅读量:63
线性伺服驱动器
阅读量:98
猜你喜欢
场效应管的作用
次氯酸钠的作用
欣赏的意思
直方图的作用
梦见羊是什么意思
刷机是什么意思
什么里的微感动作文
芝麻的作用
百合花什么时候种植
盼望的意思
猜你喜欢
fda认证是什么意思
树欲静而风不止子欲养而亲不待是什么意思
注销公司需要什么资料
海市蜃楼的意思
物语什么意思
惊魂未定的意思
440分能上什么大学
faq什么意思
节哀顺变是什么意思
让子弹飞什么意思