指南生活
首页
美食营养
手工爱好
生活家居
返回
指南生活
首页
美食营养
游戏数码
手工爱好
生活家居
健康养生
运动户外
职场理财
情感交际
母婴教育
时尚美容
知识问答
生活知识
生活百科
搜索
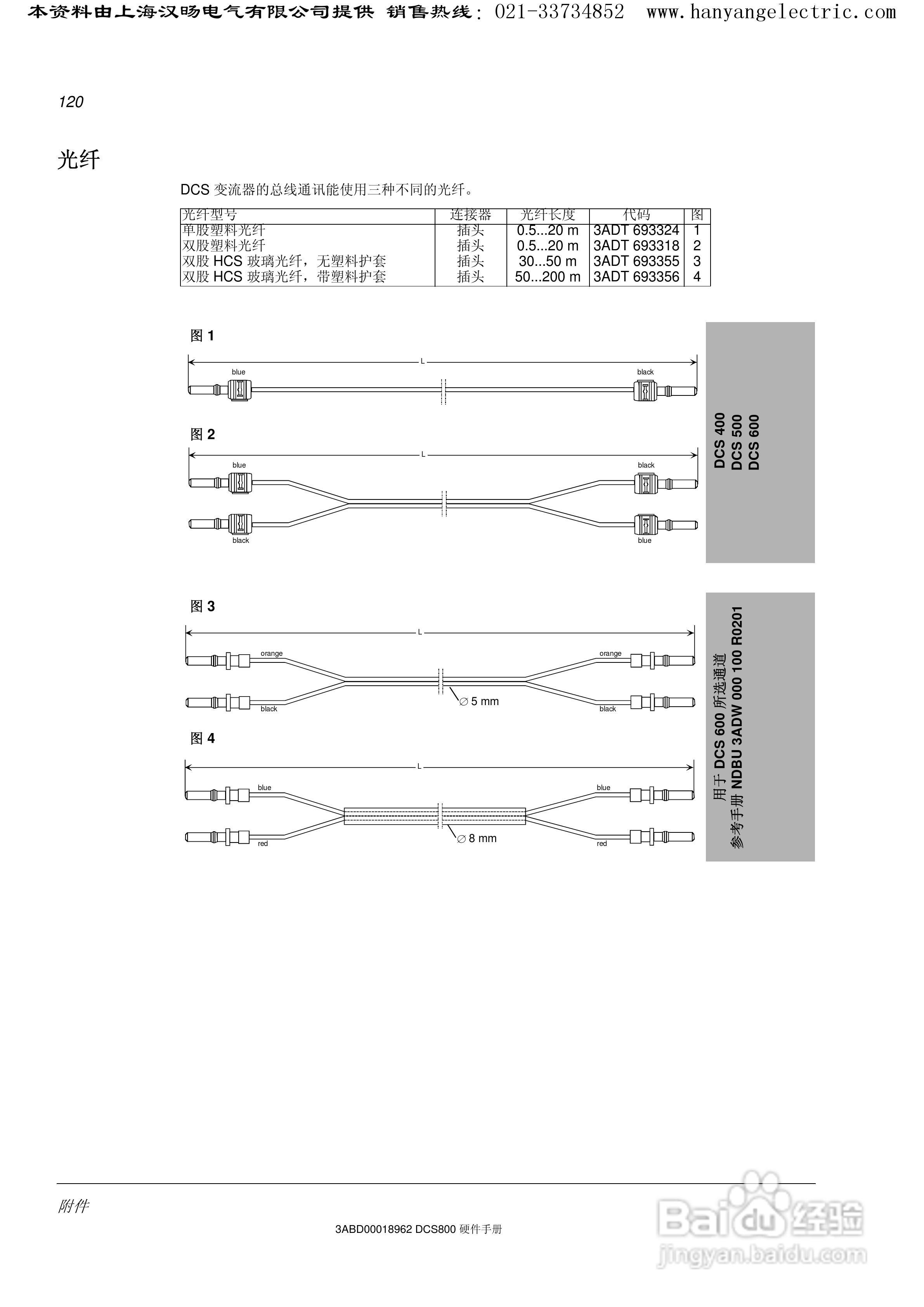
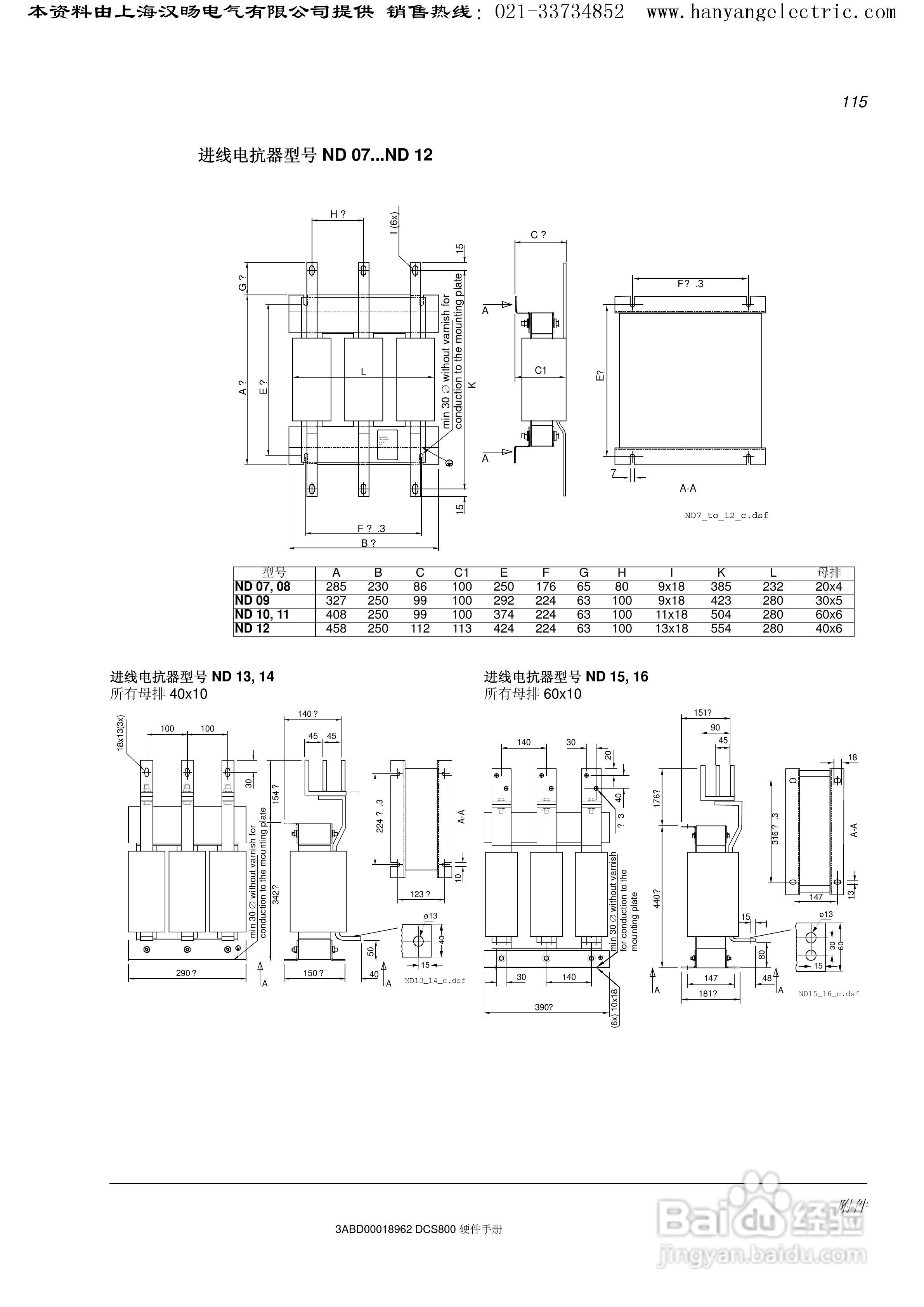
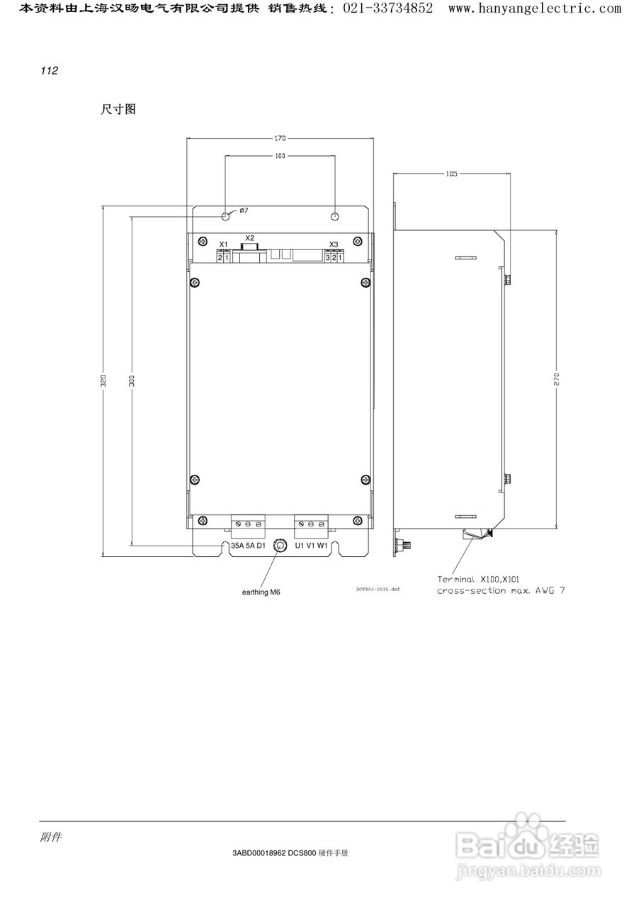
ABB DCS800直流驱动器中文手册:[12]
2026-03-30 01:23:38
本篇为《ABB DCS800直流驱动器中文手册》,主要介绍该产品的使用方法以及常见故障解决方案。
(共篇)
上一篇:
|
下一篇:
声明:
本网站引用、摘录或转载内容仅供网站访问者交流或参考,不代表本站立场,如存在版权或非法内容,请联系站长删除,联系邮箱:site.kefu@qq.com。
相关推荐
ABB DCS800直流驱动器中文手册:[11]
阅读量:90
ABB DCS800直流驱动器中文手册:[9]
阅读量:193
ABB DCS800直流驱动器中文手册:[6]
阅读量:137
DCS800ABB变流器说明书:[1]
阅读量:111
如何安装ABB RobotStudio
阅读量:185
猜你喜欢
见光死是什么意思
问道什么职业厉害
教师节送老师什么比较好呢
画蛇添足是什么意思
s12赛季什么时候开始
宅男是什么意思
什么手机好用又实惠
浮躁的意思
什么是感觉统合训练
上层建筑是什么意思
猜你喜欢
沽名钓誉是什么意思
浪是什么意思
花与乙女的祝福
围魏救赵的意思是什么
合页什么牌子好
高速etc是什么意思
什么粤语歌好听
清一色是什么意思
knife是什么意思
女孩生日送什么礼物好