指南生活
首页
美食营养
手工爱好
生活家居
返回
指南生活
首页
美食营养
游戏数码
手工爱好
生活家居
健康养生
运动户外
职场理财
情感交际
母婴教育
时尚美容
知识问答
生活知识
生活百科
搜索
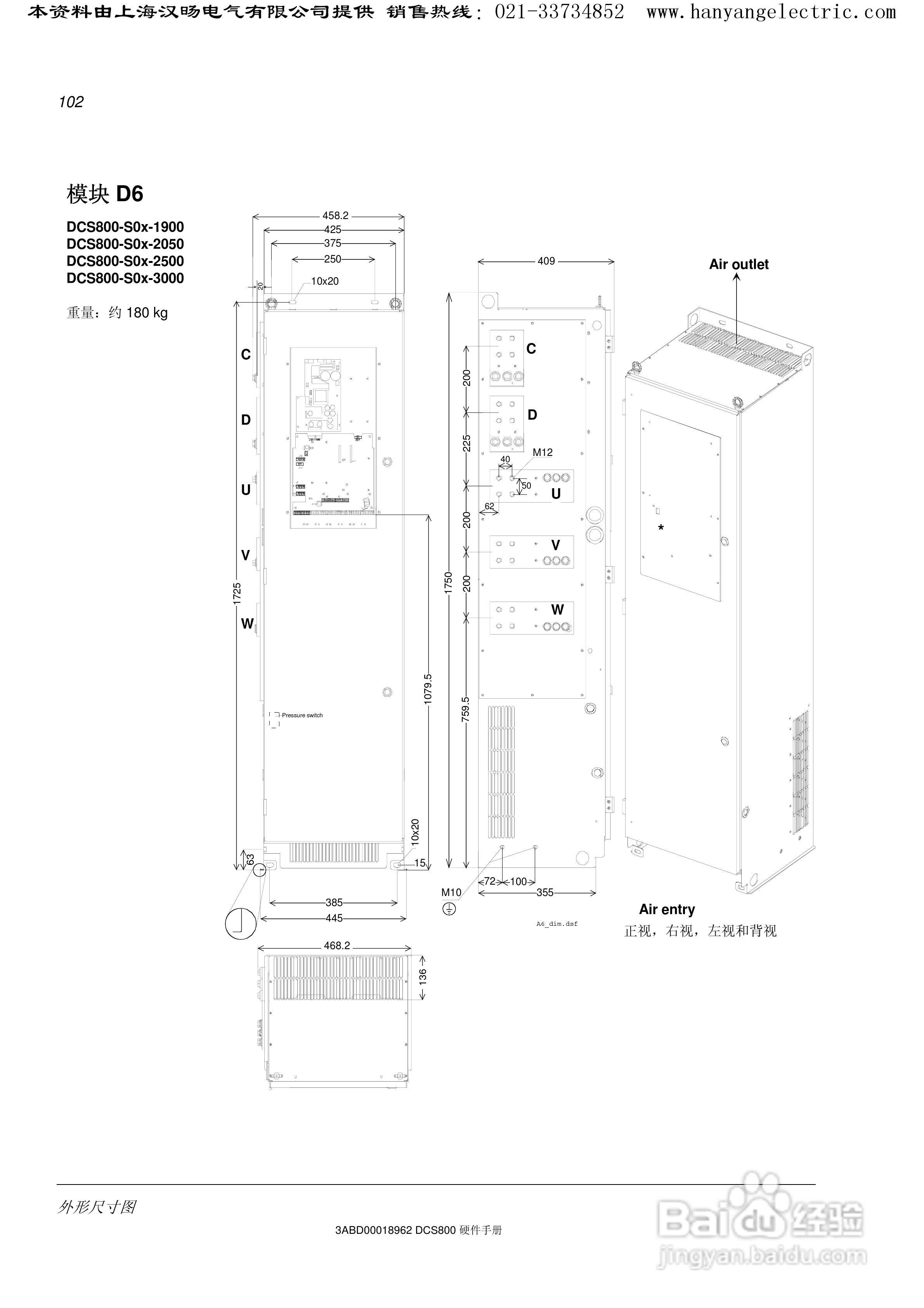
ABB DCS800直流驱动器中文手册:[11]
2026-03-30 00:09:39
本篇为《ABB DCS800直流驱动器中文手册》,主要介绍该产品的使用方法以及常见故障解决方案。
(共篇)
上一篇:
|
下一篇:
声明:
本网站引用、摘录或转载内容仅供网站访问者交流或参考,不代表本站立场,如存在版权或非法内容,请联系站长删除,联系邮箱:site.kefu@qq.com。
相关推荐
ABB DCS800直流驱动器中文手册:[12]
阅读量:188
ABB DCS800直流驱动器中文手册:[10]
阅读量:71
ABB DCS800直流驱动器中文手册:[7]
阅读量:44
DCS800ABB变流器说明书:[1]
阅读量:39
DCS800ABB变流器说明书:[2]
阅读量:105
猜你喜欢
减肥晚餐怎么吃
延禧攻略70集
泰拉瑞亚新手攻略
重庆黑山谷旅游攻略
怎样能健康减肥
怎么治疗眼袋
油性皮肤怎么护理
上海迪士尼乐园攻略
爬山虎怎么种
江西明月山旅游攻略
猜你喜欢
我的世界新手攻略
衬衫怎么搭配
支付宝密码忘记了怎么办
x型腿怎么矫正图解
四姑娘山攻略
不吃早餐可以减肥吗
口袋妖怪永恒之沫攻略
安徽新华学院怎么样
麦吉减肥法食谱
erp沙盘模拟攻略