指南生活
首页
美食营养
手工爱好
生活家居
返回
指南生活
首页
美食营养
游戏数码
手工爱好
生活家居
健康养生
运动户外
职场理财
情感交际
母婴教育
时尚美容
知识问答
生活知识
搜索
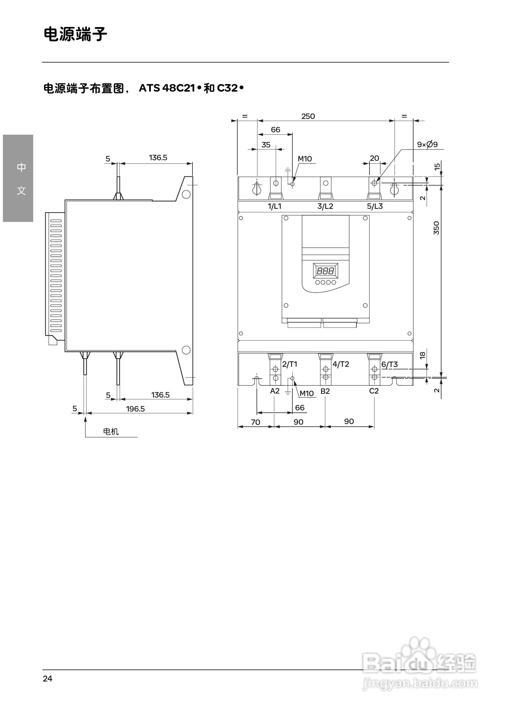
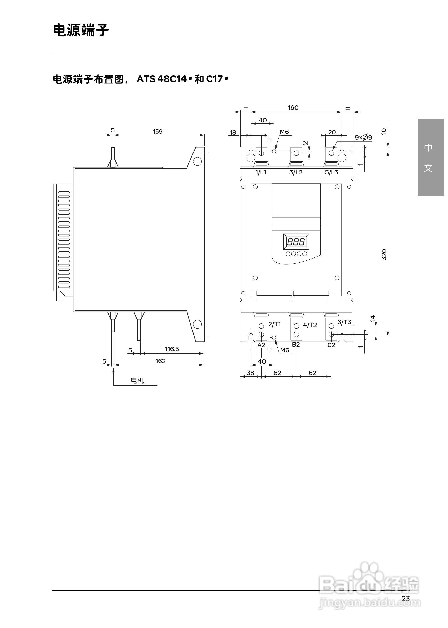
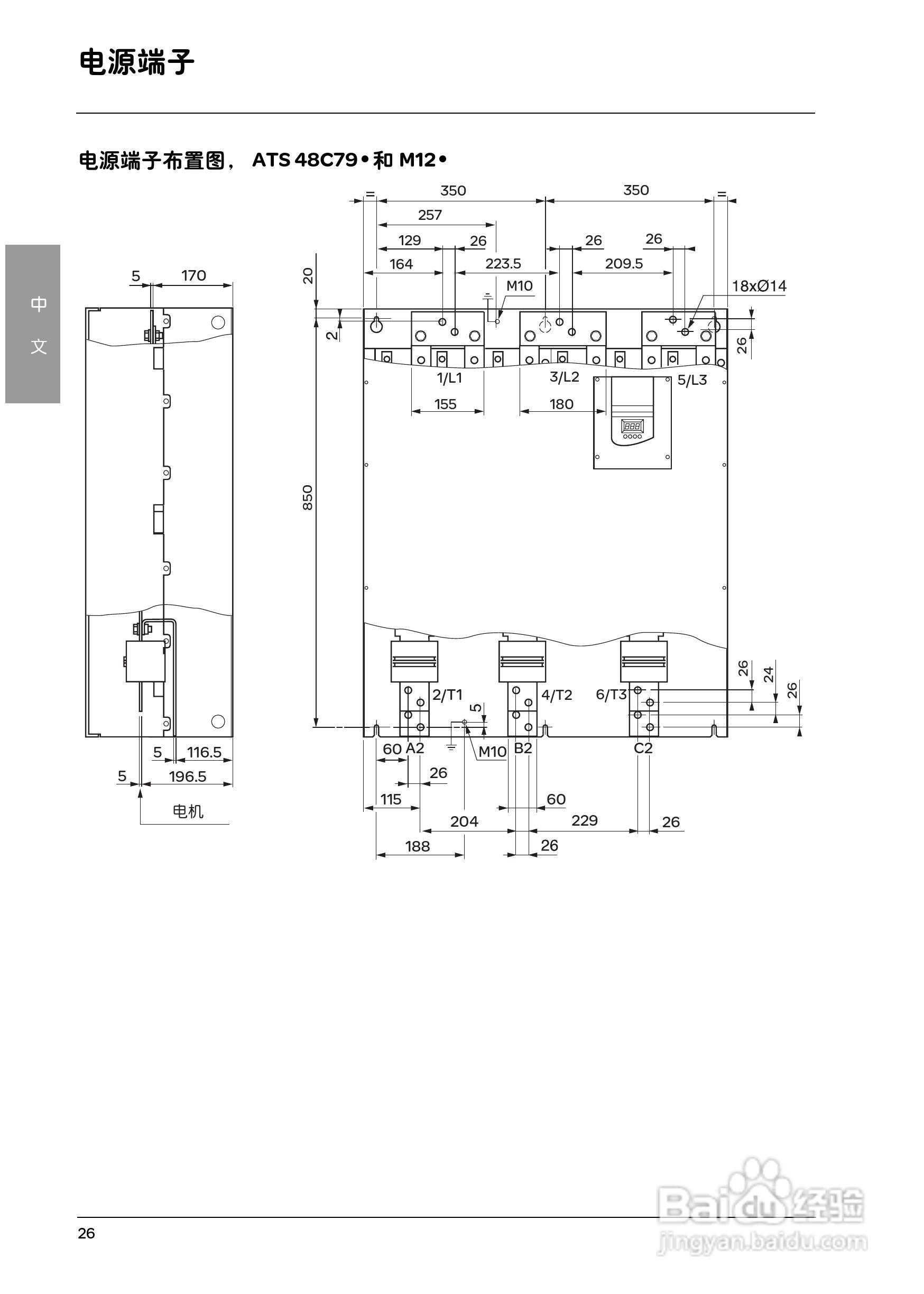
施耐德ATS48M12Q软启动器用户手册:[3]
2025-12-19 14:05:34
本篇为《施耐德ATS48M12Q软启动器用户手册》,主要介绍该产品的使用方法以及常见故障解决方案。
(共篇)
上一篇:
|
下一篇:
声明:
本网站引用、摘录或转载内容仅供网站访问者交流或参考,不代表本站立场,如存在版权或非法内容,请联系站长删除,联系邮箱:site.kefu@qq.com。
相关推荐
施耐德ATS48M12Q软启动器用户手册:[4]
阅读量:22
施耐德ATS46M12N软启动器用户手册:[2]
阅读量:38
CGR2000系列软启动器用户手册:[3]
阅读量:115
数字软启动器V5IM01AC用户手册:[3]
阅读量:117
数字软启动器V5IM01AC用户手册:[4]
阅读量:141
猜你喜欢
愠的意思
人比黄花瘦是什么意思
心经的作用
什么东西比较养胃
refresh什么意思
demon什么意思
什么叫电子邮件地址
一分钟能做什么事
中药川芎的功效与作用
网络交换机的作用
猜你喜欢
剥夺政治权利终身是什么意思
本命年是什么意思
mode是什么意思
内敛是什么意思
985211大学是什么意思
打量的意思
人死之前有什么征兆
开间是什么意思
孕妇能用什么护肤品
class是什么意思翻译