指南生活
首页
美食营养
手工爱好
生活家居
返回
指南生活
首页
美食营养
游戏数码
手工爱好
生活家居
健康养生
运动户外
职场理财
情感交际
母婴教育
时尚美容
知识问答
生活知识
生活百科
搜索
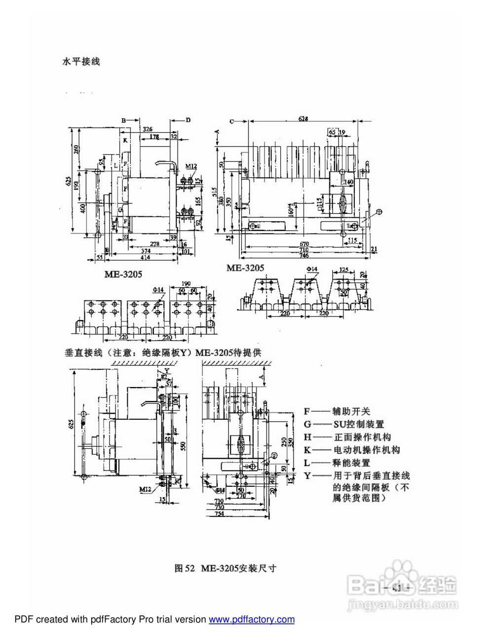
ME系列万能断路器说明书:[5]
2026-04-27 03:18:44
本篇为《ME系列万能断路器说明书》,主要介绍该产品的使用方法以及常见故障解决方案。
(共篇)
上一篇:
|
下一篇:
声明:
本网站引用、摘录或转载内容仅供网站访问者交流或参考,不代表本站立场,如存在版权或非法内容,请联系站长删除,联系邮箱:site.kefu@qq.com。
相关推荐
三菱FR-E520S-2.2K-CH变频器说明书:[2]
阅读量:174
脚踏开关的接线方法
阅读量:37
三相电怎么接出220v图
阅读量:144
水用电磁阀安装图 说明
阅读量:61
冷水机不制冷并且无报警提示的原因分析
阅读量:195
猜你喜欢
热情的近义词
小腿粗怎么减
夏普电视机怎么样
裳怎么组词
近义词辨析
批评的近义词是什么
申请书怎么写范文
喜欢的近义词
末地传送门怎么找
大麦盒子怎么用
猜你喜欢
粉饼碎了怎么办
怎么去除衣服上的火锅味
坚持的近义词
基金怎么买卖
男士发型
爱空间装修怎么样
入库单怎么填写
折线图怎么做
褴褛的近义词
轻蔑的近义词是什么