指南生活
首页
美食营养
手工爱好
生活家居
返回
指南生活
首页
美食营养
游戏数码
手工爱好
生活家居
健康养生
运动户外
职场理财
情感交际
母婴教育
时尚美容
知识问答
生活知识
生活百科
搜索
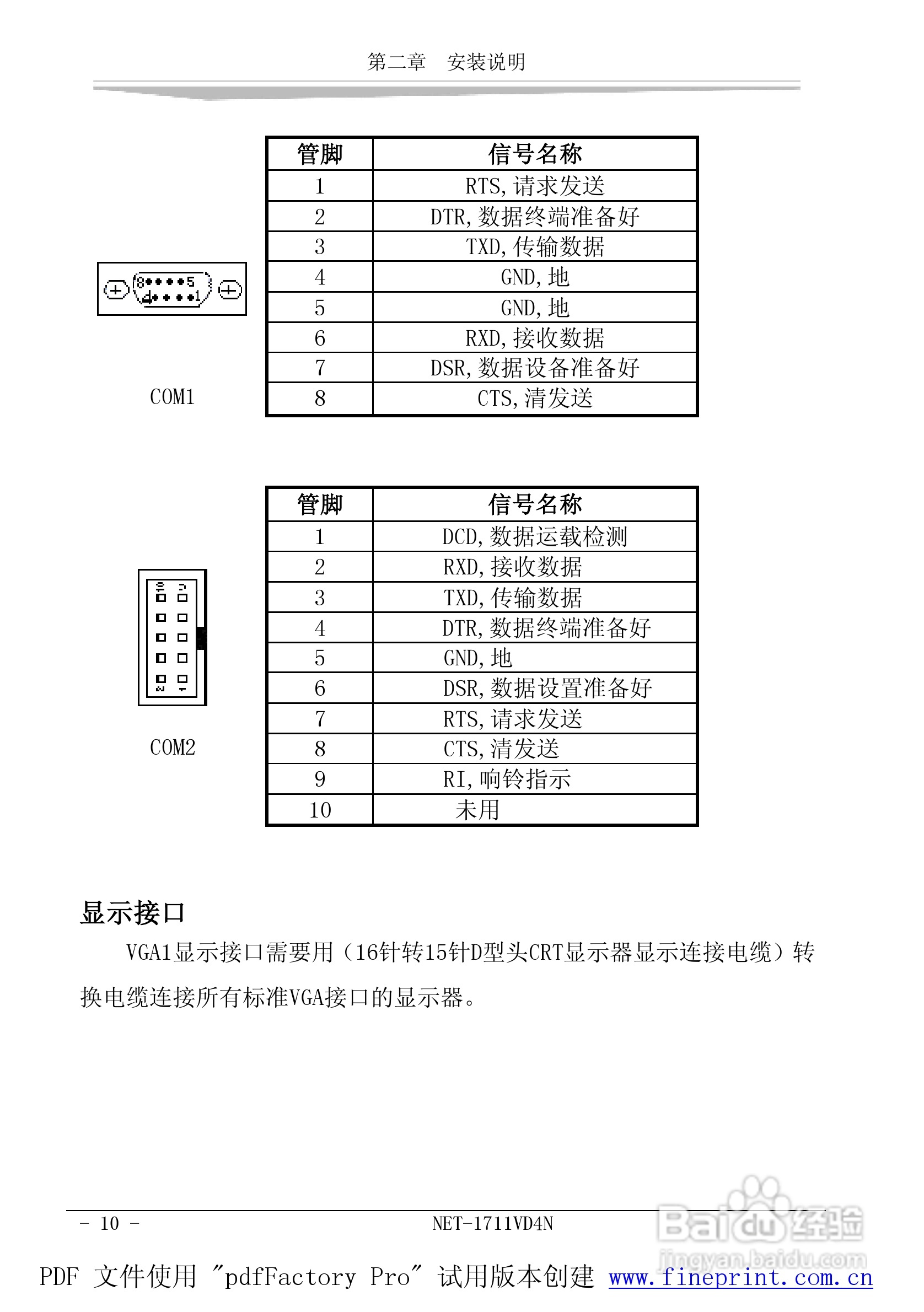
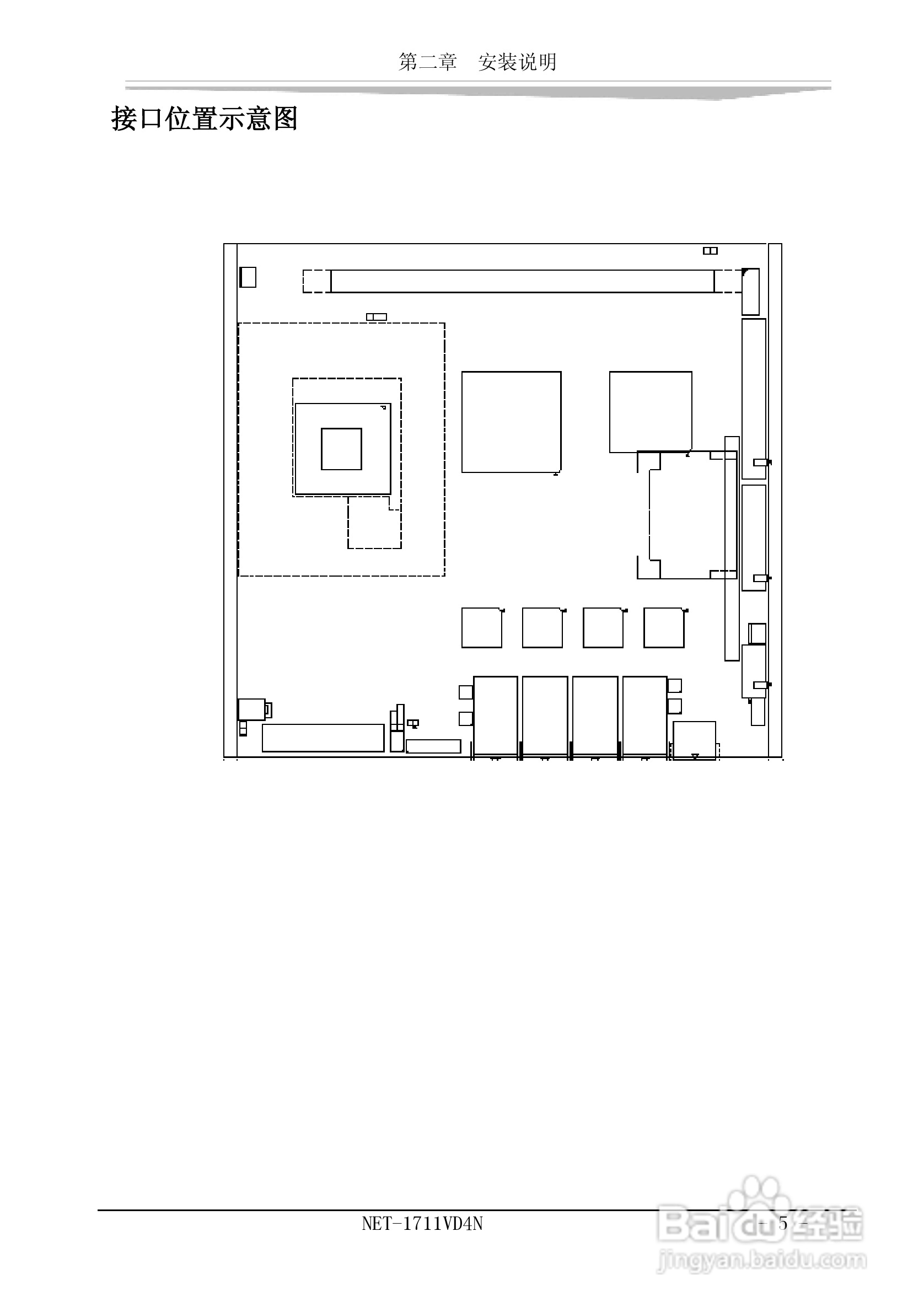
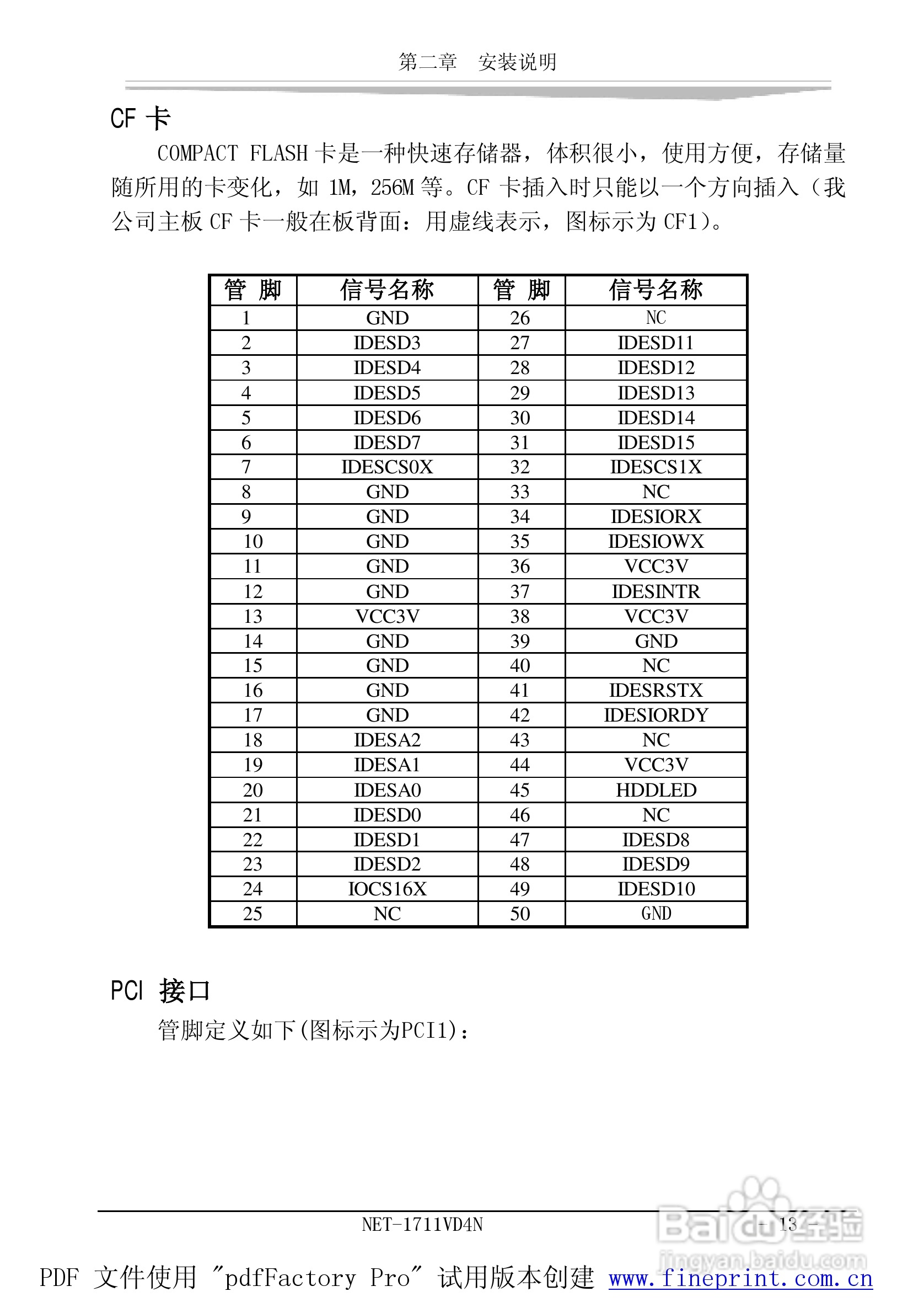
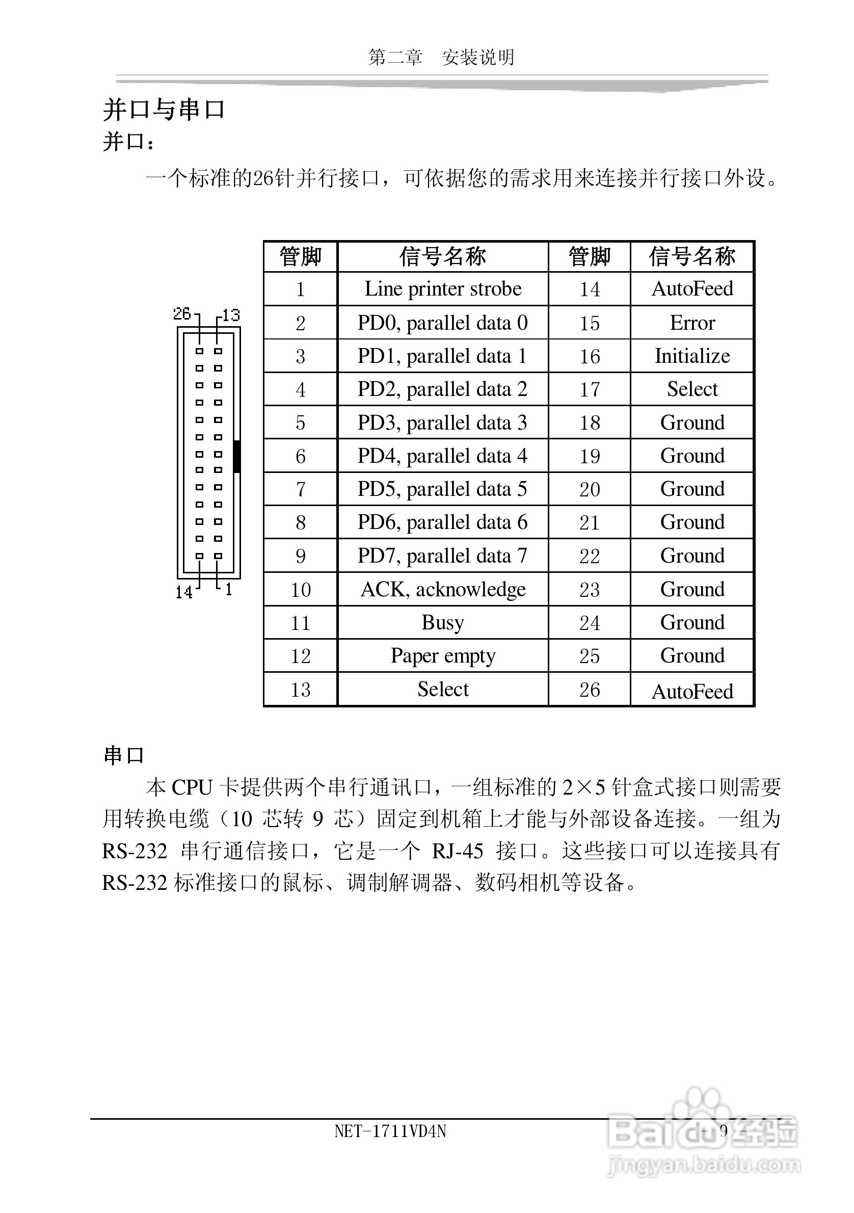
研祥NET-1711VD4N工业级CPU板卡说明书:[2]
2026-04-03 08:23:05
本篇为《研祥NET-1711VD4N工业级CPU板卡说明书》,主要介绍该产品的使用方法以及常见故障解决方案。
(共篇)
上一篇:
|
下一篇:
声明:
本网站引用、摘录或转载内容仅供网站访问者交流或参考,不代表本站立场,如存在版权或非法内容,请联系站长删除,联系邮箱:site.kefu@qq.com。
相关推荐
研祥EC9-1711LNA工业级CPU板卡说明书:[2]
阅读量:47
研祥EC5-1711CLDNA工业级CPU板卡说明书:[2]
阅读量:50
研祥EC5-1711CLDNA工业级CPU板卡说明书:[6]
阅读量:135
研祥EC3-1711CLDNA工业级CPU板卡说明书:[3]
阅读量:194
cpu怎么开启睿频
阅读量:78
猜你喜欢
红烧排骨怎么做
页眉怎么删除
amy怎么读英语
太胖了怎么办
罗非鱼的做法大全
吕布怎么死的
兮怎么读
豆腐脑怎么做
大便出血但不痛怎么回事
中芯国际为什么是外企
猜你喜欢
自我介绍怎么写
劾怎么读
跖疣怎么读
12306怎么注册
内眼角痒是怎么回事
肝火旺盛怎么调理
今天股市为什么大跌
我的世界南瓜怎么种
孕妇为什么不能吃火锅
苦瓜怎么吃降糖