指南生活
首页
美食营养
手工爱好
生活家居
返回
指南生活
首页
美食营养
游戏数码
手工爱好
生活家居
健康养生
运动户外
职场理财
情感交际
母婴教育
时尚美容
知识问答
生活知识
生活百科
搜索
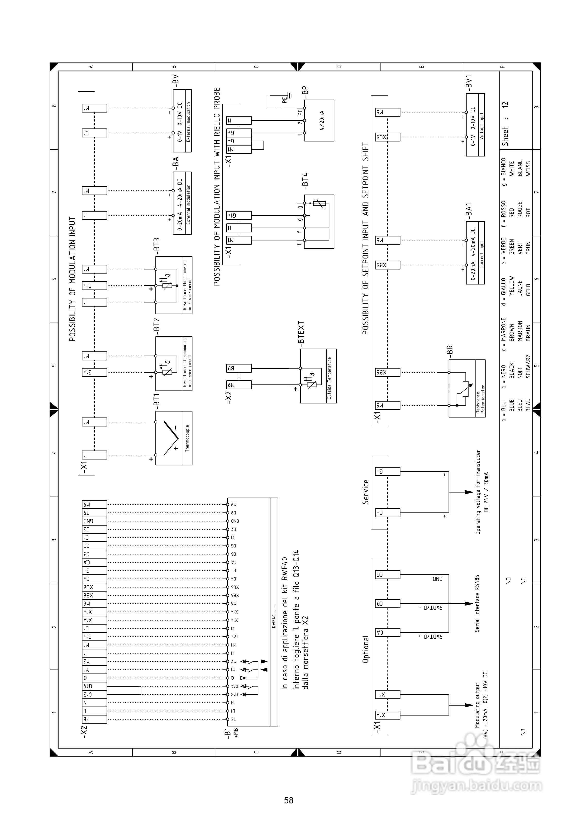
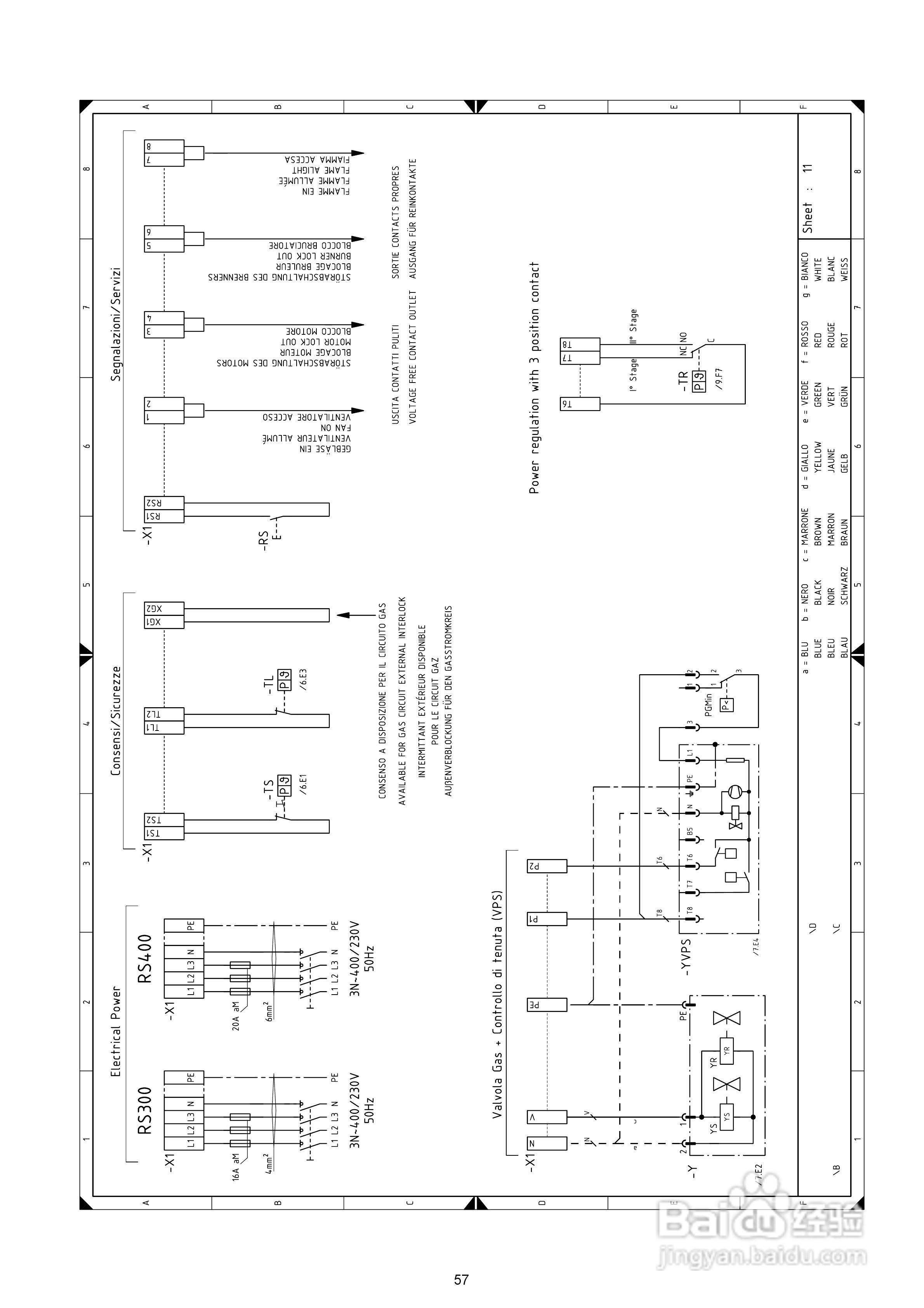
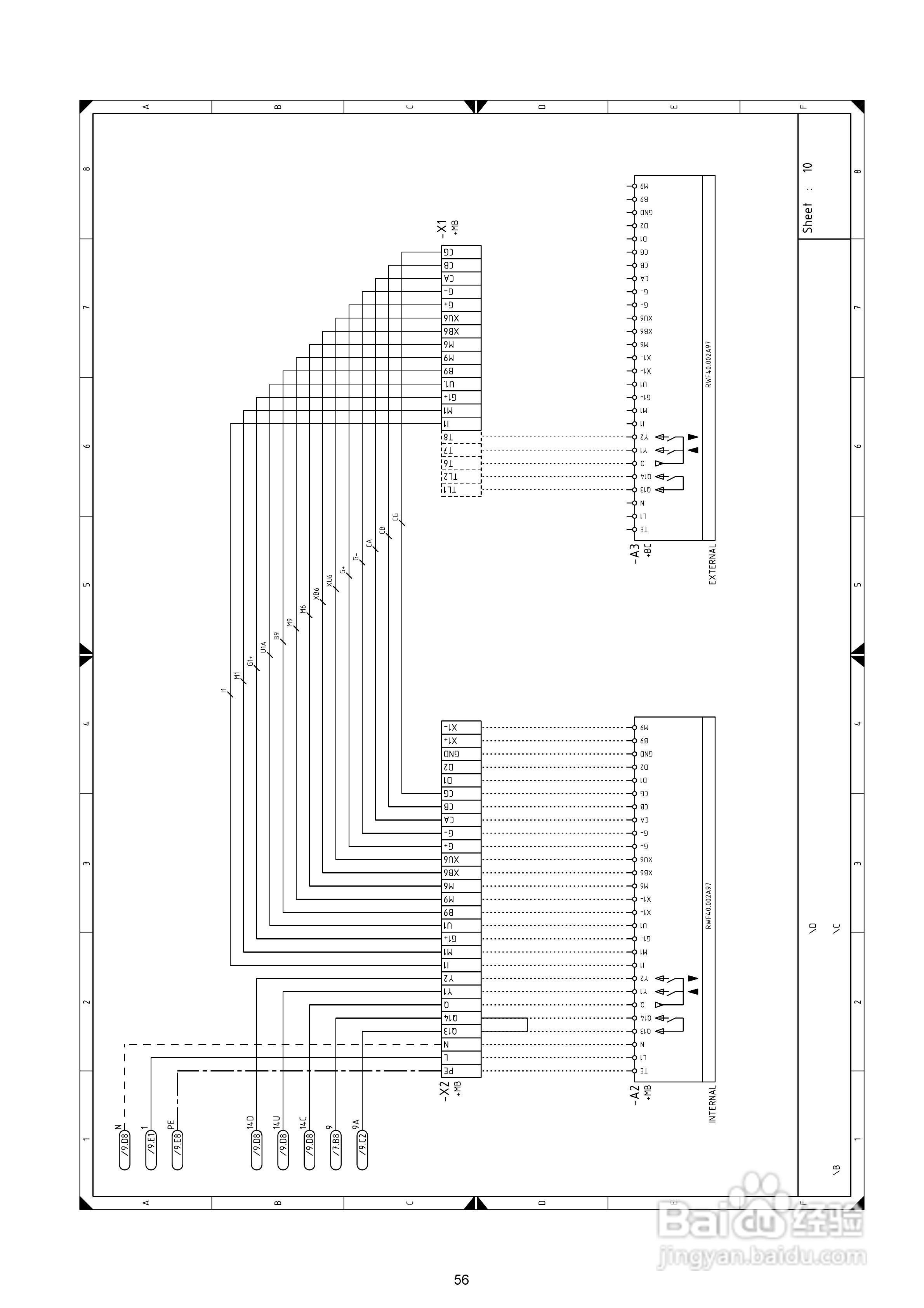
riello 强制通风燃气燃烧器RS400说明书:[4]
2026-04-01 03:04:41
本篇为《riello 强制通风燃气燃烧器RS400说明书》,主要介绍该产品的使用方法以及常见故障解决方案。
(共篇)
上一篇:
声明:
本网站引用、摘录或转载内容仅供网站访问者交流或参考,不代表本站立场,如存在版权或非法内容,请联系站长删除,联系邮箱:site.kefu@qq.com。
相关推荐
riello 强制通风燃气燃烧器RS400说明书:[3]
阅读量:139
燃气燃烧器RS70-100-130使用以及维护说明书:[2]
阅读量:161
Maxon麦克森燃烧器故障分享
阅读量:98
riello(雷诺士)rt系列 ups的开机程序
阅读量:94
怎样对燃烧器设备保养维护
阅读量:159
猜你喜欢
我爱你韩语怎么写
鸡怎么叫
北京邮电大学怎么样
蜜蜂蛰了怎么消肿止痒
移动怎么查话费
电脑桌面图标怎么变小
紫菜蛋花汤怎么做
怎么能长高
qq怎么解除手机绑定
厕所堵了怎么疏通
猜你喜欢
温度计怎么用
太子乐奶粉怎么样
胖大海怎么泡
名字中间的点怎么打
唐氏筛查结果怎么看
rainy怎么读
手机怎么挣钱
christmas怎么读
堵车怎么发朋友圈搞笑
电是怎么来的