指南生活
首页
美食营养
手工爱好
生活家居
返回
指南生活
首页
美食营养
游戏数码
手工爱好
生活家居
健康养生
运动户外
职场理财
情感交际
母婴教育
时尚美容
知识问答
生活知识
生活百科
搜索
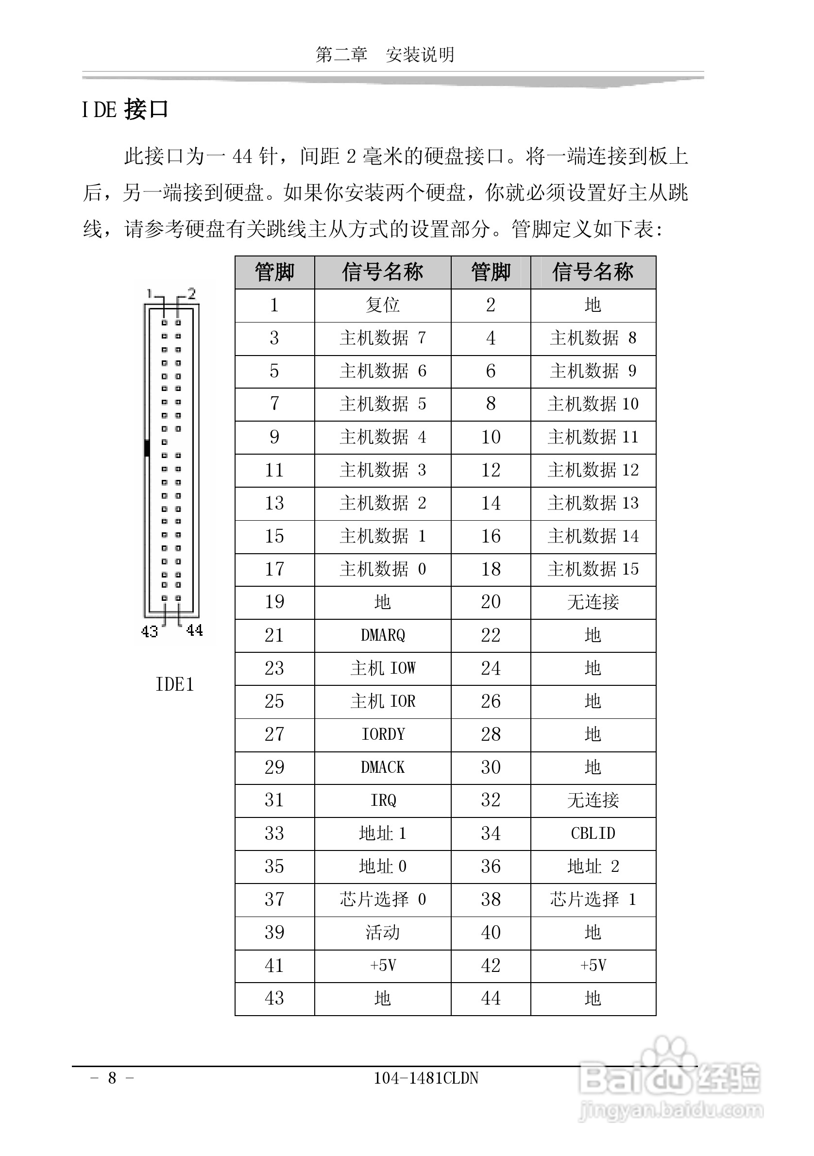
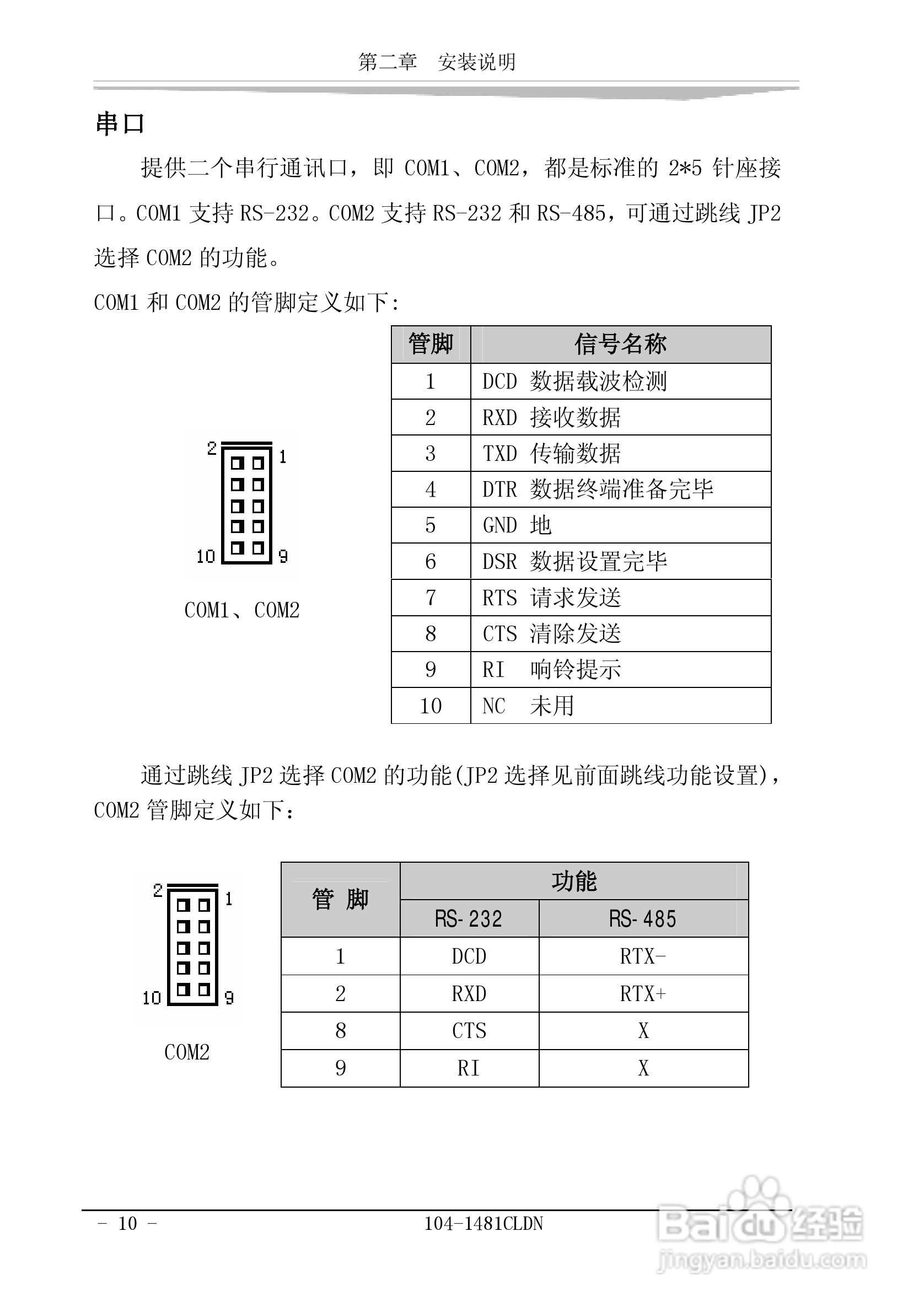
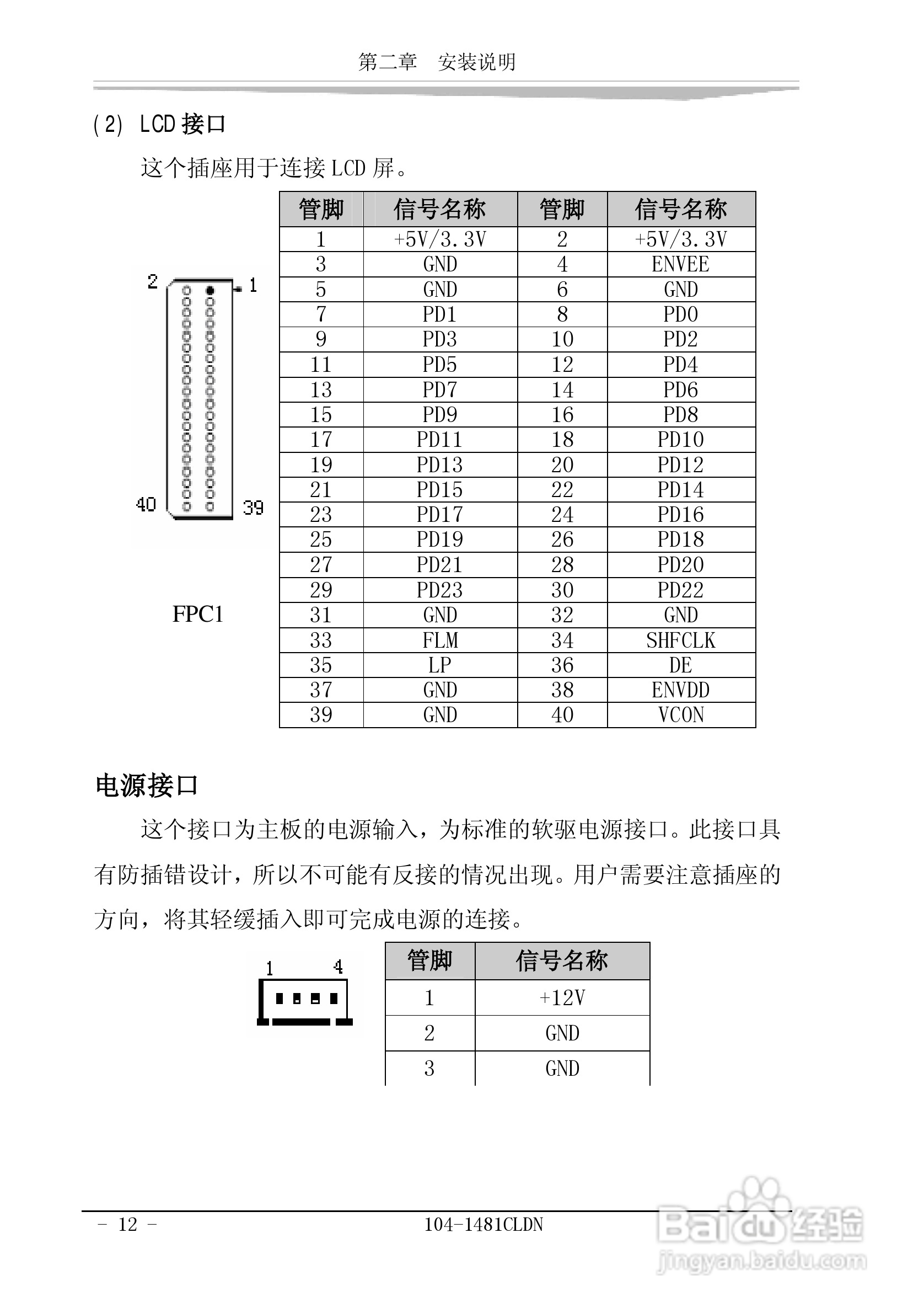
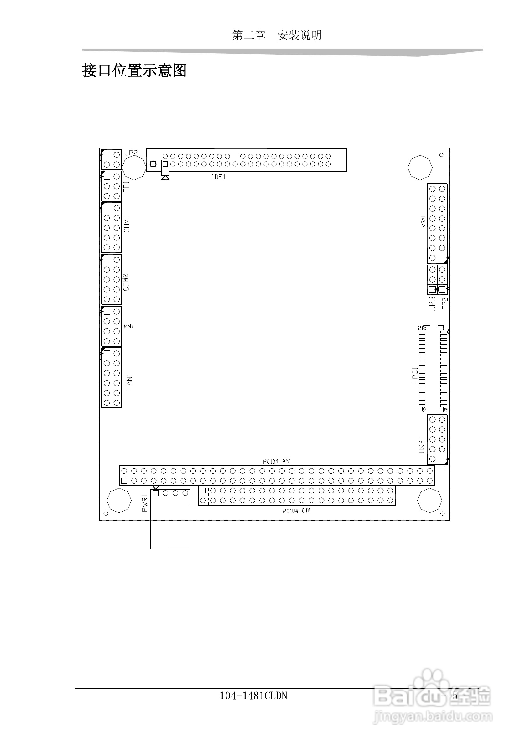
研祥104-1481CLDN工业级CPU板卡说明书:[2]
2026-05-10 13:39:28
本篇为《研祥104-1481CLDN工业级CPU板卡说明书》,主要介绍该产品的使用方法以及常见故障解决方案。
(共篇)
上一篇:
|
下一篇:
声明:
本网站引用、摘录或转载内容仅供网站访问者交流或参考,不代表本站立场,如存在版权或非法内容,请联系站长删除,联系邮箱:site.kefu@qq.com。
相关推荐
研祥104-1462CLDN工业级CPU板卡说明书:[2]
阅读量:186
研祥104-1541CLDN(B)工业级主机CPU板卡说明书:[2]
阅读量:108
研祥104-1541CLDN(B)工业级主机CPU板卡说明书:[5]
阅读量:119
cpu怎么开启睿频
阅读量:177
cpuz怎么看cpu体质
阅读量:45
猜你喜欢
emba是什么意思
排比句是什么意思
古着是什么意思
bgm网络语什么意思
一匹马的标志是什么车
吃醋是什么意思
gxg是什么档次的牌子
什么是马甲线
hyundai是什么牌子
蜕变是什么意思
猜你喜欢
毛肚是什么
佛跳墙里面有什么材料
种植牙有什么风险和后遗症
hm是什么单位
h5是什么
空调病什么症状
pc版是什么意思
公司上市有什么好处
ml是什么意思
1942年属什么生肖