指南生活
首页
美食营养
手工爱好
生活家居
返回
指南生活
首页
美食营养
游戏数码
手工爱好
生活家居
健康养生
运动户外
职场理财
情感交际
母婴教育
时尚美容
知识问答
生活知识
生活百科
搜索
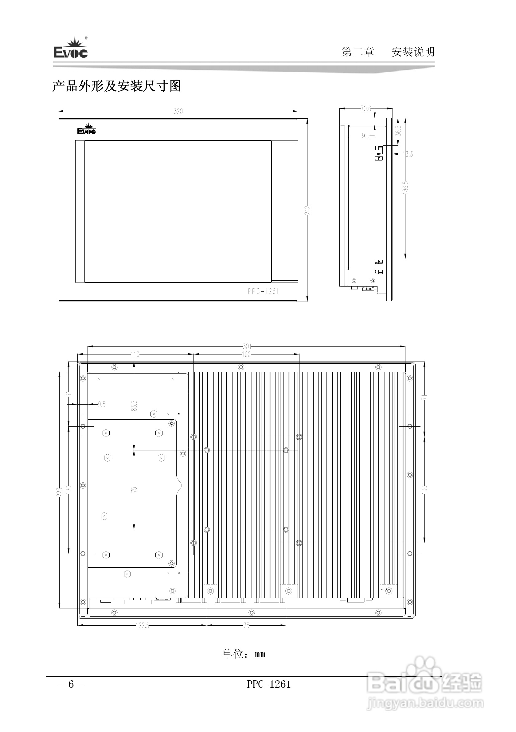
研祥PPC-1261工业平板电脑说明书:[1]
2026-04-26 14:22:34
本篇为《研祥PPC-1261工业平板电脑说明书》,主要介绍该产品的使用方法以及常见故障解决方案。
(共篇)
下一篇:
声明:
本网站引用、摘录或转载内容仅供网站访问者交流或参考,不代表本站立场,如存在版权或非法内容,请联系站长删除,联系邮箱:site.kefu@qq.com。
相关推荐
研祥PPC-1261工业平板电脑说明书:[2]
阅读量:43
研祥PPC-1005工业平板电脑说明书:[1]
阅读量:131
研祥PPC-1005工业平板电脑说明书:[3]
阅读量:25
研祥PPC-1561工业平板电脑说明书:[3]
阅读量:54
研祥PPC-1561工业平板电脑说明书:[2]
阅读量:189
猜你喜欢
暖水瓶什么牌子好
祝福语大全简短10个字
吃豆腐是什么意思
female是什么意思
crowd是什么意思
女士内衣什么牌子好
谢娜什么时候结婚的
车载低音炮什么牌子好
柳树靠什么传播种子的
故人的意思
猜你喜欢
工会会员卡有什么用
滞留票是什么意思
梦见小孩是什么意思
额定功率是什么意思
gms是什么意思
覆水难收的意思
太岁是什么意思
心潮难已的意思
bios是什么意思
有教无类是什么意思