指南生活
首页
美食营养
手工爱好
生活家居
返回
指南生活
首页
美食营养
游戏数码
手工爱好
生活家居
健康养生
运动户外
职场理财
情感交际
母婴教育
时尚美容
知识问答
生活知识
生活百科
搜索
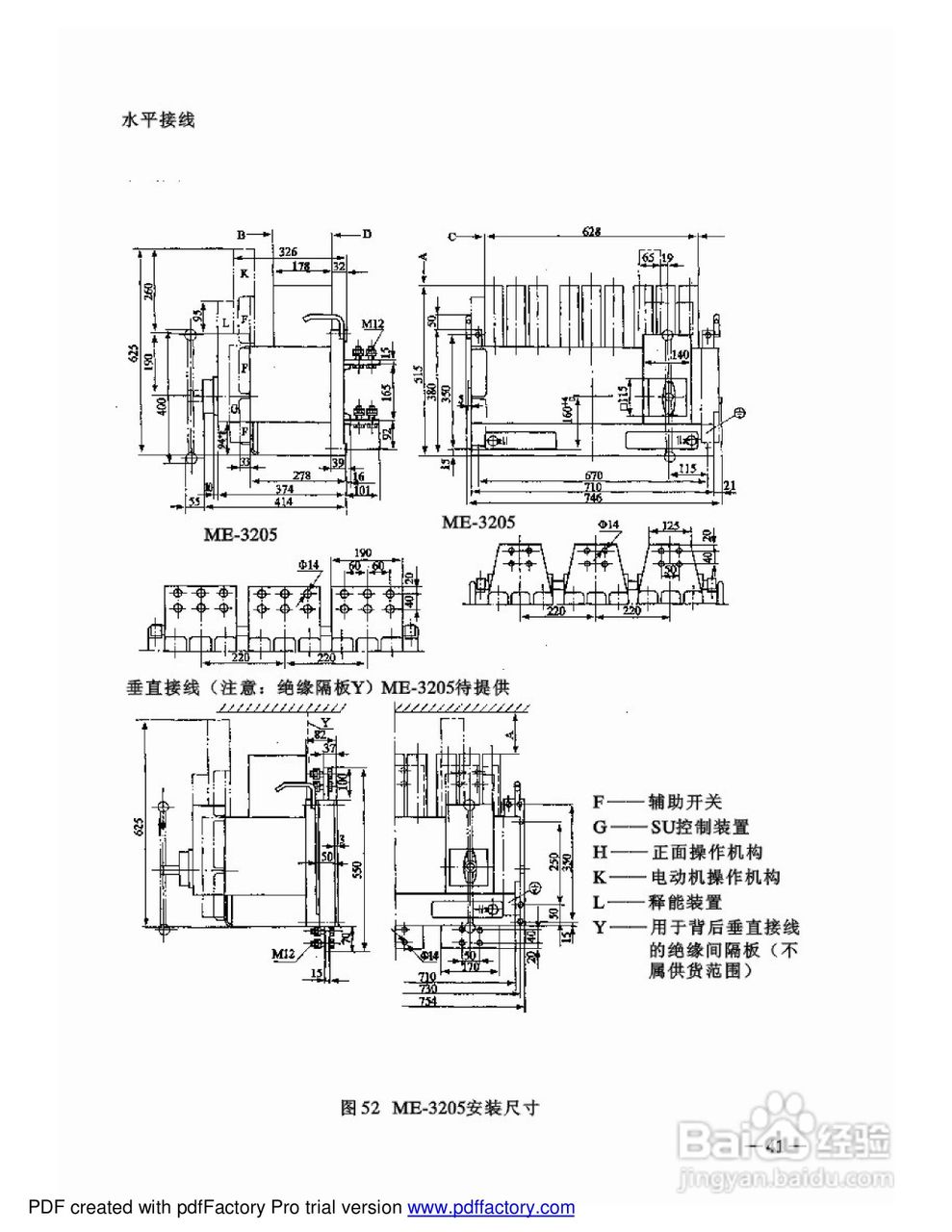
ME-4005万能断路器说明书:[5]
2026-04-26 09:19:29
本篇为《ME-4005万能断路器说明书》,主要介绍该产品的使用方法以及常见故障解决方案。
(共篇)
上一篇:
|
下一篇:
声明:
本网站引用、摘录或转载内容仅供网站访问者交流或参考,不代表本站立场,如存在版权或非法内容,请联系站长删除,联系邮箱:site.kefu@qq.com。
相关推荐
ME系列万能断路器说明书:[5]
阅读量:84
ME系列万能断路器说明书:[4]
阅读量:74
ME系列万能断路器说明书:[6]
阅读量:69
ME-630万能断路器说明书:[6]
阅读量:97
万能式断路器跳闸后重新合闸失败如何解决
阅读量:140
猜你喜欢
为什么不能摸死人的手
飞机怎么折
喜字怎么剪
华为双系统怎么切换
生源地怎么填
殁怎么读
十三香龙虾的做法
favourite怎么读
短发怎么扎好看
干部考察谈话怎么说
猜你喜欢
心口窝疼是怎么回事
amy怎么读英语
体重指数怎么算
为什么word打不开
腌白萝卜的做法大全
张翰和郑爽为什么分手
升五笔怎么打
男人秃顶为什么
咸肉菜饭的做法
诺优能奶粉怎么样