指南生活
首页
美食营养
手工爱好
生活家居
返回
指南生活
首页
美食营养
游戏数码
手工爱好
生活家居
健康养生
运动户外
职场理财
情感交际
母婴教育
时尚美容
知识问答
生活知识
生活百科
搜索
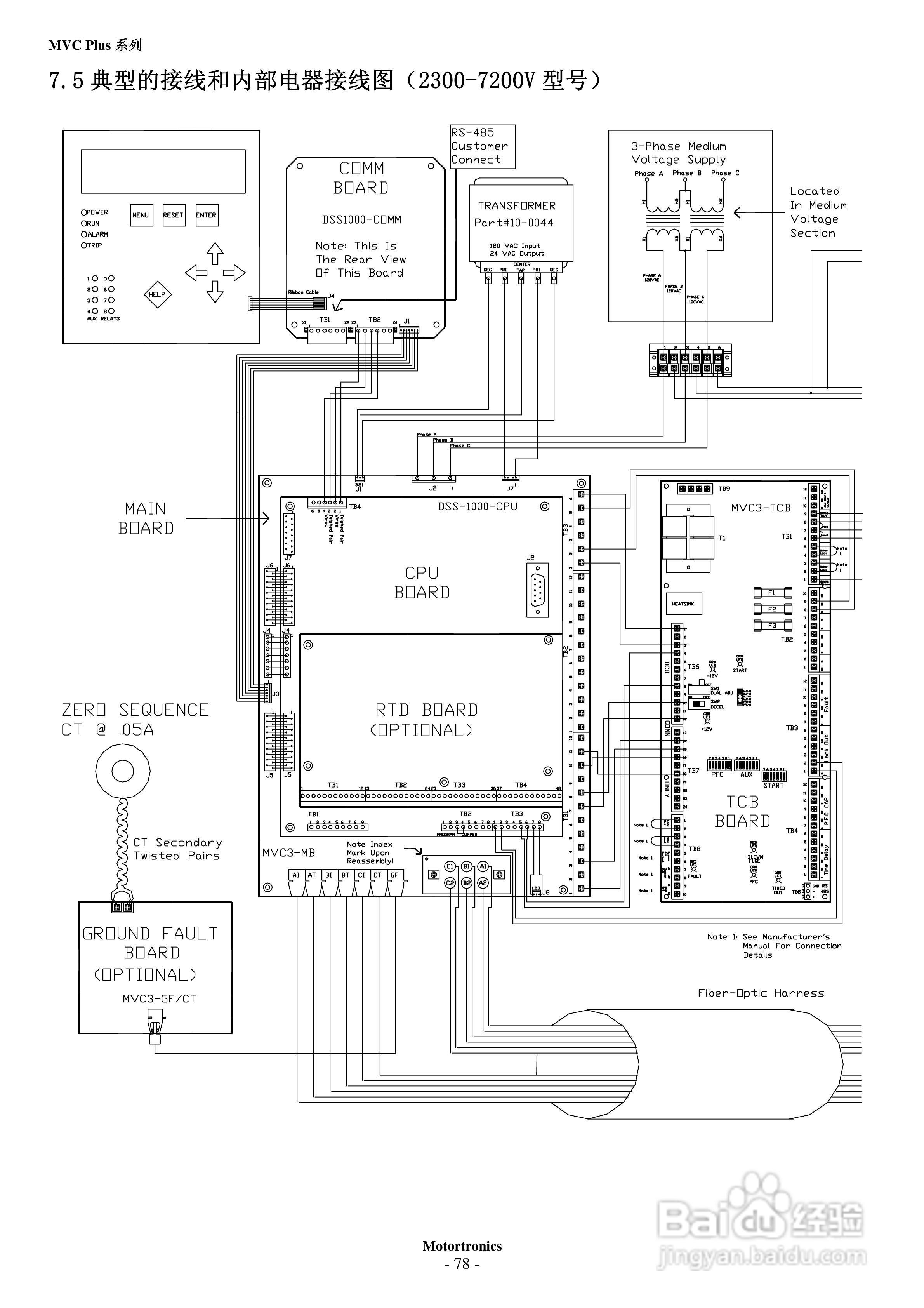
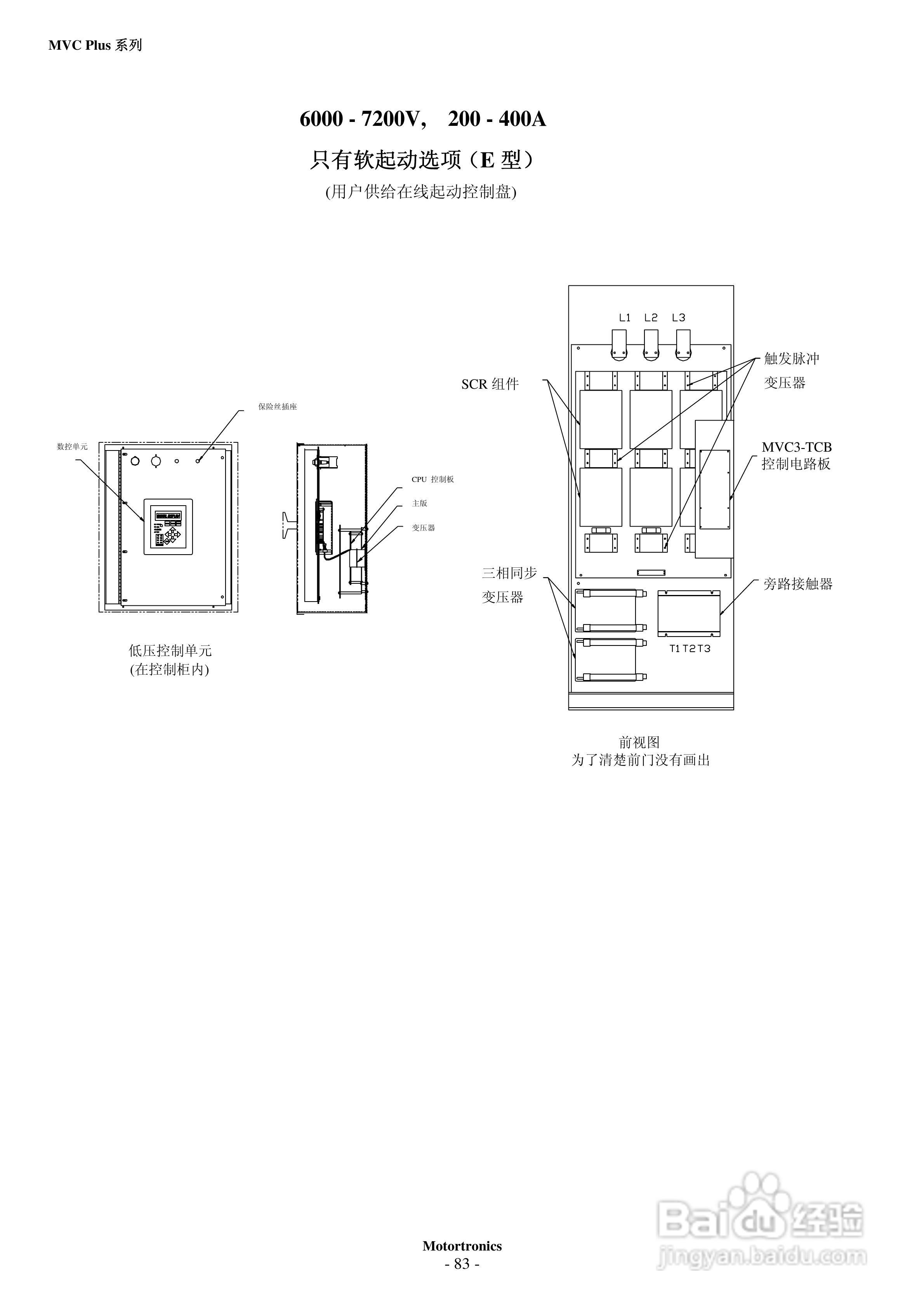
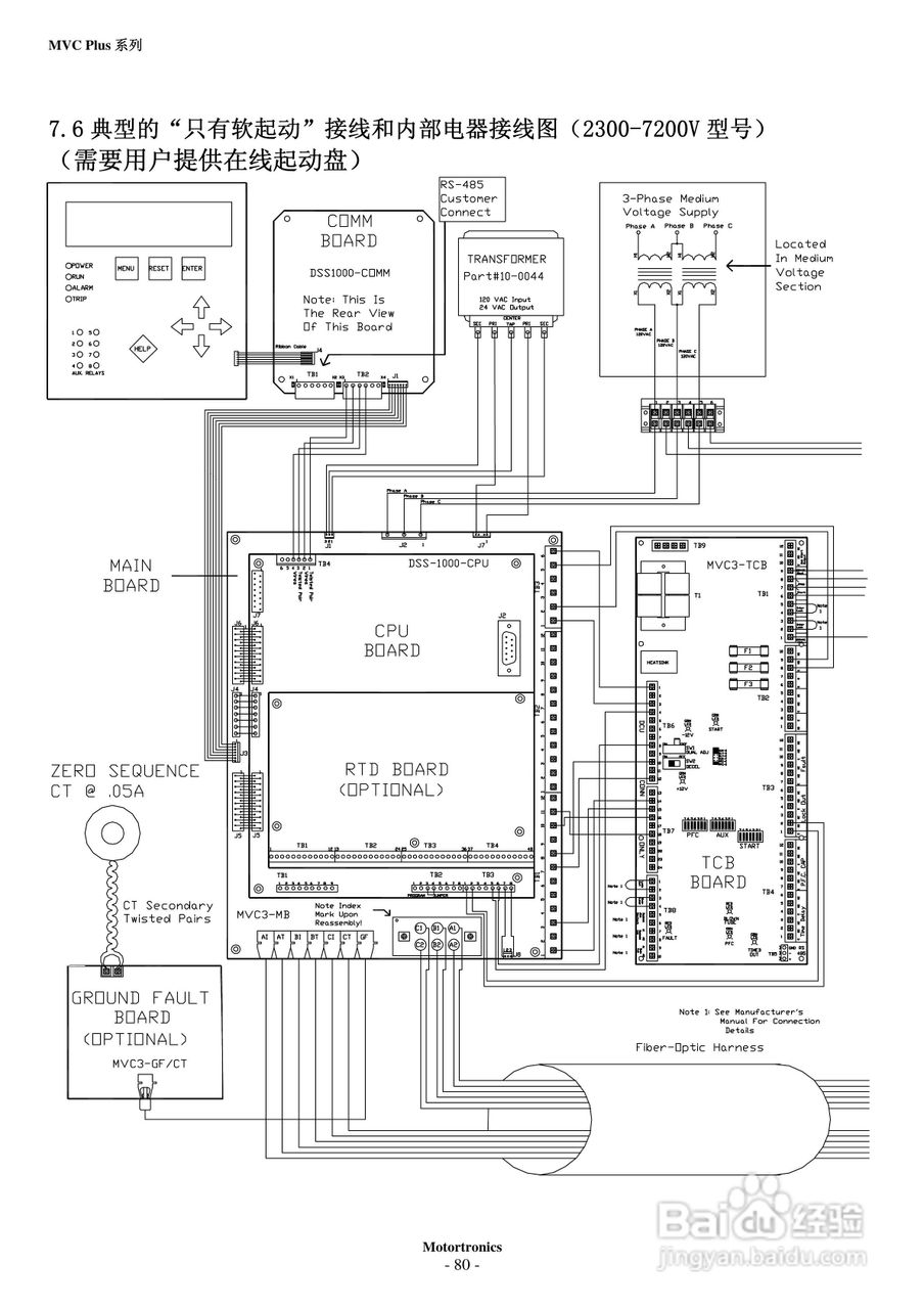
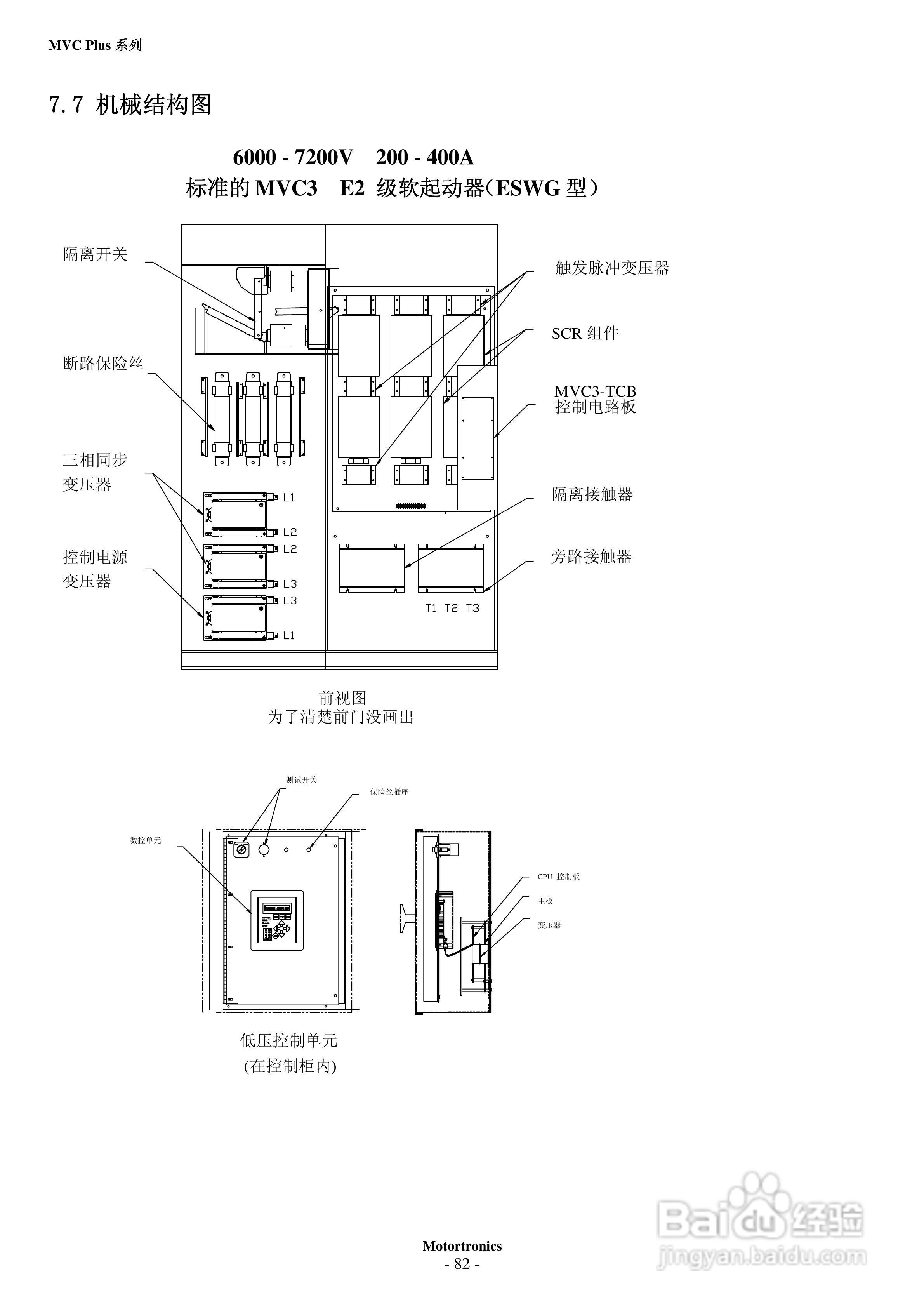
摩托托尼MVC Plus 软起动器中文说明书:[9]
2026-04-22 17:08:15
本篇为《摩托托尼MVC Plus 软起动器中文说明书》,主要介绍该产品的使用方法以及常见故障解决方案。
(共篇)
上一篇:
|
下一篇:
声明:
本网站引用、摘录或转载内容仅供网站访问者交流或参考,不代表本站立场,如存在版权或非法内容,请联系站长删除,联系邮箱:site.kefu@qq.com。
相关推荐
摩托托尼MVC Plus 软起动器中文说明书:[10]
阅读量:151
摩托托尼XLD软起动器中文说明书:[6]
阅读量:104
摩托托尼VMX软起动器中文说明书:[1]
阅读量:180
摩托托尼XLD软起动器中文说明书:[2]
阅读量:78
摩托托尼XLD软起动器中文说明书:[4]
阅读量:72
猜你喜欢
myself什么意思
安全小知识
嗤之以鼻什么意思
什么是排卵期和安全期
知识就是力量杂志
玉器知识
六神曲的功效与作用
运动会作文开头
小学运动会总结
薤白的功效与作用
猜你喜欢
生活中的物理知识
冬瓜皮的功效与作用
不疯魔不成活什么意思
室内减肥运动
热水泡脚有什么好处
酵素的作用与功效
引用论证的作用
桃胶雪燕皂角米的功效与作用禁忌
日什么月什么成语
运动网